Amphibious Housing For Flood Affected Communities | Architecture Thesis On Floating Architecture

Save
Amphibious Housing For Flood Affected Communities | Architecture Thesis On Floating Architecture

Information

  • Project Name: Amphibious Housing for Flood Affected Communities
  • Student Name: Anand Saji Thoppil
  • Softwares/Plugins: SketchUp , AutoCAD , Lumion , Adobe Illustrator , Adobe Photoshop
More Info Less Info

Excerpt: Amphibious Housing for Flood Affected Communities’ is an architecture thesis by Anand Saji Thoppil from the ‘Department of Architecture and Planning – NIT Calicut.’ The project aims to develop a flood-resilient architectural model for Vechoor, Kuttanad, by integrating amphibious and floating housing with essential community infrastructure. It focuses on enhancing safety, supporting water-dependent livelihoods, and improving quality of life through affordable, sustainable design that responds to seasonal flooding and socio-cultural conditions.

Introduction: Flooding is a recurring challenge in low-lying regions, severely disrupting communities and their livelihoods. Kuttanad, known as the “Rice Bowl of India,” is one of the most flood-prone landscapes in India due to its unique geography of lakes, canals, and land lying below sea level. Vechoor village, located within this region, faces frequent seasonal flooding that submerges houses, interrupts daily life, and disproportionately affects the fishing community, whose dependence on water makes them both resilient to and vulnerable from floods.

This thesis explores amphibious housing and a community center as a sustainable response to flooding in Vechoor. The study begins by examining floating and amphibious architecture, focusing on design principles, construction techniques, and materials that allow buildings to adapt to fluctuating water levels. Emphasis is placed on affordable, practical solutions suitable for the socio-economic and climatic conditions of Kuttanad. Through site analysis and relevant case studies, the thesis proposes a resilient, community-oriented model that enhances safety, supports livelihoods, and improves quality of life in flood-prone regions like Vechoor.

Save

Site Context

Amphibious Housing For Flood Affected Communities | Architecture Thesis On Floating Architecture
Location
Amphibious Housing For Flood Affected Communities | Architecture Thesis On Floating Architecture
Neighborhood Context
Amphibious Housing For Flood Affected Communities | Architecture Thesis On Floating Architecture
Fisherman Community in Site

Located in Vechoor within the Kuttanad region, the site is defined by its deep sandy soil and a shallow water table. While the soil is naturally permeable, the site’s low elevation and proximity to the lake make it highly susceptible to seasonal waterlogging and extreme events, such as the 1-meter-deep flooding experienced in 2018.

Amphibious Housing For Flood Affected Communities | Architecture Thesis On Floating Architecture
Site Zoning and Flooding in Site
Amphibious Housing For Flood Affected Communities | Architecture Thesis On Floating Architecture
Flooding in Kuttanad
Amphibious Housing For Flood Affected Communities | Architecture Thesis On Floating Architecture
Site Photos

Socially, the area is a vital hub for a local fishing community that relies on traditional Chinese fishing nets (cheena vala). Despite its importance, the current infrastructure for boat docking and fish processing is informal and unprotected from the elements. The design strategy bridges these environmental and social needs through flood-resilient architecture.

Design Process

Amphibious Housing For Flood Affected Communities | Architecture Thesis On Floating Architecture
Activity Mapping – Black Clam Fisherman
Amphibious Housing For Flood Affected Communities | Architecture Thesis On Floating Architecture
Activity Mapping – Black Clam Fisherman
Amphibious Housing For Flood Affected Communities | Architecture Thesis On Floating Architecture
Activity Mapping – Black Clam Fisherman
Amphibious Housing For Flood Affected Communities | Architecture Thesis On Floating Architecture
Problem Identification of House

The design process follows a clear path from research to practical application, focusing on creating a resilient environment for the Vechoor community. It began with an in-depth study of amphibious construction, exploring how specialized buoyancy systems and water-resistant materials can allow buildings to float during floods. By analyzing global case studies, successful strategies were adapted to fit the specific climate and budget of the Kuttanad region.

Amphibious Housing For Flood Affected Communities | Architecture Thesis On Floating Architecture
Design Strategies
Amphibious Housing For Flood Affected Communities | Architecture Thesis On Floating Architecture
Design Strategies
Amphibious Housing For Flood Affected Communities | Architecture Thesis On Floating Architecture
Concept – Fluid Transitions
Amphibious Housing For Flood Affected Communities | Architecture Thesis On Floating Architecture
Amphibious House – Functioning
Amphibious Housing For Flood Affected Communities | Architecture Thesis On Floating Architecture
Design Development

The next phase involved a contextual site analysis, mapping the water levels and terrain of Vechoor. This data was combined with a study of the local fishing community’s daily routines. The final design integrates these findings, focusing on affordable, modular solutions that provide safety during seasonal flooding while supporting the residents’ water-dependent livelihoods.

Final Outcome

Amphibious Housing For Flood Affected Communities | Architecture Thesis On Floating Architecture
Master Plan with Views
Amphibious Housing For Flood Affected Communities | Architecture Thesis On Floating Architecture
Floating Unit – Floor Plan
Amphibious Housing For Flood Affected Communities | Architecture Thesis On Floating Architecture
Floating Unit – Section

The final design presents a resilient living model tailored for the flood-prone Vechoor community, integrating adaptive housing with essential social and economic infrastructure. The proposal includes a combination of amphibious houses that remain grounded under normal conditions and rise safely during floods, along with floating houses designed to function on water throughout the year. 

Amphibious Housing For Flood Affected Communities | Architecture Thesis On Floating Architecture
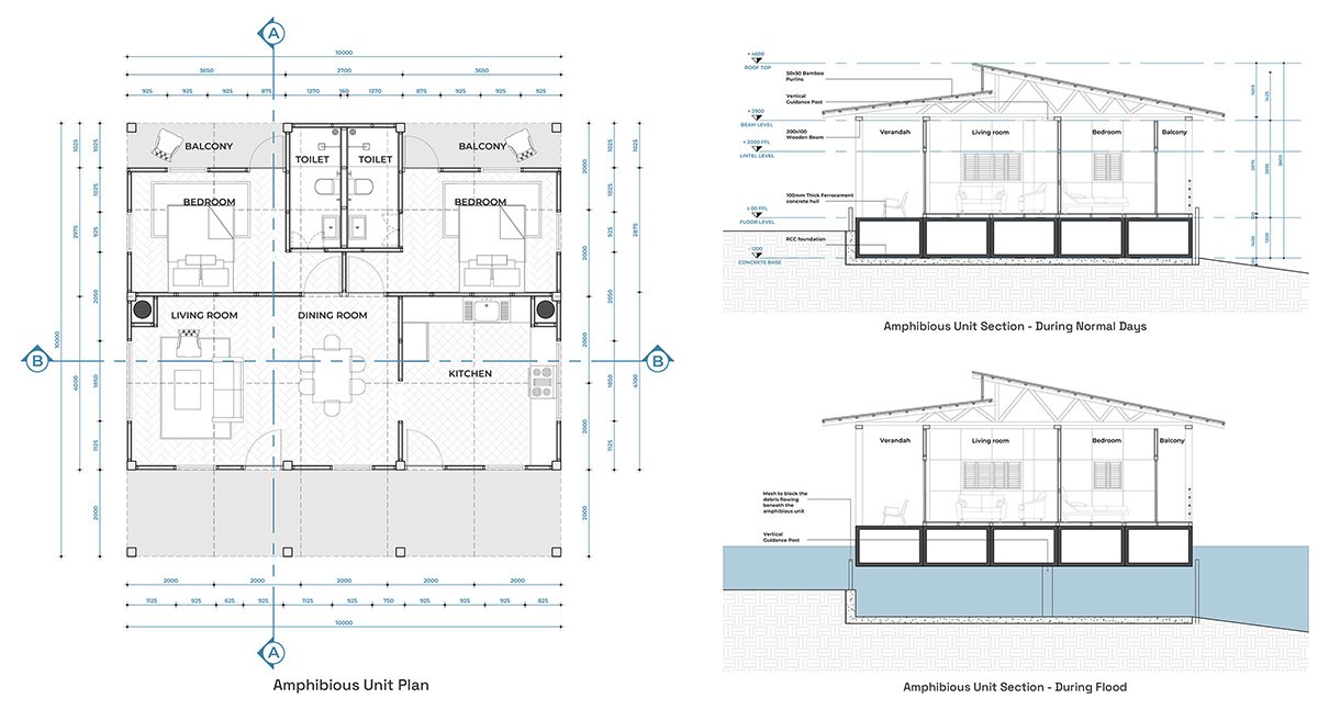
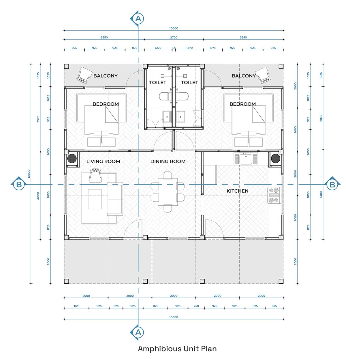
Amphibious House – Plan | Amphibious House – Sections
Amphibious Housing For Flood Affected Communities | Architecture Thesis On Floating Architecture
Amphibious Unit Axonometric View | Floating Unit Axonometric View

The housing system adopts a hybrid construction approach, where the substructure consists of modular concrete hull blocks, allowing flexibility and future expansion, while the superstructure is built using bamboo-crete and bamboo, ensuring sustainability, lightness, and local relevance.

Amphibious Housing For Flood Affected Communities | Architecture Thesis On Floating Architecture
Community Center – Plan and Section | Processing area – Plan and Section
Amphibious Housing For Flood Affected Communities | Architecture Thesis On Floating Architecture
Sports Complex – Plan and Section
Amphibious Housing For Flood Affected Communities | Architecture Thesis On Floating Architecture
Processing Area and Sports Complex View

At the community scale, a centrally located multipurpose community centre functions as a vibrant social hub during non-flood periods and transforms into a secure emergency shelter during extreme flood events. To strengthen livelihoods and everyday life, the project incorporates supporting infrastructure such as a fish processing area, a sports complex, a day-care facility, and a health centre. These facilities were carefully incorporated in response to the specific needs and priorities expressed by the local community, ensuring that the design remains people-centric and grounded in everyday realities.

Amphibious Housing For Flood Affected Communities | Architecture Thesis On Floating Architecture
View from Dykes – Floating Units
Amphibious Housing For Flood Affected Communities | Architecture Thesis On Floating Architecture
View of Amphibious Units
Amphibious Housing For Flood Affected Communities | Architecture Thesis On Floating Architecture
Site Model

Conclusion: Ultimately, this project demonstrates how amphibious and floating architecture can provide a sustainable and people-centric response to flooding in Vechoor. By combining adaptive housing with essential community infrastructure and locally appropriate materials, the design enhances resilience, supports livelihoods, and improves quality of life while working in harmony with the region’s water-driven landscape.

[This Academic Project has been published with text and images submitted by the student]

​​To submit your academic project for publication at ArchiDiaries, please visit the following link >> Submit

Leave a Reply