Urbanistic Continuity: A Lo/Lux (Low cost – Luxury) Housing Project that Envisions a New Urban Future for New York City | Masters Design Project

Save
Urbanistic Continuity: A Lo/Lux (Low cost – Luxury) Housing Project that Envisions a New Urban Future for New York City | Masters Design Project

Information

  • Project Name: Urbanistic Continuity: a Lolux Care project
  • Student Name: Abyan Mohamed Ali
  • Softwares/Plugins: Rhinoceros 3D , V-Ray , Adobe Illustrator , Adobe Indesign , Adobe Photoshop , Autodesk Forma
More Info Less Info

Excerpt: Urbanistic Continuity’ is a Masters Design Project by Abyan Mohamed Ali from the ‘Pratt Institute School of Architecture’ that seeks to address infrastructural challenges of New York City by blending aesthetics with functionality. It promotes spatial inclusivity, diverse living arrangements, and reinforces the city’s orthogonal grid. Advocating Lo/lux housing, it offers affordable, high-quality homes for underserved communities. Through infrastructural innovation and thoughtful planning, the project envisions a more inclusive, efficient, and visually enriched NYC.

Introduction: Urbanistic Continuity is a housing initiative that examines the urban characteristics of New York City while addressing its infrastructural challenges. The project enhances the city’s existing maintenance systems by seamlessly blending aesthetics with functionality, resulting in a more visually appealing and efficient urban environment. A key focus is spatial inclusivity, ensuring diverse living arrangements are accommodated. The architectural design embraces New York’s signature orthogonal grid, reinforcing the city’s structural identity through geometric composition. Furthermore, the project advocates for Lo/lux (low-cost luxury) housing—a concept introduced by Jonas Coersmeier—which provides affordable yet high-quality living spaces for underserved communities. Specifically, it supports joint family housing, allowing individuals and families of different sizes to coexist harmoniously through a structured system of thresholds. By integrating infrastructural advancements with thoughtful spatial planning, Urbanistic Continuity envisions a more inclusive, efficient, and visually enriched future for New York City.

Save

Site Context

Urbanistic Continuity: A Lo/Lux (Low cost - Luxury) Housing Project that Envisions a New Urban Future for New York City | Masters Design Project
Site Plan

The 150,000-square-foot housing addition to an existing NYCHA development in Bushwick, Brooklyn strengthens urban connectivity by incorporating public access through landscaped gardens, seamlessly linking the vibrant corridors of Flushing Avenue and Broadway. Drawing inspiration from New York City’s iconic urban grid, the site plan establishes a cohesive spatial dialogue between the existing NYCHA buildings and the broader city fabric.

Urbanistic Continuity: A Lo/Lux (Low cost - Luxury) Housing Project that Envisions a New Urban Future for New York City | Masters Design Project
Context

Beyond its architectural approach, the project actively addresses gentrification concerns by prioritizing affordability and inclusivity, ensuring that Bushwick’s evolving urban landscape remains accessible to longtime residents. Through thoughtful design and strategic urban integration, Urbanistic Continuity cultivates a more connected, accessible, and socially responsive future for the neighborhood.

Design Process

Urbanistic Continuity: A Lo/Lux (Low cost - Luxury) Housing Project that Envisions a New Urban Future for New York City | Masters Design Project
Casting | Forma
Urbanistic Continuity: A Lo/Lux (Low cost - Luxury) Housing Project that Envisions a New Urban Future for New York City | Masters Design Project
Hybrids | Services

Inspired by New York’s identity as a concrete jungle, the project develops its orthogonal massing through an in-depth exploration of concrete casting—a process where positive mass defines negative space. This method shapes the project’s architectural language, mirroring the city’s dense urban fabric.

Urbanistic Continuity: A Lo/Lux (Low cost - Luxury) Housing Project that Envisions a New Urban Future for New York City | Masters Design Project
Urban Qualities
Urbanistic Continuity: A Lo/Lux (Low cost - Luxury) Housing Project that Envisions a New Urban Future for New York City | Masters Design Project
Lolux

A broad range of housing precedents were analyzed and hybridized to create a flexible system that accommodates both single residents and joint families. To promote spatial inclusivity, a catalogue of thresholds was established, providing a structured framework that fosters harmonious coexistence between diverse household structures.

Final Outcome

Urbanistic Continuity: A Lo/Lux (Low cost - Luxury) Housing Project that Envisions a New Urban Future for New York City | Masters Design Project
Site Plan
Urbanistic Continuity: A Lo/Lux (Low cost - Luxury) Housing Project that Envisions a New Urban Future for New York City | Masters Design Project
Floorplan 01
Urbanistic Continuity: A Lo/Lux (Low cost - Luxury) Housing Project that Envisions a New Urban Future for New York City | Masters Design Project
Elevation

Referencing Mierle Laderman Ukeles’ “Maintenance Art Manifesto 1969!”, which critiques the lack of attention and care given to New York’s maintenance systems compared to the excitement of creation, this project reimagines essential infrastructure as a sculptural and experiential element within housing design.

Urbanistic Continuity: A Lo/Lux (Low cost - Luxury) Housing Project that Envisions a New Urban Future for New York City | Masters Design Project
Floorplan 02
Urbanistic Continuity: A Lo/Lux (Low cost - Luxury) Housing Project that Envisions a New Urban Future for New York City | Masters Design Project
Section 01
Urbanistic Continuity: A Lo/Lux (Low cost - Luxury) Housing Project that Envisions a New Urban Future for New York City | Masters Design Project
Threshold-2 | Chunk
Urbanistic Continuity: A Lo/Lux (Low cost - Luxury) Housing Project that Envisions a New Urban Future for New York City | Masters Design Project
Threshold-1

A scissor staircase serves as both a functional and artistic intervention—one half remains closed for use as a standard fire egress, while the other half is open and exposed, connecting duplex or triplex units for joint family living. This design introduces a controlled threshold, offering large families limited yet intentional access between units.

Urbanistic Continuity: A Lo/Lux (Low cost - Luxury) Housing Project that Envisions a New Urban Future for New York City | Masters Design Project
Section 02
Urbanistic Continuity: A Lo/Lux (Low cost - Luxury) Housing Project that Envisions a New Urban Future for New York City | Masters Design Project
Unit Plan
Urbanistic Continuity: A Lo/Lux (Low cost - Luxury) Housing Project that Envisions a New Urban Future for New York City | Masters Design Project
Elevation-B

Rather than relegating the fire staircase to a neglected corner of the building—where maintenance often suffers—it is brought directly through the living room, transforming it into a sculptural focal point within the home. By integrating a system of maintenance into daily life, this approach elevates infrastructure to an art form, ensuring it is not only functional but also visually engaging and better maintained over time.

Urbanistic Continuity: A Lo/Lux (Low cost - Luxury) Housing Project that Envisions a New Urban Future for New York City | Masters Design Project
Axon-1
Urbanistic Continuity: A Lo/Lux (Low cost - Luxury) Housing Project that Envisions a New Urban Future for New York City | Masters Design Project
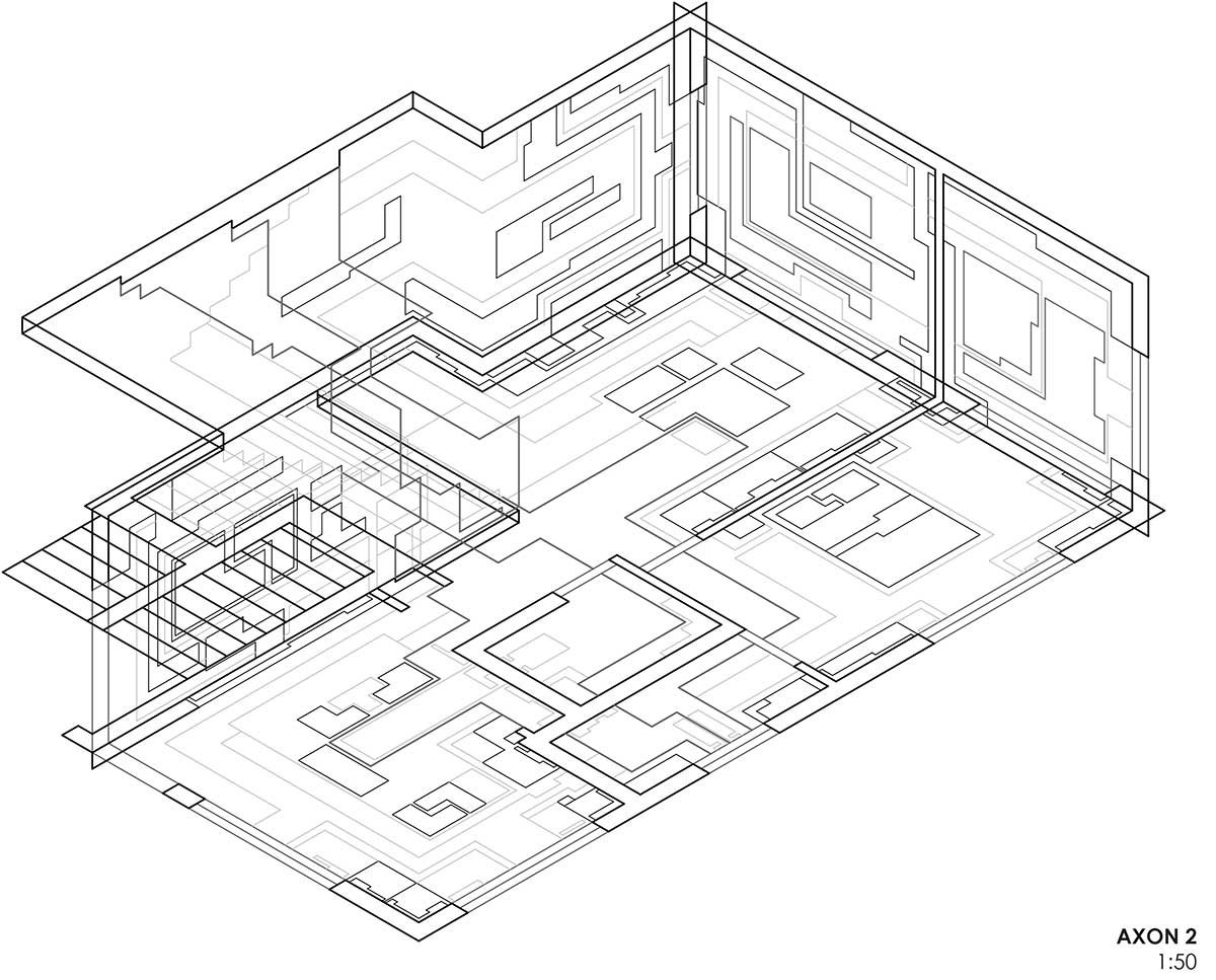
Axon-2
Urbanistic Continuity: A Lo/Lux (Low cost - Luxury) Housing Project that Envisions a New Urban Future for New York City | Masters Design Project
Model
Urbanistic Continuity: A Lo/Lux (Low cost - Luxury) Housing Project that Envisions a New Urban Future for New York City | Masters Design Project
Model

New York’s orthogonality is embedded into every stage of the design, starting with the facade, where its structured language is articulated to function as building ducts. This geometric rigor extends to a finer scale, influencing the interior layout, including the design of furniture and toilet cores, ensuring spatial coherence throughout.

Urbanistic Continuity: A Lo/Lux (Low cost - Luxury) Housing Project that Envisions a New Urban Future for New York City | Masters Design Project
Model
Urbanistic Continuity: A Lo/Lux (Low cost - Luxury) Housing Project that Envisions a New Urban Future for New York City | Masters Design Project
Model
Urbanistic Continuity: A Lo/Lux (Low cost - Luxury) Housing Project that Envisions a New Urban Future for New York City | Masters Design Project
View

York’s dense urban fabric but also proposes innovative ways to enhance its maintenance systems, merging aesthetics with functionality to create a more efficient and sustainable built environment.

[This Academic Project has been published with text and images submitted by the student]

​​To submit your academic project for publication at ArchiDiaries, please visit the following link >> Submit

Leave a Reply