Excerpt: Child Care Center is an architectural project designed by Equipo de Arquitectura in Paraguay. An introspective, inward-looking construction is created, as an incubator of the very life that takes place there. On the outside, earth volumes hide and protect the interior. On the inside, quite the opposite occurs. Solids build space and assemble the voids.
Project Description
[Text as submitted by architect] The Child Care Center is born from a set of intentions directed to create an impact on future generations. Architecture as matter, space, light and its integration to nature. Only the essential. Earth, as raw material grouped in walls, draws the floor plan to create the living spaces. This material, which contains primitive and elemental information, linked to our memory and our senses, allows us to experience textures, colors, smells and a set of emotions that enrich perception and learning in early childhood.


This way, an introspective, inward-looking construction is created, as an incubator of the very life that takes place there. On the outside, earth volumes hide and protect the interior. On the inside, quite the opposite occurs. Solids build space and assemble the voids. Cross ventilation, green roofs, adequate sunlight, the use of low environmental impact materials, are all considerations that are incorporated into the architectural design to guarantee the proper thermal confort of the users.



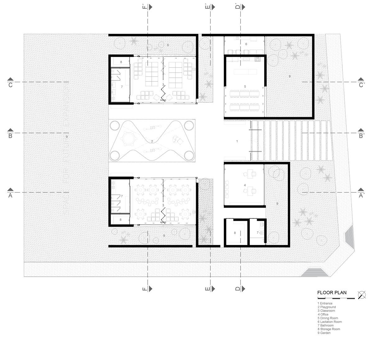
The Center consists of 4 large spaces: two large classrooms, which are subdivided into 2 each, a dining room and an administrative area. Each space, overturned on both sides to patios, visually communicate with the environment, eliminating the concept of the classroom as a closed space. The central courtyard, which functions as the children’s play area, becomes a focal point of the ensemble. It is a meeting point for different ages, a floor with various textures and materials, where you learn by playing and you play to learn.



This is how a common and ordinary suburban city block corner becomes the center of knowledge, center of learning, sower of the seeds that one day were planted there, and that little by little, the world will witness its fruits.




