Excerpt: Dobie by Entre Quatre Murs is an interior design project that uses the strategy of splitting the rooms and creating an opening between the floors, to overcome the lack of natural light. Each room offers privacy, with views that enhance the enjoyment of the moment while allowing glimpses of family members moving between rooms. The open plan layout of the two floors provides a sense of calm and privacy through the use of bespoke furniture and room positioning.
Project Description

[Text as submitted by architect] Making light a central element of the house: To overcome the lack of natural light, the approach was to open up the existing house by decompartmentalizing many of the rooms, and by creating an impressive opening between the first and second floors. The completely open, white wooden staircase, with glass railings crossing all three floors of the residence, gives an impression of lightness as soon as one enters the space, allowing sunlight to pass through the entire house. In order to create a strong connection with the outside, wide openings were made on the rear facade, providing views of the garden from all the floors.


Each room in its own time: Although the space is an entirely open concept, the kitchen is not directly visible upon entering the house, nor is it visible from the living room or the open-space office located on the second floor. Only by taking the stairs is it possible to appreciate all the spaces simultaneously.



“We wanted each room to have its privacy, and the views between each space not to detract from the enjoyment of the moment, but simply to allow glimpses of other family members moving from room to room. So, even though the majority of the two floors are one open plan, the bespoke furniture and positioning of the rooms offer a sense of calm and privacy,” explains Gatline Artis, owner of the house and designer at Entre Quatre Murs.


An unconventional approach was taken for the kitchen design. In fact, it is divided into two separate spaces. The front portion consists of three integrated furniture elements that were designed to give a sense of lightness and refinement. There are no wall cabinets, the china cabinet is reminiscent of the bookcases found in the living room, and the delicate legs of the island allows for a communal table area around which the family gathers each evening to prepare dinner.


Behind the front portion, the all-black pantry stands out from the kitchen by its contrast, highlighting it. To facilitate access, it was deliberately planned that no door would close it off. A true extension of the kitchen, this space has been maximized in order to discreetly integrate the refrigerator, the coffee corner, as well as all the small daily appliances. These elements remain visually hidden, but within easy access. Humble and unifying, this space, deeply rooted in the family life, harmoniously combines aesthetics and functionality.


When privacy and common space go hand in hand: On the second floor, all private spaces are articulated around the central opening of the house. Far from the original corridors and partitioned spaces, the new configuration plunges occupants into the heart of family life as soon as they leave their private spaces. These spaces act as small cocoons of intimacy and allow for the rhythm of life of the different members of the family. Particular attention was paid to the acoustic insulation of these spaces.



An integral part of the floor plan designs, the office has become a central piece in the owners’ daily lives. They wanted to be able to work from home occasionally with unobstructed views of the garden. Placed in the center of the space, the large work surfaces act as a central island around which all members of the family can gather to work, including the children during homework time.



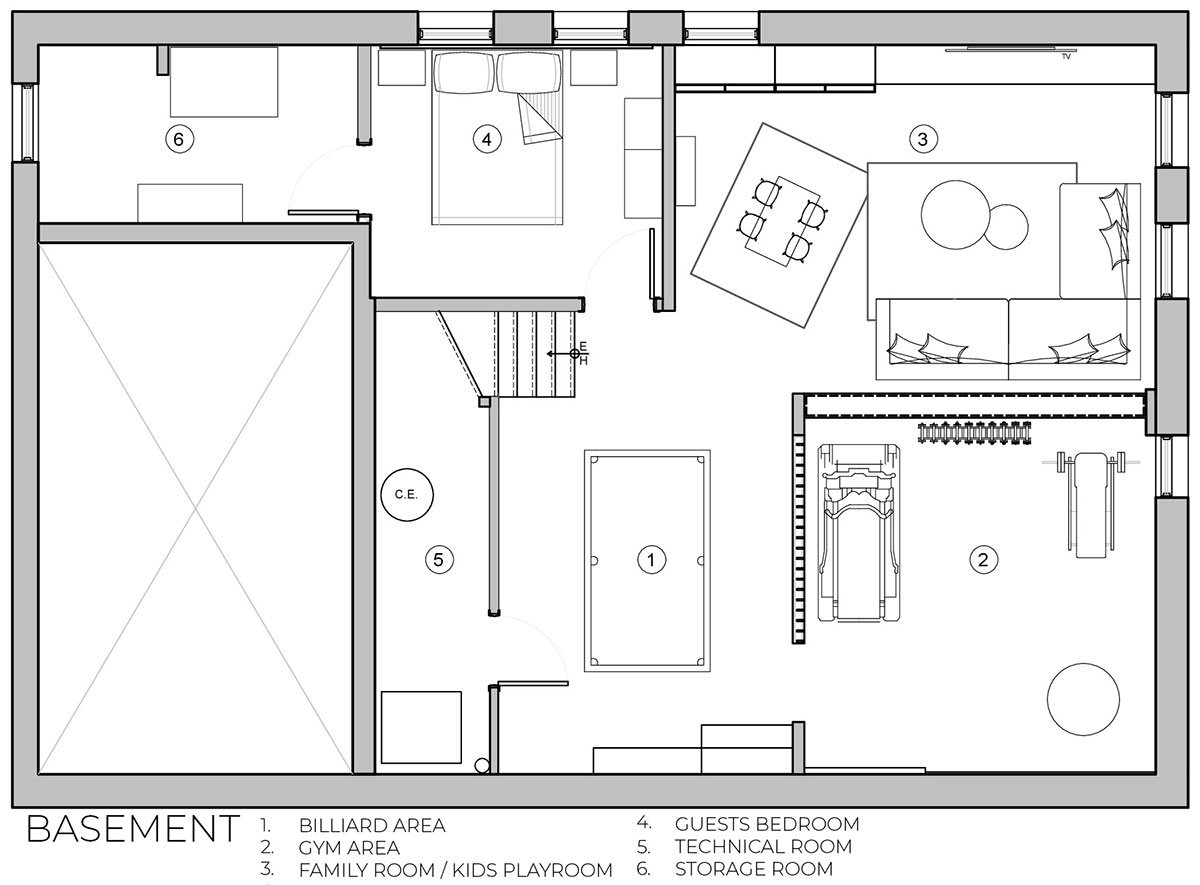
Four functions, one space: No detail in this project was overlooked, including the basement in which three functions coexist harmoniously without overlapping. This was made possible by the use of cabinetry modules that provide a visual delineation between the gym, the pool area, and the family room. In order to optimize the use of the space, the design of these custom-made pieces of furniture also enhances the functionality of each of the sub-spaces. The result is a lively and multifunctional basement used daily by the whole family.


“We were looking for a sweet home, a little cocoon where we could see our children grow up, but above all we wanted a home that reflected our own image. Creating our own completely bespoke home, in which we could live and thrive for decades to come, was paramount. From the first pencil stroke to the last paint touch-up, the process was laborious, but we don’t regret the adventure at all. The house continues to amaze us with each passing season, and exceeds our expectations of functionality and quality of life,” explains Gatline Artis.

