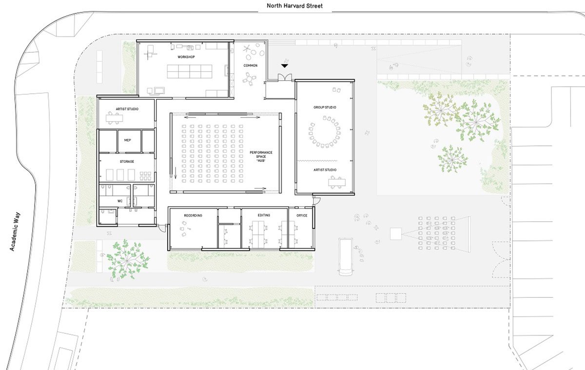
Excerpt: Harvard Artlab, designed by Barkow Leibinger, is a cross-curriculum space for the arts designed to be curated and adapted by its users. The building, a one-story “pinwheel-like” plan, consists of studios, workshops, and media spaces surrounding a common “Hub” space. The Hub can be opened and closed by four large sliding partitions, enabling performances and exhibitions and cultivating interactivity at the ArtLab’s center. The building, which complies with Massachusetts’ high energy efficiency standards and is projected to be net-zero, is constructed of lightweight steel columns and open web steel trusses on a concrete slab on grade.
Project Description
[Text as submitted by architect] Harvard University’s ArtLab, a cross-curriculum space for the arts, is located on the school’s Allston campus in Cambridge, Massachusetts. Designed to be curated and adapted by its users, the 9,000 square-foot space will be available to students, teachers, visiting artists, and the wider community.




The building, a one-story “pinwheel-like” plan, consists of a series of studios, workshops, and media spaces that surround a common “Hub” space. The Hub, which can be opened and closed by a series of four large sliding partitions, enables performances and exhibitions, cultivating interactivity at the ArtLab’s center. Surrounding spaces provide recording studios, sound-editing stations, and rooms for rehearsal, improvisation, and informal performance. The ArtLab encourages and expands participants’ engagement with interdisciplinary arts-practice research, serving as a collaborative activator for the school and the greater Allston and Cambridge neighborhoods.



The building, which complies to Massachusetts’ high energy efficiency standards and is projected to be net-zero, is constructed of lightweight steel columns and open web steel trusses on a concrete slab on grade. Framing is mechanically fastened, able to be assembled and disassembled easily and efficiently, allowing for the building to be transferred and given a second life when needed. The steel frame is clad in transparent insulated glass and lightweight high-insulating polycarbonate panels. These panels range from transparent to translucent to opaque, exploiting diffuse natural light and a street-level view by day, emerging as a glowing “lightbox” by night. These materials emphasize the building’s ephemerality while providing a robust and adaptable space for the arts. The roof is covered with photovoltaic panels, generating the power required for the building.


