Excerpt: House at Kensville by Arya Architects explores a seamless connection between land and sky through a grounded form and an extended roof plane. The design features adaptive, layered façades that respond to light, climate, and privacy, while integrating water and recycled materials to create sustainable, transitional living spaces. The architecture of the residence balances traditional strategies with contemporary spatial concepts.
Project Description

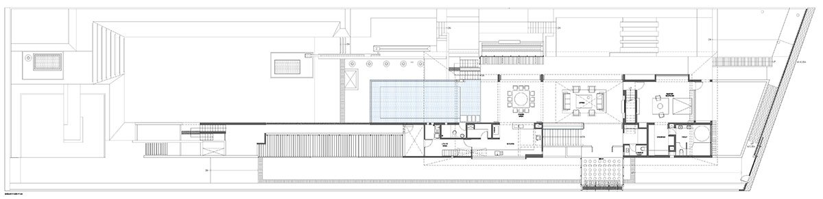
[Text as submitted by architect] A private villa, away from the city, this house is nudged in the ground while the horizontal plane of the roof reaches out to the landscape, articulating the concept of an ambiguous, mediated relation between the land and the sky. The villa’s most distinctive feature is its comprehensive screening system that transforms the building into a breathing, adaptive envelope.

The adjustable wooden louvres create a dynamic façade that responds to the sun’s movement throughout the day, casting intricate shadow patterns across interior surfaces while maintaining visual connections to the landscape. These screens work with perforated brick walls at ground level, creating a layered filtration system that addresses solar protection and privacy.




Ahmedabad’s harsh light is further modulated with transitional elements like verandahs with deep set French doors. Wood, as a material, gives a sense of comfort in all climates. Much of this wood has been recycled from old timber beams from abandoned houses and ships. All the structural and internal brickwork uses bricks made from crushed debris.
Water becomes a central organising element through stepped pools and reflecting surfaces that extend interior spaces outward while providing natural cooling. The timber walkways traversing these water features create transitional zones where inhabitants move between degrees of enclosure and exposure.



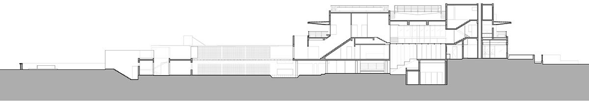
The material strategy reveals a sophisticated approach to sustainability, with reclaimed timber providing textural warmth that counterbalances concrete and brick elements. This commitment to circular construction principles extends to the crushed debris brickwork, demonstrating how contemporary architecture can embrace environmental responsibility without compromising aesthetic quality. The vertical circulation unfolds through double-height spaces where natural ventilation and filtered light create comfortable environments that reduce dependence on mechanical systems.

This villa exemplifies how contemporary Indian architecture can honour traditional environmental strategies while embracing modern spatial concepts, creating a residence that is both climatically responsive and architecturally sophisticated.