Project Description
[Text as submitted by architect] The Quick Turn-Around (QTA) Facility is located at the Jackson Hole Airport, the only airport within a National Park. The QTA is located just south of the previously existing rental company car wash facility. The orientation of the QTA is derived by the angle of the existing east access road and the west row of buildings and hangars.


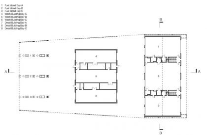
The QTA consists of three program spaces: a fuel island, wash building, and detail building. Each of the three program spaces are divided east to west into three independent bays to house three rental car companies. Operations are sequenced in order – fuel, wash, detail – from south to north. The north detail building is the only building with a second mezzanine level. This is used for mechanical equipment, storage, as well as an employee break room.



Overall site planning and desired program spaces were provided by the Jackson Hole Airport based on existing constraints, increasing demand, as well as future phasing and growth of airport development. Maximizing operational efficiency was a driving factor of the overall design, therefore the environmental conditions were addressed directly. The three program spaces all reside under one large heroic low-sloped roof. The continuous roof provides overhead protection from rain and snow in between buildings and at the exterior fuel island. To complete the bold statement of a continuous roof plane, the project is encased in a perforated rusted metal screen, creating a simple yet striking massing form. Washing and fueling functions are hidden from public view, positioned behind the visual barrier of the metal screen. At peak operation, each company can run approximately 200 cars through the facility per day.



Materiality was intended to complement the existing palette of the main airport terminal building (which CLB served as the local architect); rusted metal, concrete, steel, and timber. Material treatment was chosen to blend with the surrounding landscape. Rusted perforated metal panels were used as a screening element to be the predominant material visible from most vantage points of the overall massing. Exposed steel was used structurally and for an industrial aesthetic. Translucent panels at the upper level provide natural light at both levels as the upper mezzanines are open to the bays below. The overall facility concept adheres to the desired sequence of operation, while providing protection from the elements. Muted architectural details provide a platform to amplify the overall statement and backdrop of the QTA – the excitement of the airport.



