Excerpt: LBlack House, designed by M2 Senos Arquitectos, features an L-shaped layout, protected by two floors to the north, creating a sunny courtyard. The idea was to give the house materiality, robustness, and harmony with the street, countering the idea that large walls guarantee privacy. The black exposed brick facade of the residence emphasizes its solidity, as if it emerged from the ground.
Project Description

[Text as submitted by architect] A short distance from Porto’s metro line, we find a periphery where the past and present intertwine. In this region, ancient centers coexist with recent housing developments, whose designs, often anonymous, prioritize the construction of single-family homes. Still a waiting territory, surprisingly, agricultural fields persist, resisting the urban transformations that slowly shape the surrounding landscape.



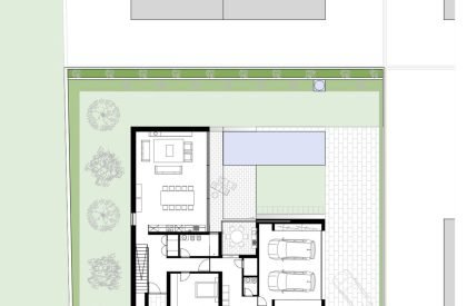
The exercise was pre-defined: a regular plot with an L-shaped layout, protected by two floors to the north, creating a sunny courtyard. It would be necessary to give it materiality and robustness, resolve the significant differences in levels with the neighboring plots, and fundamentally establish a harmonious relationship with the street, countering the idea that only large walls, which hide everything, guarantee privacy.


Thus, while the entire house opens up to the courtyard with large openings directly connected to the outside, imperceptible from the street, it exposes itself to the community with a railing that limits but does not conceal its presence.



Granite, a typical stone of the region, appears in all the pavements and surrounds the house, extending its design through the planters and some elements like benches and the pool. As if the house emerged from the ground, the black exposed brick, both defensive and expressive, emphasizes its solidity.


All facades have strategic openings, aimed towards the landscape. However, the south-facing openings are treated as the main facade, always protected from solar exposure. These openings include intermediate spaces that are neither fully interior nor exterior, like the balconies of the upper-floor bedrooms, ensuring comfort and privacy.

