Excerpt: Louny Municipal Swimming Hall is a public space designed by the architectural firm dkarchitekti. Placing the swimming pool scene in the city’s public space thus naturally encourages participation in sports and recreational activities inside the hall. The object’s openness enhances a positive perception of the swimming hall’s area as a space intended for anyone. This program breaks prejudices about the sporting environment, and locals are motivated to improve their fitness.
Project Description
[Text as submitted by Architect] This dynamically shaped, on all sides, barely open crystal reveals the indoor world of a swimming hall on its south side. A sloping roof surface with a sharp scarf of side façades enables two very different worlds to meet: one of a minimalist blue swimmer practising water sports in a wood-panelled room, the other of a random passerby dressed in warm winter clothing.


The tension of contrast between these two worlds is reflected in the rippling glass façade facing the public space that adjoins the neighbouring municipal office buildings. Through this mutual interaction revealing the secret of movement, residents are invited to spend their leisure time actively engaging in physical activities.

The significant roof slope corresponding with the local terrain slope provides the necessary clear height for the pool hall. At the same time, its overhang regulates sun rays penetration for different seasons. On the other hand, the standard clear height on the object’s north side fits a pool bar, showers and a sauna world. This world emerges from the crystal mass with its cooling terrace on the coldest side of the building with a view over the Bohemian Central Mountains.


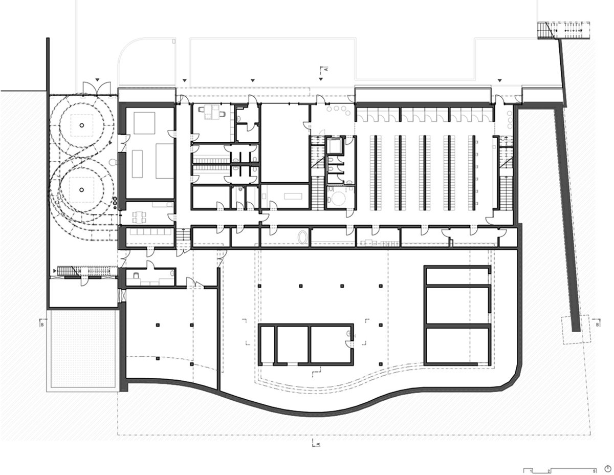
The basement containing technologies, facilities and storage space is attached to the original terrain level difference. The use of this local given minimizes necessary terrain works. The upper floor is dedicated solely to the water and sauna world with a communication centre point at the pool bar. On the west side of the building, there is an outdoor whirlpool and a water slide with a stairway tower, a symbol of swimming halls, positioned at the city’s main road.


The building aims to exceed the usual way of swimming pool solutions, typical for its shunning of views from the surroundings. On the contrary, this swimming hall opens with the main glass façade. It gives passersby an insight into the sporting activities within. Placing the swimming pool scene in the city’s public space thus naturally encourages participation in sports and recreational activities inside the hall. The object’s openness enhances a positive perception of the swimming hall’s area as a space intended for anyone. This program breaks prejudices about the sporting environment, and locals are motivated to improve their fitness.


