Project Description
[Text as submitted by architect] The hall, located on the outskirts of Salzburg, once churned out tanks and materials for the war effort. Its rebirth as a market hall required two distinct aspects: embracing the industrial charm and reinterpreting market typology. The market structure begins in the middle of the hall, where the existing brick walls serve as a frame. This creates an exciting contrast between a historical structure and modern architecture.
A sophisticated space concept turns the historic industrial substance into a melting pot of producers of high-quality regional goods that are presented in such a manner that transcends shopping and creates a world of enjoyment. There are no direct paths, no counters and no specific floor plan, thus ensuring that visitors are in constant movement. Vendors and visitors experience the space, the production, shopping and enjoyment together, as a one-of-a-kind world of sensation.


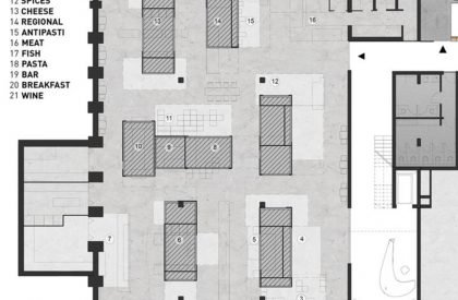
What typically comes to mind when picturing a market hall are stands and vendors stacked neck and neck in packed aisles. A front, back and a middle. Not in Panzerhalle. “We wanted to create a place conducive to a leisurely stroll. Where efficient shopping is not the primary goal, but rather your embarking on a journey of discovery, where you find inspiration and are almost only incidentally aware of the goods being offered.” Explaining the space concept is no easy task: it’s more of a model of staged room structure developed in all areas, levels and directions—also towards the top. Floor plans, walls and ceiling landscapes morph into one another to continuously create new impressions of rooms, niches and structures. The order seems random. But the space concept has been organized in painstaking detail as a stage for products—always with the respective user in mind, always tailored to their requirements. It is also a stage for people, where vendors and customers exchange their assigned roles and places, and thus communicate, enjoy and consume in a completely different manner.


“We have developed a room-in-room system that works with objects in all areas—and looks for order in the chaos.” Nothing is more difficult to plan than chaos; nothing is as unnatural as planned nature. The new market hall is centrally organized, thus keeping the walls and the old brick walls in the forefront. Individual market stands are a variation of “one and the same,” while yet retaining their individual character. “We virtually planned everything in the model. But it’s not until the variations of height, the variety of room divisions and the materiality, as well as the vendors and their products, are in the actual location you see a lively togetherness taking hold. Where you find diversity creating something uniform.” The most prevalent elements in the implemented structure are the white containers. They create not only an industrial atmosphere, but their clever layering, stacking and sequencing also create rooms of varying height and dimension. The containers, each unique in size, hang, stand and lay so that they are only fragmentarily perceptible. To additionally irritate the spatial image, mirrors and tiles have been placed between the containers on the ceiling, making the room’s true dimensions only perceptible by taking a closer look. But even then it is an image and its negative. The different container sizes, some of which have been halved and hang as mere objects from above, while others are incorporated as small shops or room partitions, dictate the rhythm of the room.



“The containers are a perfect match for the industrial look and feel of the hall. They create their own atmosphere—but always in harmony with the substance of the old brick hall.” The containers form the structure, while simultaneously performing the role of buckle from room to room. But they also fulfill a very pragmatic purpose: in addition to the inexpensive construction costs, they contain the building’s mechanical and electrical equipment, like the ventilation system. “The system is flexible with various configuration possibilities. The shop spaces are completely integrated in the containers, be it with awnings or two-storied and represent the variety of operators. The design incorporates the needs and presentation of the individual products. We developed a system that facilitates a great degree of variety with very few resources.”



From radiant flower shops to a variety of culinary stands with premium teas, coffees, ice creams, sweets, meat and fish on offer, the market hall houses a colorful coming and going that is embodied by its design as well. The materiality, ceramics and tiles, is repeated in numerous variations and reappear depending on the goods a shop offers. Each vendor also has access to exclusive display areas, on shelves made of weathering steel or intricate wooden constructions. In the seemingly random lies order.“Each shop has its own colors, patterns and materials. However, you will not find any defined borders or set areas—everything morphs into everything.” In addition to showcases, shelves and presentation areas, tables of varying height are also used, thus ensuring that working spaces or service areas are also individually designed. You can lean, stand or sit—but classic countertops are nowhere to be found.




