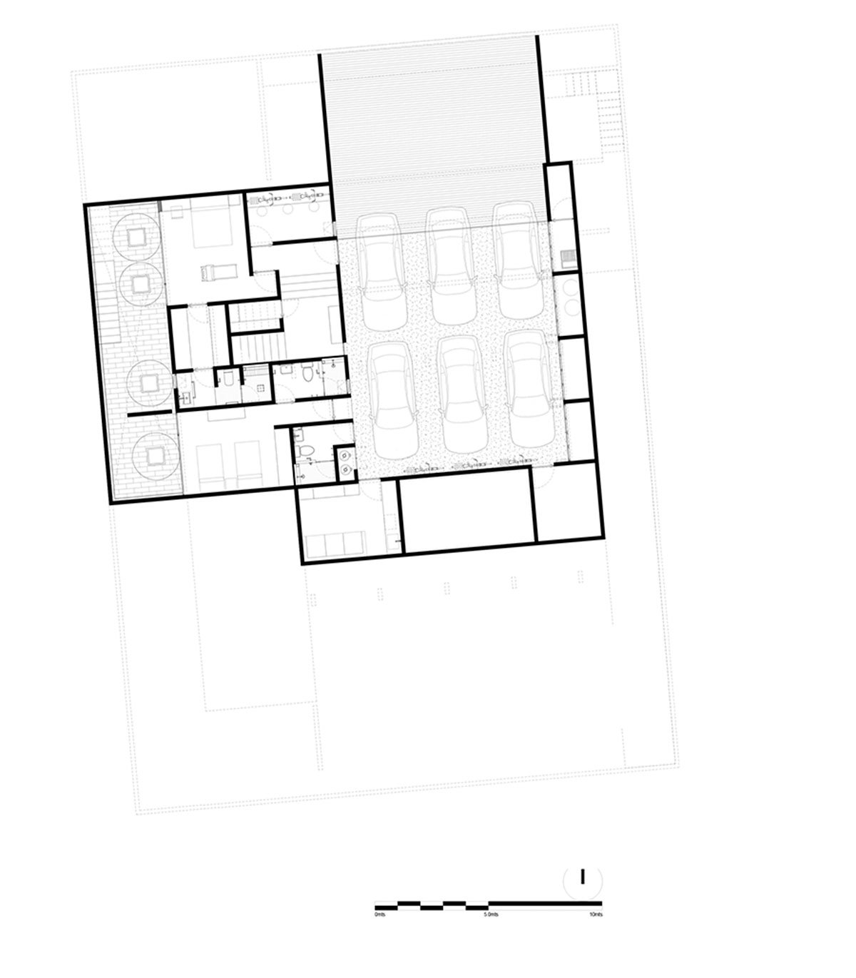
Excerpt: Monte Tauro is a residential design designed by the architectural firm PPAA (Perez Palacios Arquitectos Asociados). The Required Project was separated and arranged based on three circulation axes on the ground floor plan, dividing the public axis, the service axis, and a bedroom block. This architectural approach aims to separate these three blocks in proportional volume and section to make it noticeable that every block serves a different purpose for the project.
Project Description
[Text as submitted by Architect] Monte Tauro is a single-family residence located in Lomas de Chapultepec, a highly residential area of Mexico City. The site is a 30 x 20m rectangle with neighbours on three sides and a street on the north side.


The Required Project was separated and arranged based on three circulation axes on the ground floor plan, dividing the public axis, the service axis, and a bedroom block. This architectural approach aims to separate these three blocks in proportional volume and section to make it noticeable that every block serves a different purpose for the project.


This arrangement in the floor makes an L shaped scheme, which encloses the public area, including the living room, the terrace and the garden space. Here, the enclosed space, separated from the rest of the house, takes the form of a wooden structure, contrasting with the cast concrete, a more solid language.
