Excerpt: Pulo Market, a community centre designed by a9a architects, integrates various living functions to promote community participation & interaction. Pulo Market provides a wealth of vegetables, fruits, and fresh aquatic products to buy convenience, but also tries to reproduce the memory of the lively and human touch in the space, by accommodating diverse needs – coffee, snacks, bars, restaurants, and daily retail.
Project Description
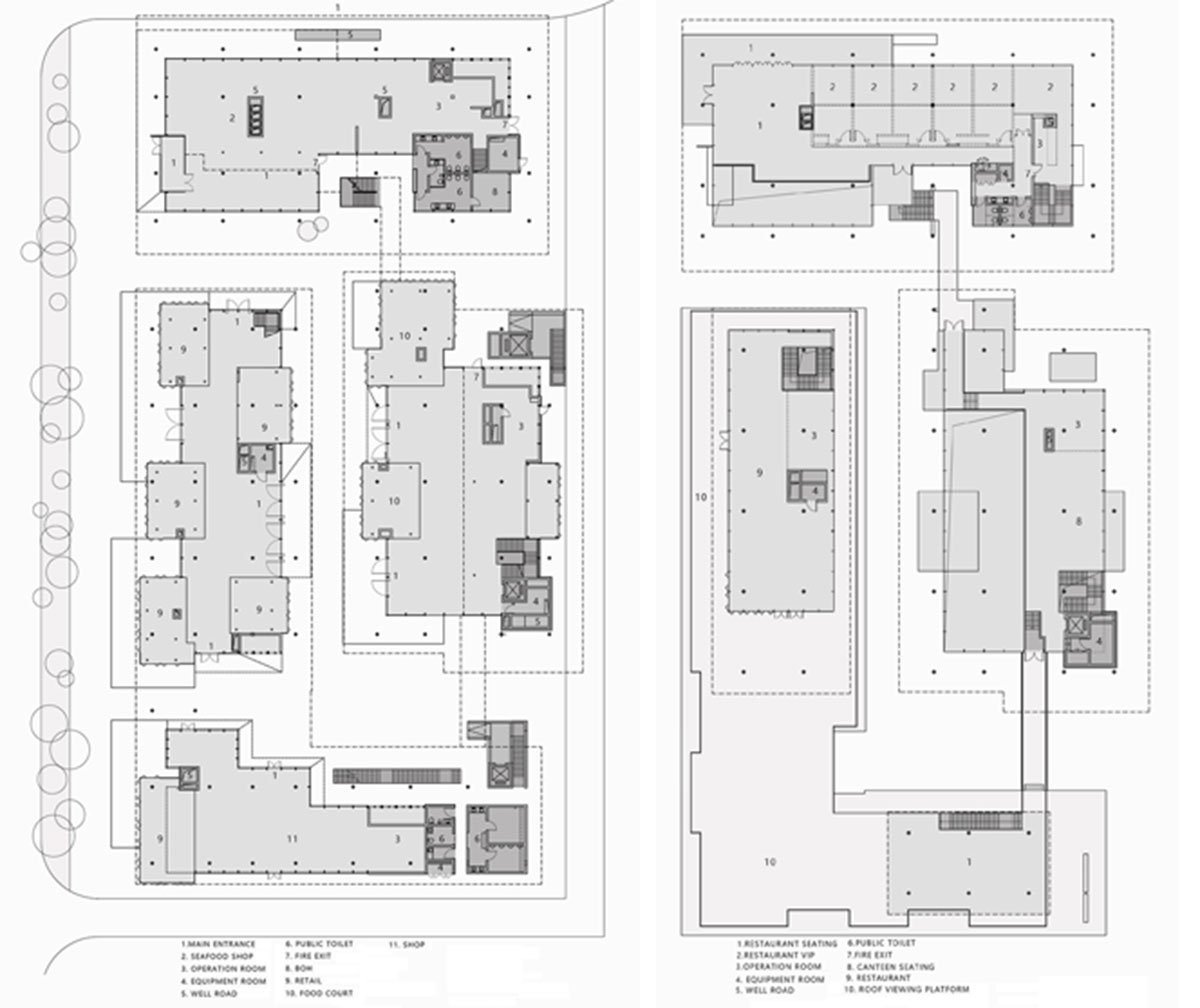
Project Overview
[Text as submitted by architect] With the current development of urban society, the concept of “community” is being mentioned more and more frequently, and has become a new place for new urbanites to reside and create memories. In the face of the upgrading of urban development, we have designed the PULO Market, which integrates various living functions to promote community interaction.
a9a Architects is a young and talented collective of architects, designers, and most importantly thinkers. a9a is interested in all topics directly or indirectly related to architecture and works on projects and research of any scale in the field of architecture.

01 Architecture
1.1 Construction Process
The construction phase is busy and orderly. All the forces gathered to enter the wooden beams and steel columns built here, together witnessing the maturity and integrity of the PULO Market, the ideal life has a touchable form.

1.2 Community Commercial Buildings
In the modern city where neighborhood interaction is increasingly neglected, the warmth of the neighborhood is incredibly precious, as the community atmosphere dispels the cold of winter and recovers the warmth and beauty from childhood memories in everyone’s heart.
1.3 Block Scale
PULO Market grows from this neighborhood, with three relatively independent blocks forming a pleasant scale of the inner street.
The cut line of the segmented block becomes the main circulation connecting the people on both sides of the residential area and the park, as well as an important traffic path connecting various functional blocks.

1.4 Functions of the Boxes
Through thinking about the space prototype of the box, we provide a set of modular and variable schemes for future format planning, which are extended according to the business needs of different formats to meet the overall architectural style. When we put these Spaces into the market, the square is transformed into a block.

1.5 Convenient Living
PULO Market provides a wealth of vegetables, fruits, and fresh aquatic products to buy convenience, but also tries to reproduce the memory of the lively and human touch in the space.
The space can also accommodate diverse needs – coffee, snacks, bars, restaurants, and daily retail, to meet the diversified needs of residents for daily gatherings, dining out, business negotiations and so on.

02 Construction
2.1 Wood, Concrete, Glass
The creation of community fireworks should be considered from the time of material selection. Spruce wood was chosen as the material of choice, forgoing hard and cold materials. The black steel pillars interspersed throughout bring a cooler tone to the building as a whole.
2.2 Clear Structure
Spruce solid wood and steel structure connects modern wood structures, with lightweight structure characteristics, providing infinite possibilities for the construction of multiple spaces. The interior roof is made of purlins and rafters, which are located in the same plane, and the exposed wooden frame reflects the structural beauty.

2.3 Environmental Protection
The PULO Market is built with a large amount of reusable wood, which is environmentally friendly and at the same time more simple and modular in design to facilitate quick completion.
2.4 Terrace and Connecting Corridor
Through thinking about the space prototype of the box, we provide a set of modular and variable schemes for future format planning, which are extended according to the business needs of different formats to meet the overall architectural style.

2.5 Skyline of the Market
The sloping and flat roofs, partial two-story buildings, and accessible terraces create the undulating contours of the PULO Market. The result is a rich dynamic line that facilitates the intersection of users’ views.
03 Landscape
3.1 Living with Nature
From the colorful central park of the community, the volume of the building is subtly dissolved. The landscape is reorganized with the setting of trees along the street level, forming a visual connection with the park with ginkgoes, and continuing the golden color of the PULO Market.

3.2 View of the Entrance
The inner and outer streets are differentiated by different ground materials, and the two inner and outer street junctions are deliberately compressed, while the trees at the main indoor entrance are spaced apart to complete the entrancing atmosphere.
3.3 Plants as Background
In the basic environment with limited land use and intertwined lines, it is difficult to form a forest of greenery, so concessions and borrowed scenery become the most important design techniques, leaving the store display screen and comfortable activity areas to highlight the architecture and let the indoor and outdoor boundaries gradually dissolve.

3.4 Extended Line of Sight
The site is limited, but the view can be extended infinitely beyond the landscape site, taking into account the surrounding environment of the site and the indoor environment of the area. Take advantage of the park behind to arrange the landscape, or use planting to shield the distant site from the less than perfect picture.

3.5 Materials of the Landscape
The inner streets are fully paved with gravel, a material that is not conducive to fast-paced traffic, in contrast to the regular, artificial paving of the outer streets. The ecological advantages of gravel, such as permeability and porosity, are in line with the natural temperament of the rain garden.

04 Interior
4.1 Reunion with Family
The architecture of the marketplace is divided into pieces, giving the space an openness that is suitable for both inside and outside, and using large areas of light-transmitting glass. The interior is planned to bring the eye to the diversity of the market through the planning of the circulation line.
4.2 Winter Snow Scene
In the icy weather, the colors of the winter courtyard fade away, leaving a snowy scene from the inner street promenade to the terrace roof.
4.3 Lighting Settings
The lighting design continues the narrative of the retreat aesthetic, weakening the landscape lights and focusing on expressing the shadowy beauty of nature.
05 Lifestyle
5.1 Warm Neighborhood
On the basis of satisfying the convenience of life, people have higher requirements for community business. Neighbors expect a diversified community that meets their imagination, the happiness of being with their neighbors, and the sense of belonging that brings out their self-worth.

5.2 Celebrate the Holidays
The festive atmosphere here is enough to impress every neighbor and city visitor. Red lanterns, fireworks and moonlight create a festive atmosphere.

5.3 The Ideal Lifestyle
Children enjoy healthy food, young people feel the vibrancy; neighbors awaken past memories in chance encounters……At the PULO Market, art and creativity become the most special commodities.

Conclusion
Whether it’s chasing the fireworks of the festival or enjoying the quiet slow time, everyone has their own exclusive way of life. PULO Market never defines the ideal life but looks for the more beautiful life and brings them to people.