Excerpt: Viter House, designed by Sergey Makhno Architects, was created in collaboration with the elements of nature and inspired by the winds. Its graceful monolith stands firmly on the ground, stretches to the sky, breathes along with the winds, and reminds us that the true essence is in harmony, and harmony is where the house is. The space was organized in a way for the couple to be comfortable alone, for the children to have a place to return with their own families, and for the guests to have a place to sleep, eat and rest.
Project Description
[Text as submitted by architect] Winds are homeless. They blow and breeze, having neither a starting point nor a destination. However, their winnows do not go unnoticed. This time they left behind a home — we named it Viter (‘wind’ in Ukrainian) House.



We created this house for a big family: father, mother, and five children. The space was organized in a way for the couple to be comfortable alone, for the children to have a place to return with their own families, and for the guests to have a place to sleep, eat and rest.



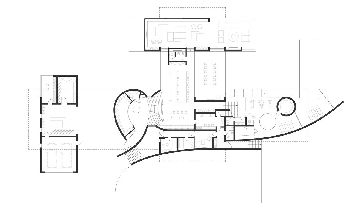
The architecture of the house was inspired by the winds. Those who carefully and persistently carve rocks, dunes, and waves, creating the perfect geometry of amorphousness. We used this technique to combine the regular sharp lines of the concrete blocks on the first floor with the soft wavy shapes of the second one. Amorphous shapes create a fascinating space inside: no straight angles, maximum spatial freedom, and ethereal airiness of the rooms.



All technical areas and common areas are located on the first floor: dressing room, dining room, technical kitchen, living room, gym, spa, and garage. On the second floor, there are personal spaces: bedrooms, office, and bar with access to the terrace and a beautiful lake view. Viter House was created in collaboration with the elements of nature. Its graceful monolith stands firmly on the ground, stretches to the sky, breathes along with the winds, and reminds us that the true essence is in harmony, and harmony is where the house is.




