Excerpt: ‘The (Re)Construction Of A Landscape That Never Existed’ is an architecture thesis by Jorge Borondo from the ‘Escuela Politécnica Superior – Universidad CEU San Pablo’ that seeks to secure the future of Fonte da Telha residents by addressing social and urban challenges through community development and sustainable revitalization. The project focuses on improving living conditions, enhancing public infrastructure, and fostering communal involvement. It aims to reuse and revitalize existing structures while preserving the village’s identity and its multigenerational community.
Introduction: The project outlines the social and urban challenges faced by the village of Fonte da Telha. Around 150 families, totaling about 400 people, live there permanently—88 of whom are fishermen or shellfish farmers. However, only about 45% of the residents are officially allowed to stay under current territorial laws, leading to pessimism and declining interest in improving the village.
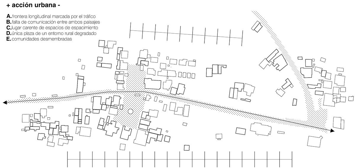
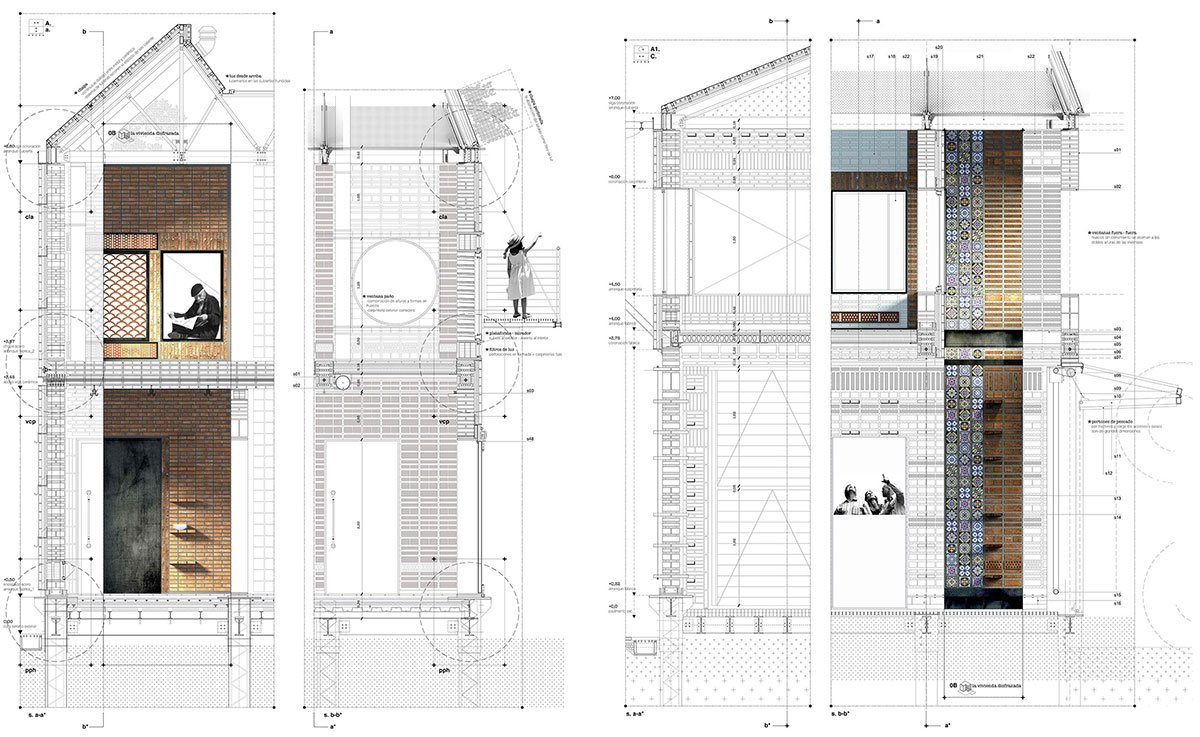
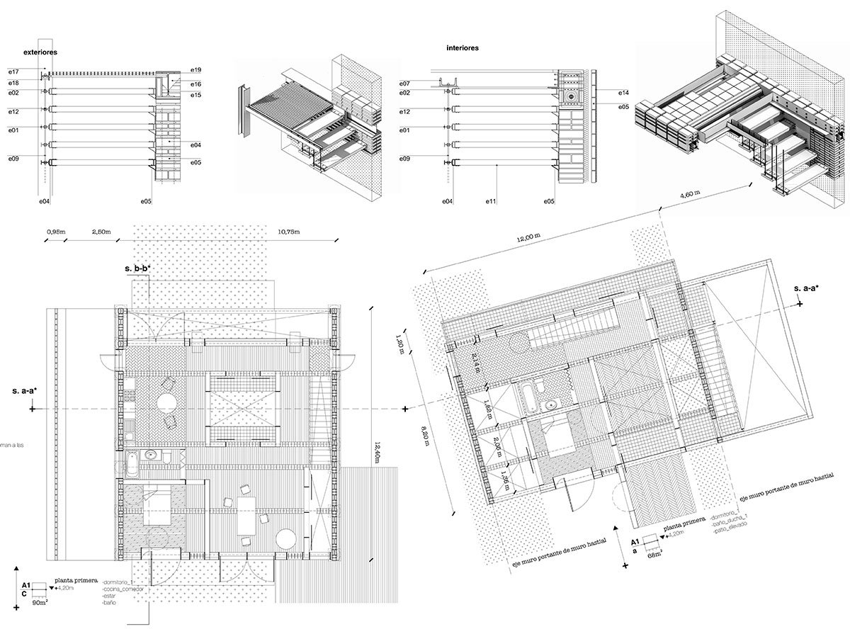
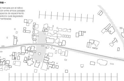
Despite past demolitions, some families have remained, forming a tight-knit, multigenerational community. Most buildings are used as primary residences, but many are abandoned or in poor condition. Public spaces are similarly degraded and lack proper infrastructure or maintenance.
Key problems include poor accessibility, unpaved roads, chaotic parking during the bathing season, and deteriorating public areas with issues like dirt, disorganization, and flooding. Residents also report a lack of safety, lighting, community partnership, and essential services.
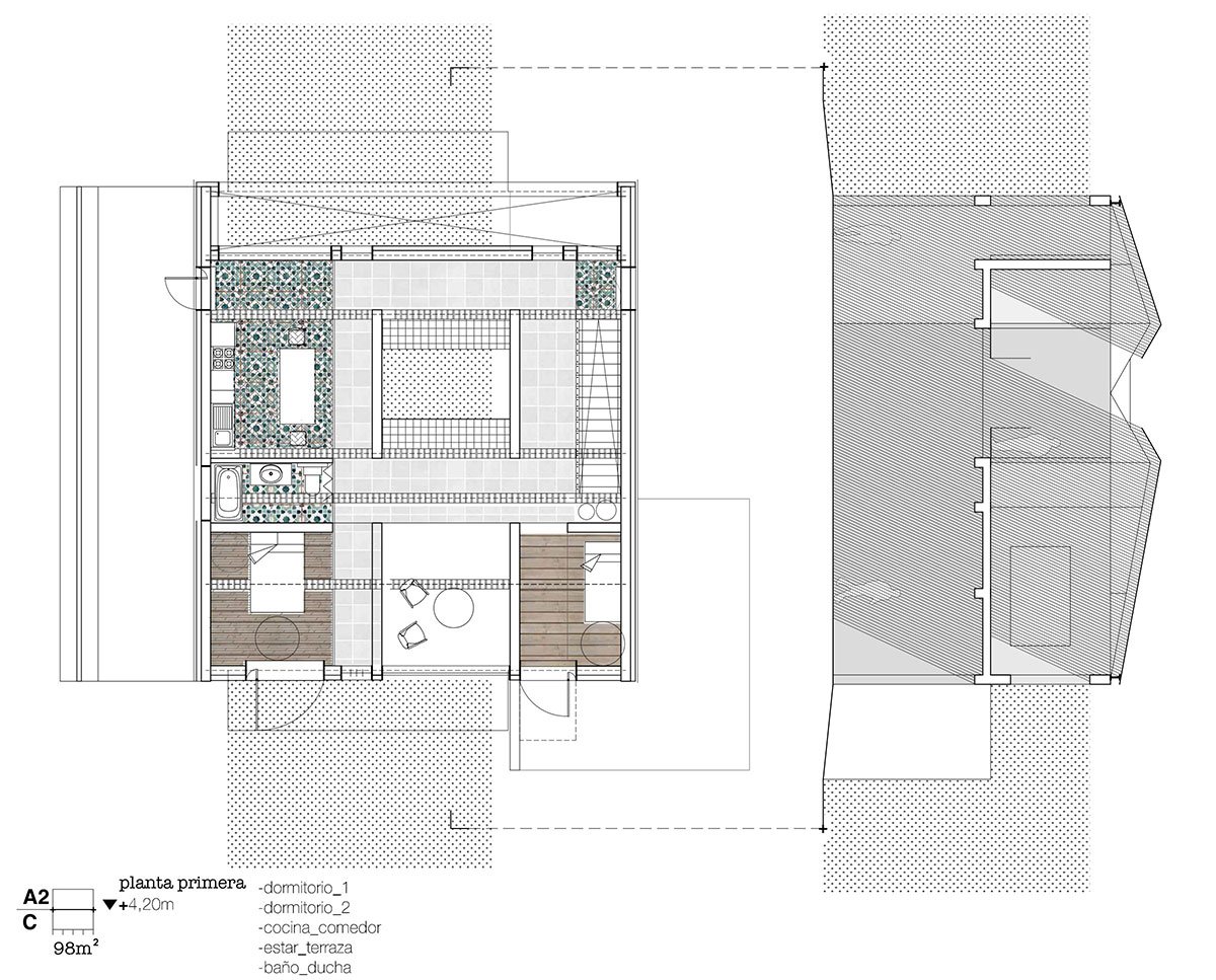
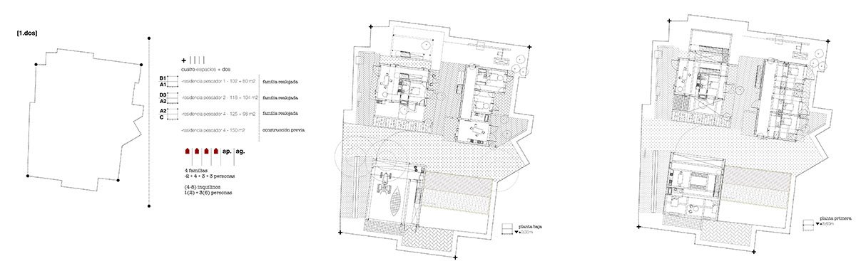
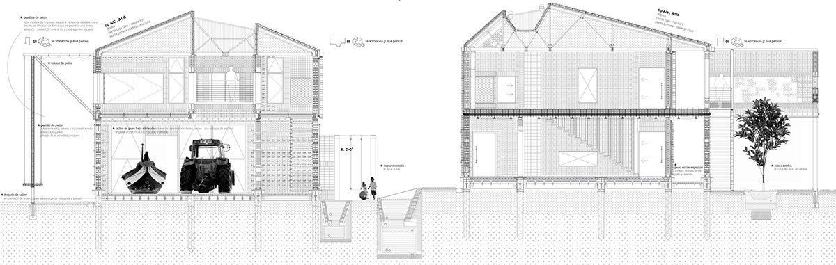
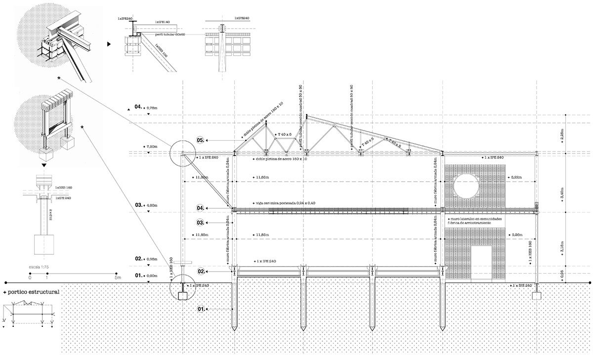
To address these issues, the project emphasizes the need to secure the future of current residents and foster community involvement. The aim is to create cost-effective solutions focused on reusing and revitalizing existing structures and spaces—not for their current value, but for their potential.
Save
























