Excerpt: AA308 Offices is a commercial space designed by the architectural firm MCVR Arquitectos. The aim is to create a workplace that provides new possibilities for an ageing population and opens new collective space at a strategic point in the city. The proposal rehabilitated a prototypical residential property built in 1954 and executed halfway between vernacular tradition and local modernity. Later, the height was extended in 1976, using techniques of the modern practice with ceramic joist slabs and reusing the identical wooden beams from the original house for the roof.
Project Description
[Text as submitted by Architect] The project intervenes on a pre-existing building executed in two phases in the middle of the 20th century. It is placed within a large plot for residential purposes. It is adapted from a previous agricultural use located at the intersection of both main avenues of Dehesas, a scattered town. The aim is to create a workplace that provides new possibilities for an ageing population and opens new collective space at a strategic point in the city.


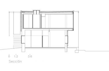
The proposal rehabilitated a prototypical residential property built in 1954 and executed halfway between vernacular tradition and local modernity. Later, the height was extended in 1976, using techniques of the modern practice with ceramic joist slabs and reusing the identical wooden beams from the original house for the roof.

In the rural-urban context, the operation resolves its position to the current official alignment, which is not the same as the original. In this way, a plinth is built that regularizes the piece but cannot maintain orthogonality with the existing building. On the limit of this plinth rises a warp that generates almost virtual planes, a very light geometric veil, which solidifies or dilutes depending on the foreshortening and will enable the office’s future development. It must be a support for vegetation, shade, audiovisual media or other elements.


The pre-existing house offers an internal and an external face. Inside, it’s all about getting as much space as possible. Some encounters are discovered in the operation that tries to be repaired conveniently. In contrast, others are provoked that serve the new use. The interiors rotate around two boxes that articulate the space. The lower one, cold, made of concrete and aluminium, provides light diffusion and reflections. The upper one, warmer, made of pine wood, is suitable for habitat, recreational, and meeting uses, which expands to the outside through the glass that looks towards the mountainous landscape of El Bierzo.


On its external face, the building tries to dematerialize its presence by using polycarbonate typical of local greenhouses. It is a skin that scales through the sharp, re-existing windows and is interrupted by the great new ones. The transformation causes a loss of massiveness that is enhanced by choice of a grey colour that links the façade with the sky. The elevations vibrate horizontally, making the glaze resonate with the polycarbonate; as they melt into the sky as they ascend.

The entire discourse is consolidated in the air trapped between the glaze and the façade. That intermediate space allows the old volume to breathe while taking on a certain intimacy with respect to the external context. The project closes according to its representativeness, more specifically at night. The contained air is illuminated, generating a real halo, which is at the same time a sign of the office and a beacon in the cross that draws the crossroads.