Acute House | MCK Architecture & Interiors

Save
Acute House | MCK Architecture & Interiors

Information

  • Completion year: 2015
  • Gross Built up Area: 271 sqm
  • Project Location: Peats Ridge
  • Country: Australia
  • Design Team: Steve Koolloos, Jarad Grice, Natalie Brcar
  • Structural Consultants: Halcrow & Associates
  • Landscape Consultants: William Dangar
  • Contractors: Cochran Constructions
  • Interior + Furniture: Briony Fitzgerald Design
  • Photo Credits: Brett Boardman
More Info Less Info

Excerpt: Acute House, designed by MCK Architecture & Interiors, is a wedge shaped home consisting of two long concrete pavilions lapping over each other on the acute corner. The House Acute is both robust and compact and provides it’s owner’s with the means to escape their hectic city lives. It is built in off-form concrete, the ground and first floor pavilions are separated by a shadow line and in texture.

Project Description

[Text as submitted by architect] The HOUSE ACUTE is a weekender built for a family of 6 on a site abutting the edge of the NSW coastline. The site is exposed to the ocean elements and also sits adjacent to a severe bush-fire prone coastal bluff. The design and the palette in particular would need to be robust in nature. The site is also a small wedge-shaped, almost unwanted parcel of land, which would also ultimately influence the design. The conceptual approach was therefore to create a wedge shaped home consisting of two long concrete pavilions lapping over each other on the acute corner.

Acute House | MCK Architecture & Interiors
© MCK Architecture & Interiors
Acute House | MCK Architecture & Interiors
© MCK Architecture & Interiors
Acute House | MCK Architecture & Interiors
© MCK Architecture & Interiors

The Ground Floor level is the primary entry level and includes a bedroom wing with associated wet areas. An open planned carport was created beneath the first floor massing above enabling direct access in to the home. A secondary living zone was created at the acute corner.

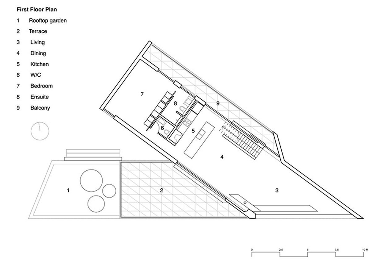
The first floor level is the primary living zone including a large covered terrace on the roof of the massing to the south below, and a cantilevered balcony on the northern side which engages with the street. A self-contained master bedroom wing has been positioned behind the kitchen enabling the owners to use this level only when they stay without their children.

A modest roof-top terrace has been included above the first floor with an internal stair access.
The two overlapping pavilions sit comfortably with the fall in the land such that 4 distinctly different and separate storeys have been created. There is still space to find solitude if and when required.

Acute House | MCK Architecture & Interiors
© Brett Boardman
Acute House | MCK Architecture & Interiors
© Brett Boardman

The tallest point of the massing occurs on the lowest part of the site being the southern boundary. The acute corner sits proudly at the bend in the road that forms an unofficial gateway to the street. At this corner the built form remains quite abstract as a solid concrete structure, giving way to more fenestration as one moves around the corner towards the entry.

Whilst the home is built in off-form concrete, the ground and first floor pavilions are separated by a shadow line and in texture. The ground floor was formed with a smooth off form finish contrasting from the more textured first floor structure formed using horizontal rough sawn boards.

Acute House | MCK Architecture & Interiors
© Brett Boardman
Acute House | MCK Architecture & Interiors
© Brett Boardman
Acute House | MCK Architecture & Interiors
© Brett Boardman

A sequence of existing angophora’s were retained along the western boundary to help maintain privacy with that neighbour. Here the landscape architect has ensured the new and old landscapes blend seamlessly and that the site’s natural surroundings are visually borrowed to extend the site parameters. A relatively private courtyard has been formed between the two concrete pavilions which aids in feeding both light and ventilation to the ground floor.

The acute forms created on the site create a playful geometry and the solid concrete walls become a blank canvas for the shadows of the new and existing foliage to cast upon. The off form concrete skins of the home leave a trace of how they were constructed, not unlike a raw story board. The House Acute is both robust and compact and provides it’s owner’s with the means to escape their hectic city lives.

Acute House | MCK Architecture & Interiors
© Brett Boardman
Acute House | MCK Architecture & Interiors
© Brett Boardman

Leave a Reply