Excerpt: The Aether R&D Centre by EssTeam Design Services LLP reimagines an outdated office into a collaborative, future-forward workplace. Inspired by the four classical elements—Fire, Earth, Water, and Air—the design embodies Aether’s essence through a dynamic façade and minimalist interiors. Balancing industrial strength with creative energy, the space reflects transformation, harmony, and innovation.
Project Description

[Text as submitted by architect] In the heart of Surat’s Hojiwala Industrial Area, the Aether R&D Centre stands as a striking blend of elemental symbolism and modern design. Tasked with revamping an outdated and compartmentalized office space, Aether Industries approached the project with a clear vision: to create a collaborative, future-forward workplace that not only functioned better, but also reflected the company’s name and ethos.



The new design responds both to the industrial context and to Aether’s core identity. Surrounded by built structures on three sides, the challenge lay in bringing in natural light and ventilation while making the built form stand out. The façade became a canvas for storytelling—one that draws inspiration from the four classical elements: Fire, Earth, Water, and Air. In mythologies and philosophies across cultures, these elements come together to form “Aether”—a fifth essence, unseen but powerful.
This narrative manifests on the building’s exterior through four bold horizontal bands. Each band merges two elemental themes using pixelated patterns and vibrant hues, set against a neutral grey backdrop. The result is a façade that is both symbolic and dynamic—imbued with meaning while standing tall in an industrial neighborhood with artistic flair.




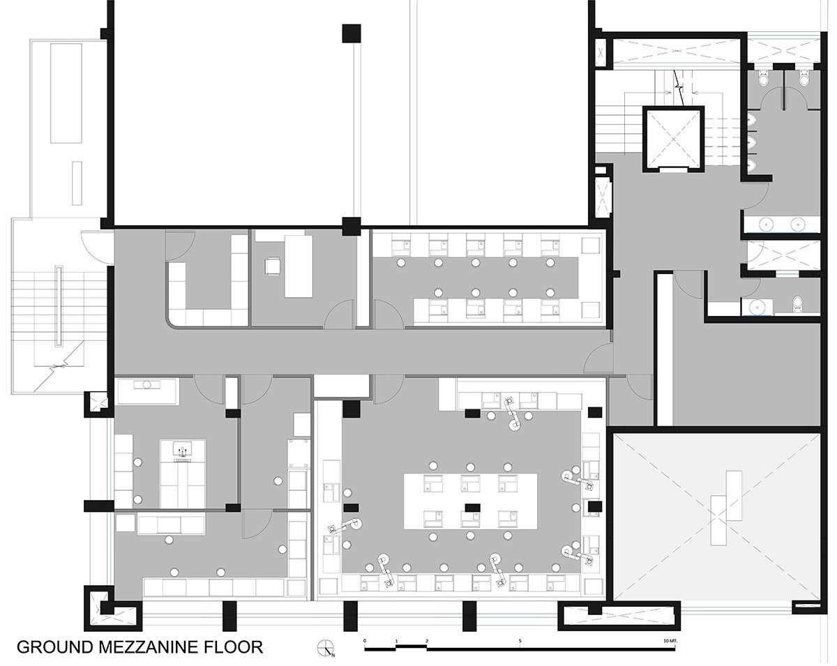
Inside, the transformation is equally considered. The once closed-off and static layout gives way to an open, engaging, and collaborative environment. The design language is clean and minimalist, built upon L-line and straight-line geometries. Dominated by a palette of grey and black, the interiors reflect strength, discipline, and modernity—qualities that align with Aether’s image as a cutting-edge industrial brand. Yet, this seriousness is softened through moments of colour and quirk, where playful elements introduce warmth and energy.
One such vibrant space is the library and lounge—a zone imagined not just for reading but also for idea exchanges and informal gatherings. Rich orange tones animate the space, while playful seating arrangements and a quirky bookshelf filled with multi-genre literature lend character. This space becomes a creative retreat within the otherwise focused environment.



At the heart of the office culture lies a well-designed café—a space that speaks volumes about the client’s passion for premium coffee and fostering community. Blending contemporary with retro, the café’s material palette includes terracotta stucco walls, off-white terrazzo flooring, brass highlights, and white ash wood finishes. The overall aesthetic is clean yet nostalgic, with grey upholstery tying it all together. It’s a space that invites casual collaboration, downtime, and dialogue over well-brewed coffee.
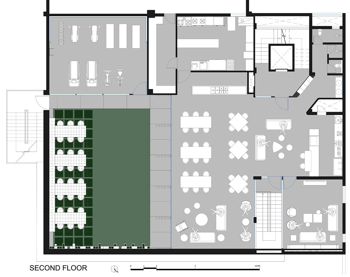
Health and wellness are also central to the workplace vision. The gym area is designed with this in mind—a minimal yet modern space encouraging employees to maintain an active lifestyle. It complements the mental stimulation of the office with physical vitality, rounding out the holistic approach to employee well-being.


Biophilia threads through the design as a recurring theme. From the ceiling-hung creepers in the café to the planter-lined terrace seating, the introduction of greenery is both strategic and aesthetic. Potted plants throughout the office freshen the air, bring in texture, and forge a visual connection to nature. Even in the middle of an industrial cluster, the design creates moments of pause and calm, invoking the outdoors.
Further deepening the thematic consistency is the curated selection of artworks. Echoing the elemental inspiration of the façade, the artworks within the interiors celebrate Earth, Fire, Water, and Air in abstract and illustrative forms. These not only align with the company’s name but also add cultural and emotional richness to the daily experience of the space.

In essence, the Aether R&D Centre is more than a workplace—it is a sensory journey. It balances the hard edges of industrial work with the soft power of design, turning elemental philosophy into spatial expression. From façade to furniture, the project is a reflection of transformation—not just of space, but of the company’s vision for the future.

