Excerpt: Akashi Residence by Alexis Dornier is designed around a striking central void that invites light, air, and movement into the heart of the space. At the core of the residence is a sculptural slide, symbolizing playfulness and creativity. The flowing forms and open layout foster a sense of continuous motion, while the integration of natural materials connects the home to its tropical surroundings.
Project Description

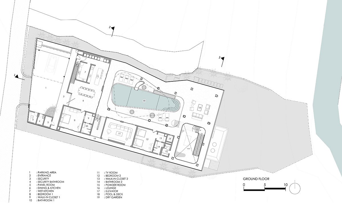
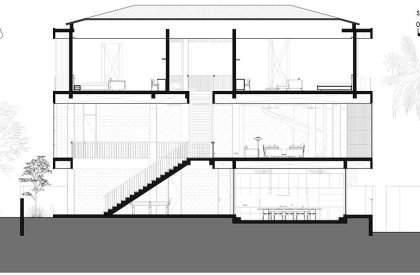
[Text as submitted by architect] Set in the scenic village of Pererenan, Bali, Akashi Residence is a thoughtfully designed six-bedroom home that combines modern architectural principles with a spirit of creativity and exploration. The house is defined by its bold central void, an architectural centerpiece that brings natural light, air, and a sense of openness into the heart of the home.



At the core of this void is a sculptural slide, a feature that reimagines the boundaries of residential design. Beyond its functional purpose, the slide serves as a symbol of playfulness, encouraging interaction and evoking a sense of fun and curiosity. Its sweeping curves give the space a dynamic presence, acting as a striking focal point that connects the upper and lower levels both visually and physically.


The handrail system, with its flowing, conveyor-belt-like design, amplifies the energy of the void. Together with the open circulation and airy layout, it creates a sense of continuous motion, as though the house itself is in conversation with its inhabitants. The void evokes a feeling of being within a whirlwind, where movement and light dance across the architectural surfaces, heightening the sensory experience of the space.



The lower level opens to a tranquil pool, balancing the playful energy of the central void with moments of calm. This thoughtful juxtaposition of elements creates harmony between activity and relaxation, embodying the home’s seamless integration of indoor and outdoor living. The design leverages Bali’s tropical climate, with open spaces, lush landscaping, and natural materials creating a deep connection to the surrounding environment.

Akashi Residence is a home designed for exploration and joy. From its playful slide to the architectural rhythm of the central void, the house celebrates movement, light, and a strong connection to nature. It offers its inhabitants a unique living experience, one that is both functional and inspiring, without losing sight of the importance of fun and human connection.