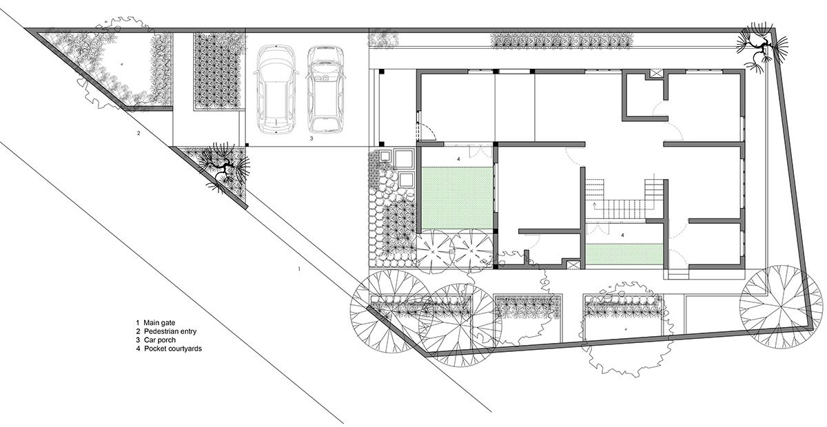
Excerpt: In ALCOVE, a residence designed by The Design Room considers the impact of the highway adjacent to the plot and sets the house in a tropical niche. The house was zoned towards the farther end of the site, thus ensuring sufficient front yard space to accommodate the landscape inserts that, along with announcing the point of arrival, also aid in buffering and ensuring privacy within the open spaces of the house.
Project Description

[Text as submitted by architect] The site is located along a bustling highway on the urban fringes of Kollam, Kerala. Considering the impacts of the highway, the idea was to set the house in a tropical niche. The house was zoned towards the farther end of the site, thus ensuring sufficient front yard space to accommodate the landscape inserts.


The landscape inserts, while announcing the point of arrival, also aid in buffering and ensuring privacy within the open spaces of the house. It enhances visual appeal, regulates temperature, and reduces noise while being a visual barrier from the adjoining highway. It also opened the possibility of designing an open plan with prominence for cross ventilation and natural lighting, which is inevitable considering the humidity of the context.




The architecture style, which is a contemporary blend of traditional Kerala architecture, blends well with the landscape setting. A terracotta sloping roof, exposed brick pseudo walls, and earthy hues complement the tropical landscape around them. The pseudo walls, the entrance ivy, and landscape inserts complete the buffer planned from the highway.



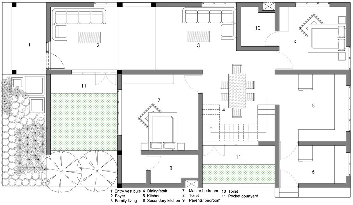
This compact 4-bedroom residence is designed with minimum wall partitions to enhance cross ventilation and visually larger interiors. The skylight between the entrance foyer and living room capitalizes on the north lights and shading from the sloping roof on the southern block. On-site corrections were implemented to minimize direct sunlight passing through the skylight.


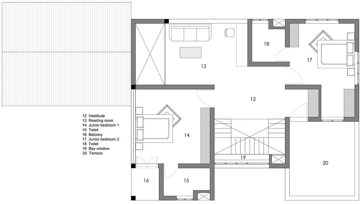
Two pocket courtyards are inserted between the entrance foyer and the dining room. These are designed as spillover spaces with the necessary privacy for the inmates and guests. The family area and the reading room are zoned away from the highway. Indoor plants, rattan weaves, cane furniture, and coir furnishing are extensions of the tropical features of the design concept. The furnishings and colors were hand-picked to complement the tropical narrative.


