Excerpt: Alone House is an architectural project designed by Story Architecture in Vietnam. All the spaces in house have designed floor vents, or glass arrays to free up the vision, Especially the bedroom they designed a floor vents so you can watch the sky relax before you fall asleep, and the early sunlight will wake you up instead of the phone alarm.
Project Description
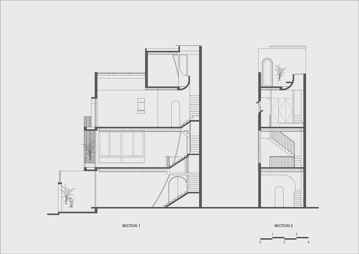
[Text as submitted by architect] The Alone House project is a small house for a single guy. The house is located in a small alley in Ho Chi Minh City. Life in the city with a lot of pressure about work, pressure about traffic jams, pressure about living expenses … A house with lots of space to relieve the pressure is the criterion the design of this project.



Although the area of the house is small, all the spaces in our house have designed floor vents, or glass arrays to free up the vision, Especially the bedroom we designed a floor vents so you can watch the sky relax before you fall asleep, and the early sunlight will wake you up instead of the phone alarm. The large glass array with irregular curves in the stair area also makes it more interesting to move.



The courtyard and greenery attached to the kitchen and dining space helps you relax more when eating alone Living room with large glass array and surrounding greenery, helping to free up the view and create comfort when living in small spaces.


The house is located in a small alley, the distance from the opposite house is very much, so the shading system helps the house get light and wind, but still private, not disturbed by the opposite houses.


