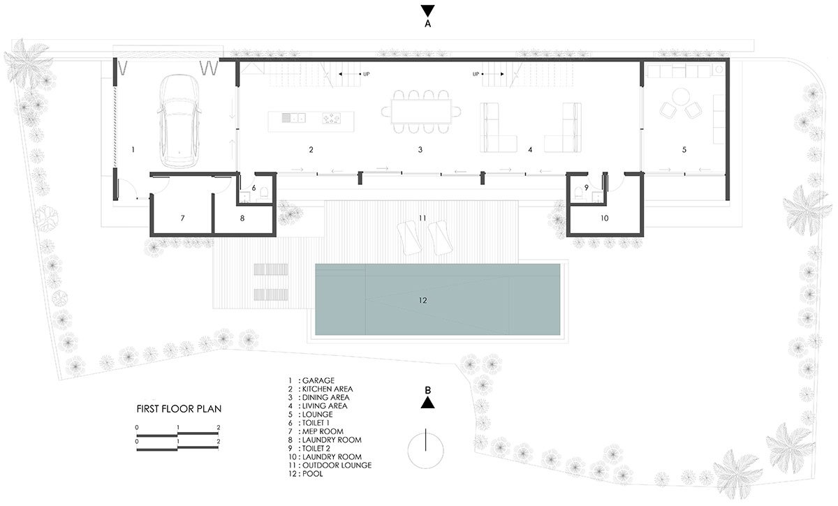
Excerpt: Alpha House, designed by Alexis Dornier, is a two-story building consisting of two distinct architectural expressions. The ground floor is a simple box volume that houses the living room, kitchen, foyer, and garage, while the top floor features a unique theme with twisted surfaces on walls and ceilings, creating a rhythmic sequence. The design of the residence conveys a unique concept, with fluidity serving as a symbol of joy and creation.
Project Description


[Text as submitted by architect] This two-story building is a stack of two distinctive expressions of architectural ideas. The ground floor is articulated as a simple box volume that holds the living room, kitchen, foyer and garage. It acts as the pedestal for the above. The top floor has its own distinctive theme. A series of twisted surfaces express themselves as walls and ceilings, repeat and create a rhythmic sequence.



Grid shells have always appealed to the architects, as they suggest interesting and new ways to define roofs. In the case of the ‘alpha house’, walls become the roofs and create a silhouette, consisting of an iconic and rhythmic pattern that sticks – completing the picture of a sculptural object blending into its environment- with the rolling mountain scape of Bali as its background.




A pool runs parallel to the building direction and reflects its wavy character in the water plane. The layout is simple, practical, and repetitive. The building’s east-west orientation provides self shading and shields off neighbors.

Materials used are walls with ‘kerobokan’ stone, a local hard sandstone found in the vicinity of the site, and represents a traditional material that people use for their constructions in Bali. The architects aimed to express and evoke a distinctive meaning or topic. In this case fluidity stands for the way forward, expressing the joy for and of creation.