Excerpt: Bat Trang House, designed by VTN Architects, inspires the exterior by the traditional beauty of the town; whereas, the interior ensures the convenience and comfort of today’s modern life. The spatial arrangement of the house was also based on the owner’s ideal home, where nature intertwines with other functions of the house. The façade of the building represents the community’s unique culture of ceramic pottery making.
Project Description
[Text as submitted by architect] The project is situated in a unique location of Bat Trang Town – a pottery village that has been around for more than 10 decades. The façade of the building represents the community’s unique culture of ceramic pottery making. While the exterior was inspired by the traditional beauty of the town, the interior ensured the convenience and comfort of today’s modern life. The spatial arrangement of the house was also based on the owner’s ideal home, where nature intertwines with other functions of the house.


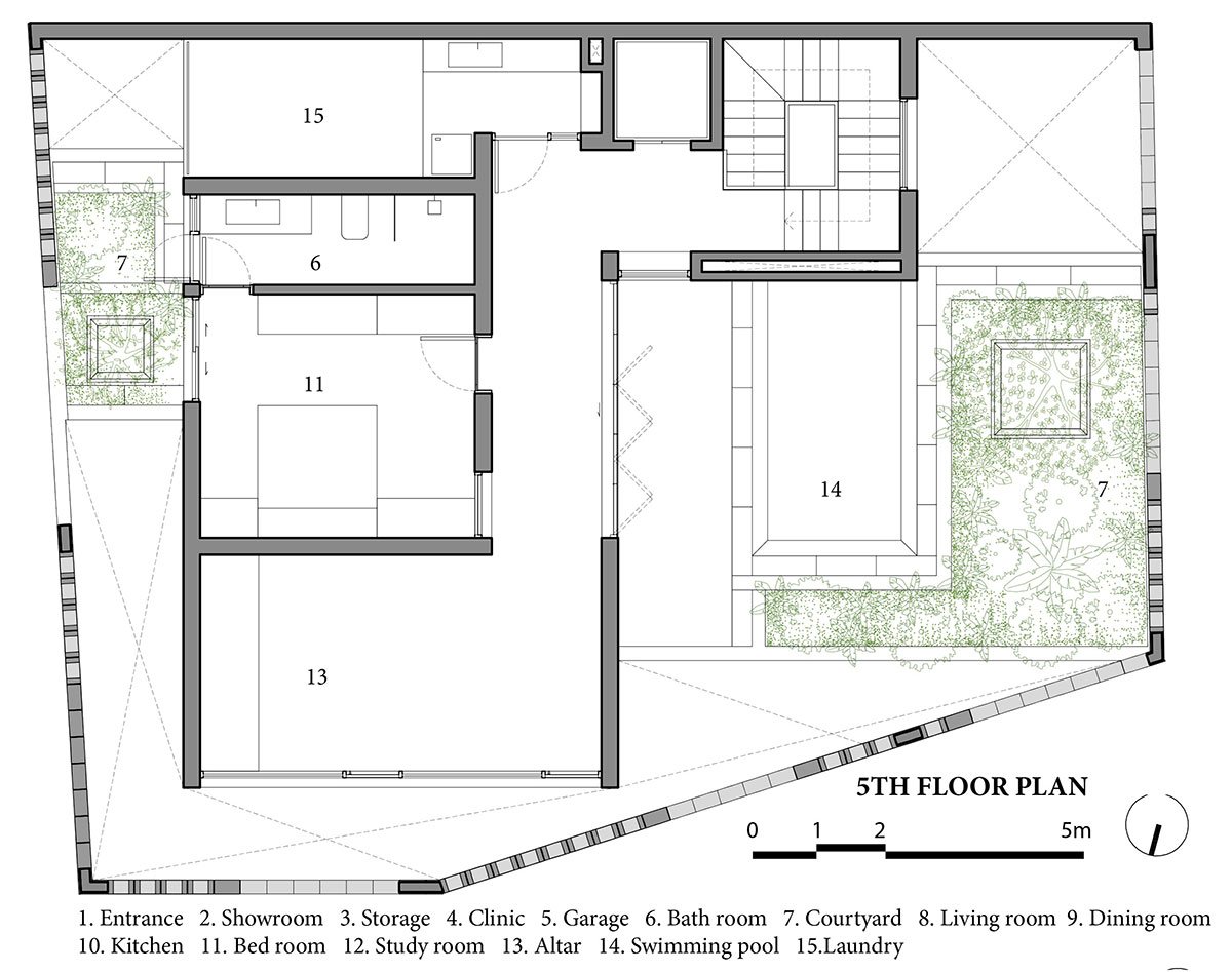
The brief of the project was to design a home for a seven-member family and a place for relative get-togethers. Besides its residential uses, Bat Trang House also functions as a shop, trading the traditional ceramic products of the pottery town.


In the cultural-rich context of the village, using local materials was prioritized by the design team. Additionally, the owner was a ceramic specialist, hence VTN Architects were able to take advantage of the material. Ceramics has its own rough aesthetic and high durability, which was suitable for the exterior skin of the building. The entire façade of the design was made purely out of ceramic bricks. The bricks were individually made to size to create the alternating rhythm, opening up in some spaces while closing in others. The small gaps created by the brick’s placement act as vents, circulating the air throughout the building. Whereas the big openings of the façade situated sizable greeneries, allowing filtered light the flow through.


The interior spaces were designed with a minimalistic approach. Large glass panels were integrated without the fear of getting the house overheated, as direct sunlight was filtered by the two layers of ceramic façade and greenery façade. The gaps of the ceramic walls function particularly well in terms of effectively getting the right amount of solar gain for the interior, especially in the summer.


The uses of artificial air conditioning were unnecessary as the three-layer ventilation system “exterior ceramic façade”, “alternating green spaces” and “door” guarantee that the house is “absolutely cool”. Solar panels and rainwater collectors also took part in the sustainable design. Vast windows and alternating ceramic openings connected by the indoor forest create a multi-layer living picture frame that would be ever-changing for the occupants.




The intimate connection of people with nature was notably important to the design team. VTN Architects ensure the natural and sustainable living quality in every residential project. The designs make sure that the occupants could always feel the freshness of greeneries and the ambient skylight in their daily activities.

