Excerpt: Bay House by BNA Design & Planning Pvt. Ltd. is a compact retreat designed as three linear bays: one for bedrooms and two forming the living core. Openings at each end frame views and extend the interiors into the gardens, while orientation to sun and wind ensures comfort and privacy. With natural materials, deep overhangs, and a restrained palette, the residence offers quiet luxury shaped by light, breeze, and landscape.
Project Description

[Text as submitted by architect] Bay House is a compact two-bedroom retreat in a 13-acre master plan. The client wanted a home that opened to its surroundings while offering privacy for short stays.

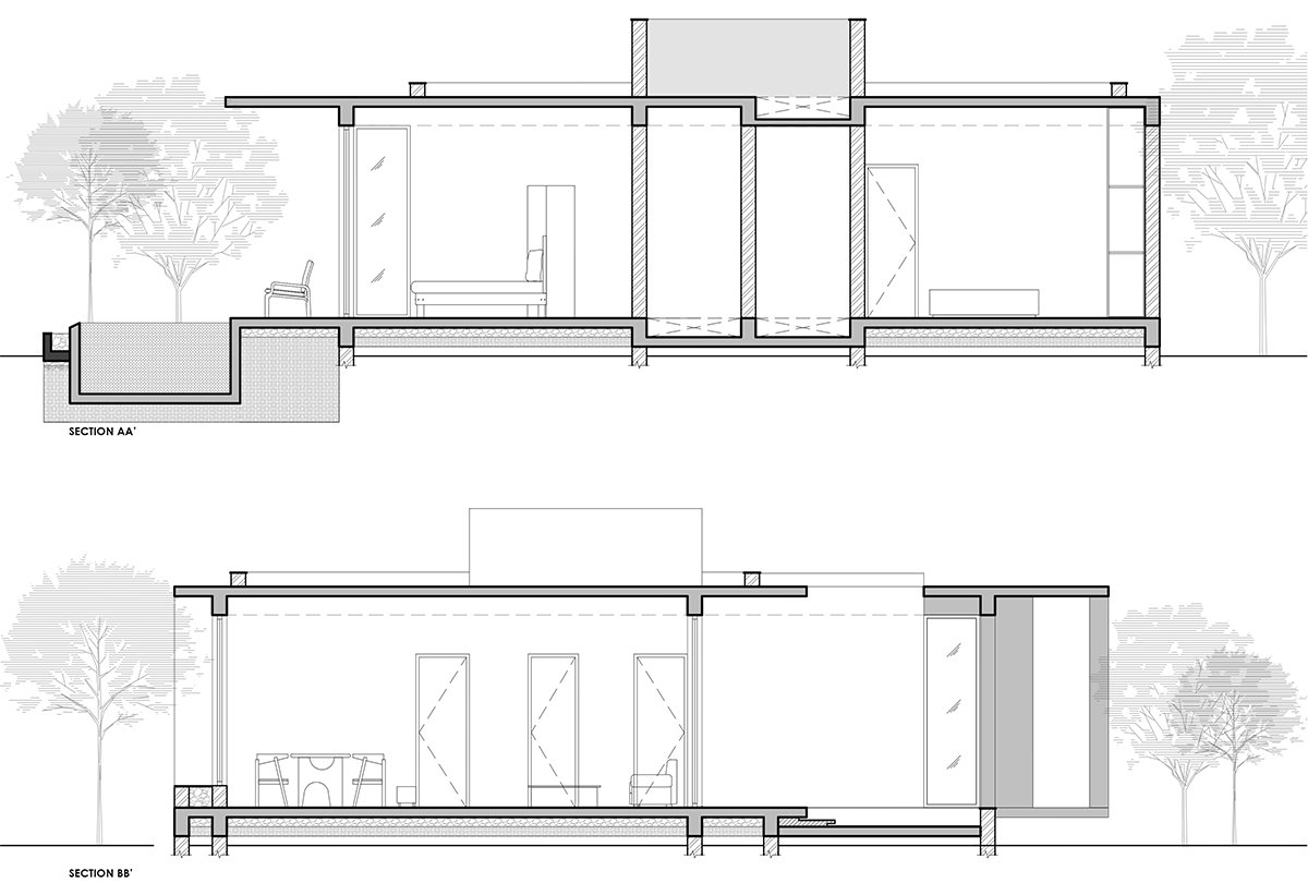
The design is built around three linear bays. One bay houses the bedrooms; the other two form the living core—an open-plan arrangement of living, dining, and kitchen. This setup allows uninterrupted sightlines, cross ventilation, and a direct connection to the gardens. Openings at each end frame views, turning the outdoors into natural extensions of the home.



Orientation responds to sun paths and wind movement. The bedroom bay shields from harsh light yet opens the main bedroom to a pool deck and garden. The family bays are porous, creating a seamless transition between inside and out.

Materials include local stone floors, reclaimed teakwood, and lime-based finishes in muted. A restrained palette—earth, wood, beige and white—anchors the house in a timeless Zen. Deep overhangs recess the inside spaces protecting from harsh sun and glare, softening the visual experience for the user.
Bay House offers quiet luxury in modest form—spaces shaped by light, breeze, and the gentle presence of accessible landscape.

