Excerpt: Binh Thuan House, designed by MIA Design Studio, is an ordinary residential architecture, having the organization of natural light and ventilation, creation of functional spaces and internal circulation. The interior design of the house has three-dimensional hollow frames that were modularized in order to develop more spaces in the future without disturbing the original design.
Project Description
[Text as submitted by architect] This is a townhouse located in Phan Thiet City, Binh Thuan Province for a family of four. Right from the start, we approached the project with a limited budget and the basic demands required for a young family’s life. These inputs set the direction to approach architecture practically, mannerless and highly proactive. Another interesting thing is that the project was designed and built during the isolation of the Covid epidemic, so we had to come up with a design direction that could be communicated and managed remotely with the local construction team.


This house is a true ordinary residential architecture. When we do the ordinary, we do it in a very basic. These basics are the organization of natural light and natural ventilation, and create the functional spaces and internal circulation, thereby creating both behavior and life. Because the basic is concentrated as much as possible, the house forms the outer covering, as well as the roof, pillars… naturally.

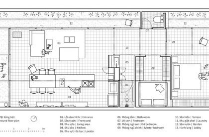
From the outside, it looks like a common corrugated iron house in the countryside with a prefabricated steel frame structural system. However, it also implies that the bearing frame of the house must also be a sliding door frame, a frame for hanging furniture, a frame for curtains, a frame for hanging clothes… We seek to reduce the cost of construction by the way to create multiple-role playing structures. Moreover, the construction material could be found easily in around 1km. In addition, the form of the interior design of the house will initially be three-dimensional hollow frames that are modularized so that the owner can develop more spaces later without breaking the general design.


As a result, we created a house where the load-bearing structure presents a true architectural form and then plays the furniture parts as well. The space of the architecture at this time has created a premise for users to participate in shaping the aesthetic in the next stage. Depending on the needs of use and lifestyle, the general aesthetic of the building will be flexible corresponding to the modular system without causing conflict with the architect’s original design.



This design experience has questioned us about how to build when the resources around us become limited, and values turn superficial and invariant over time. Sometimes, the basic is sometimes the best we can do!

