Excerpt: The Brainergy Hub by HENN is designed as a striking rotunda structure and social knowledge hub, embodying the transition to renewable energy and a green future. Using modular timber-hybrid construction, it combines sustainable materials with energy-efficient technologies. Its circular shape fosters collaboration, flexibility, and connectivity, while the interior design creates an inspiring, workshop-like atmosphere for innovation.
Project Description

[Text as submitted by architect] The Brainergy Hub project located in Jülich is the centerpiece of a new innovation park for companies and start-ups dedicated to sustainable and renewable energy research, bioeconomy and digitalization. Designed as a striking rotunda structure, the new build functions as a social knowledge hub for Brainergy Park, embodying the transition to renewable energy and a green future. It is a pioneering example of modular timber-hybrid construction, making innovative use of materials, forms, and energy-efficient technologies.
Set within a vibrant park, the Hub is embedded in a diverse natural biotope that helps moderate the urban microclimate and mitigate the heat island effects of the surrounding buildings. A newly created lake serves as a retention basin for stormwater runoff from the broader site.



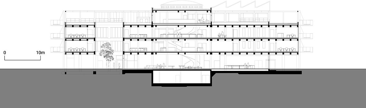
Its circular shape makes Brainergy Hub omnidi-rectional and links it to all neighboring buildings. Inside this circle, modular units form a pixelated cloud, which is enclosed by three rings of balco-nies on the upper floors. This structure allows for easy subdivision and a playful arrangement of interior and exterior spaces. The highly rational grid is accentuated by a large central atrium and four smaller courtyards that vary from double height to triple height, providing fresh air and daylight to employees throughout the building. The façade integrates innovative ‘breathing’ ventilation units that ensure high indoor air quality, heat recovery, and improved comfort.
The modular system includes spaces for several smaller companies whose employees can gather in communal areas located around the central atrium for co-working and informal interaction. A generous spiral staircase guides visitors through this communication space, while additional external staircases serve as shortcuts for employees and allow the office units to be accessed independently from the balcony rings. The top floor features rentable event spaces with a rooftop terrace. The Hub’s recessed ground floor establishes a striking north-south axis on the site that links to the lake in the north and to an orchard in the south.



Brainergy Hub uses a hybrid structure of timber and reinforced concrete demonstrating the potential of natural, low-carbon construction materials. Wooden columns and beams are intentionally left visible. Together with the interior wood paneling, they create a warm, natural atmosphere. At the same time, the interior design leaves its distinct mark using bold colors and large-scale typography.
The hub is connected to the low-ex network, a local district heating system that supplies the entire business park. Photovoltaic panels installed on the roof and façade generate energy – any surplus produced is stored in an on-site energy storage system for later use. Throughout the design and planning process, the carbon footprint of the project was calculated and assessed in respect of both embodied and operational carbon. This data informed design decisions to keep the building’s environmental impact as low as possible.


As an innovation center and incubator for renewable energy research, Brainergy Hub brings together the community from the surrounding science park, start-up companies, external experts, and visitors. The circular new build provides spaces for collaboration, presentation, and communication. Their interior design replicates and develops the architectural concept that embodies the transition to a green future. At the same time, it leaves its distinct mark using bold colors and large-scale typography. Materials and sustainably manufactured products are used sparingly and thoughtfully.
As a place of innovation, Brainergy Hub combines creative work with focused activities. The interior design as such becomes a source of inspiration. Its experimental, stimulating nature is created by the exposed structure of the building, which includes wooden columns, walls, and ceilings, as well as unclad building services complemented by functional metal surfaces and sturdy furniture made of laminated wood and recycled materials. The authentic atmosphere evokes the creative potential of a workshop while inviting active engagement with the spatial elements.

The open ground floor is designed as a communal space. In the lobby running along the building’s central axis, ideas can be presented and shared in the ‘pitch arena.’ Playfully designed areas instigate informal interaction. In the center of the building, a spiral staircase connects to the upper floors. Four office units are arranged around the staircase. A “living room” welcoming employees from all areas leads to the workspaces, which include an open-plan area, smaller offices, and meeting and workshop facilities. Glass walls provide transparency and connectivity.
The circular shape of the architectural floor plan continues as a leitmotif in the interiors, where it is transferred from the macro to the micro level: from modular furniture made of circular segments, including the expansive seating landscapes in the lobby, to modular tables, and round stools.

The use of wood creates connections throughout the building and instills a warm, natural atmo-sphere. Colors, forms, and finishes complement this effect with a contrasting play between hard and soft materials, round and square shapes, and untreated and painted surfaces. Distinct colors are used at the building’s intersections to create a sense of identity and to provide guidance. While a deep blue shade dominates the lobby and public areas, each of the office units features its own distinct look involving different colors. Furniture, carpets, and wall claddings use color gradations and shades to establish four rich, monochro-matic color worlds.
The dynamic typography designed by Büro Uebele is embedded in the floor as an eye-catching feature. It combines a guidance system with a poetic text layer and emphasizes the vibrant atmosphere of the lobby. The Brainergy Hub’s interior design implements an authentic material appeal while creating a unique building – a sustainable, inspiring place for a community that is shaping the energy transition at this venue.

