Excerpt: Casa Cor de Sal, a residence by Rómulo Neto Arquitetos LDA, features a design characterized by its marine environment. The house is built using ceramics, wood, and aluminum, with white as the dominant color. An interior patio is designed to connect with the southern facade, which allows natural light to flow into all areas, fostering a close connection between the indoor and outdoor spaces.
Project Description
[Text as submitted by architect] The “Salt Color House” is in front of the so-called Mira channel in Costa Nova do Prado. Due to the salinity of its waters and the surrounding vegetation, along with the colors and scents that fill the air, this place evokes memories of the past, recalling the architect’s childhood home where they grew up and lived for many years in an atmosphere shaped by the marine environment.



When idealizing and conceiving the project for this house, the architect faced a significant challenge. The roles of the creative architect and the demanding client were both embodied in one figure. Initially, this duality clouded the clarity and objectivity needed for the design. However, over time, as certain aspects of the project matured, the result, in the architect’s humble opinion, was successfully achieved on both fronts.


But other challenges were imposed. Sharing the same space with another person, the architect’s wife, generated different compulsions and concerns within the framework of each person’s idiosyncrasies, namely, how they wanted to inhabit and live in the house. Thus, sharing the same space implied understanding the other, and forced him to transact with her concepts of aesthetics and functionality and sometimes give up more erudite and less experienced lines of architecture.




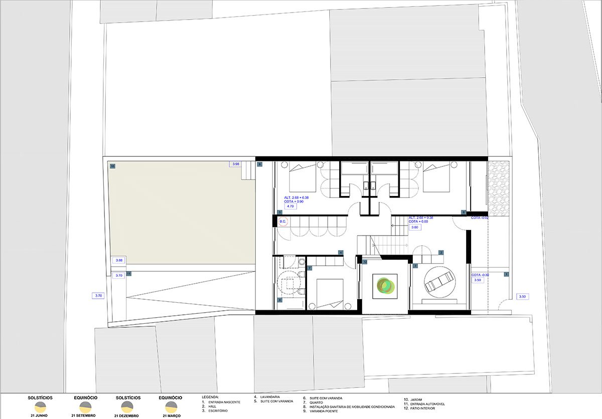
The materials chosen for the construction revolved around ceramics, wood, and aluminum. In the colors, white predominated as the primary element of the entire house, salting it in almost all its corners with baskets of white. It was essential to create an intimate relationship between the interior and the exterior. For this purpose, an interior patio was designed to create a bridge with the south facade of the house and achieve a natural light gambier for all its compartments. Half floors were created, so that the basement floor was not exposed to possible flooding due to the rise in the water table and that vertical dynamics existed between the floors.


The social area was located on the upper floor, an area that was wide and with a very generous ceiling height, looking out over the estuary. Space to receive family and friends on festive days, articulated with the terrace on the roof, the lighthouse of the house, where the users can enjoy more.

