Excerpt: Chapecó, a housing project by OSPA Arquitetura & Urbanismo, is designed to meet the demand for short-term rental apartments. A common-use base offers shared amenities, while the tower features loft units with balconies whose alternating openings add dynamism. White materiality enhances brightness and calmness, and lush vegetation on gardens and balconies brings vibrancy to the façades.
Project Description
[Text as submitted by architect] Located near the Hospital Regional do Oeste in Chapecó, the development was designed to meet the demand for short-term rental apartments.


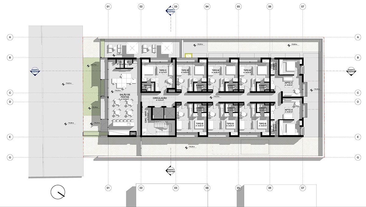
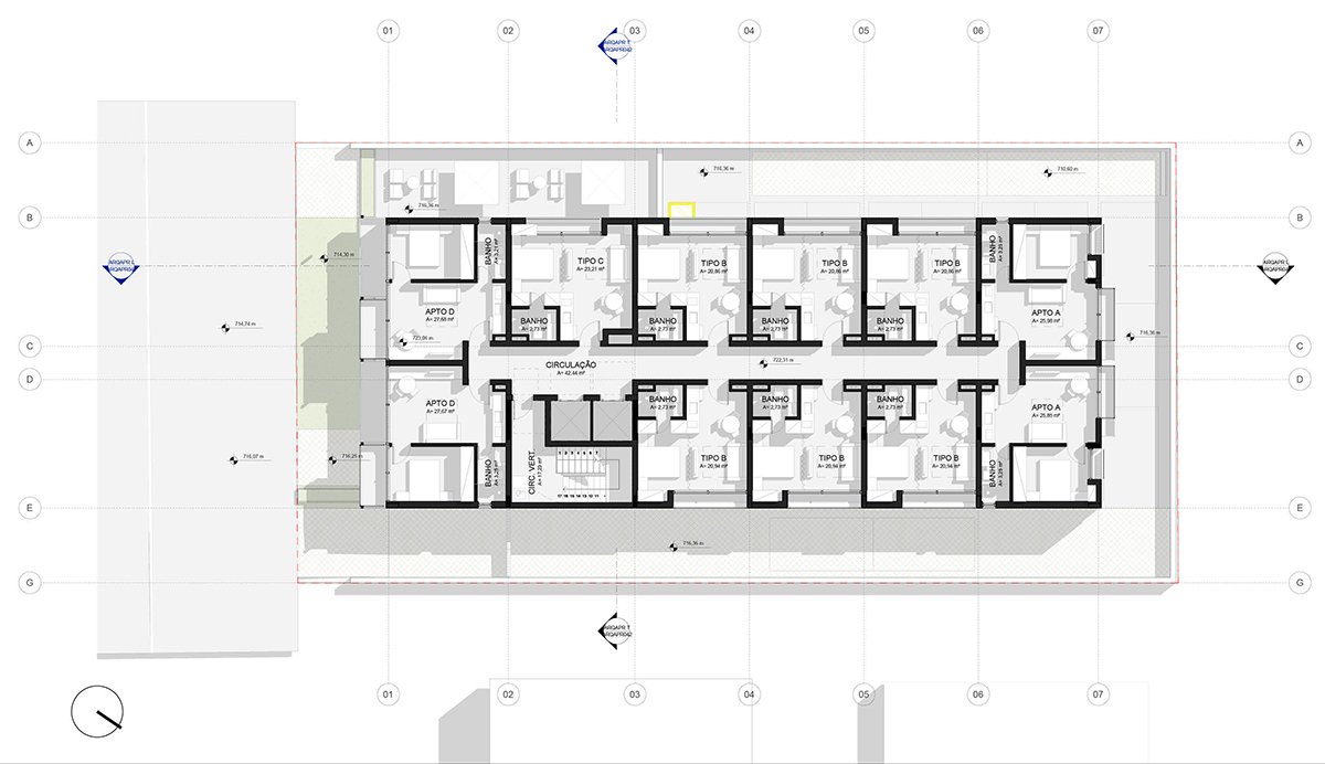
The building is situated on a common-use base, which includes shared services for users such as work areas, vending machines, laundry facilities, a gym, and parking spaces. Within the tower, there are loft units with either enclosed or integrated bedrooms. All apartments feature balconies with alternating openings on different floors, adding dynamism to the regular volume.


On the lateral façades, the balconies create recesses in the overall structure, while on the front façade, they extend beyond the glass plane. The projected slabs align with the frontal property line and are ultimately supported by tension rods that connect to the rooftop, completing the design.

The white materiality aims to enhance ambient brightness and evoke tranquility and calmness—qualities often needed by those visiting or working at the hospital. Additionally, the choice of lush plant species contrasts with the building’s materiality, and the arrangement of vegetation on both the garden and balconies adds vibrancy to the building’s façades.