Excerpt: Club Sportif MAA, an interior design project by Lemay Michaud, seeks to preserve 142 years of history while lending elegance to the building. The designers aimed to create modern, warm spaces that reflected the club’s historical era while maintaining its original mission as a gathering place for its members, in line with the spirit of the clubs that existed at the time of its creation.
Project Description

[Text as submitted by architect] The Club sportif MAA is a Montreal institution that has survived more than a century of change and witnessed the evolution of the city and its people. Founded in 1881 and established in this location since 1905, it is a Golden Square Mile symbol of social and physical well-being. In order to preserve the building and continue to offer services to its members, the establishment teamed up with a developer to bring the Club into the 21st century by the addition of a high-rise tower to welcome new residents to the neighborhood.



LemayMichaud was entrusted with the design and construction of the tower, as well as with the interior design of the new sports club installations, located on the lower floors. The challenge of this project was to preserve 142 years of history while lending elegance to the building. The team was inspired by the era in which the original building was constructed, paying homage to the Club’s history. The idea was to create warm, state-of-the-art spaces, while preserving the original mission of the Club as a gathering place for its members, in the spirit of the clubs that existed at the time of its creation.

As such, the double-height lobby, the highlight of the entrance design, takes its inspiration from the original building and places at its center an architectural staircase extending over two levels, marking a meeting point for members. The marble floor recalls the nobility of the materials found in the old building, and echoes the marble of the original 1905 staircase.


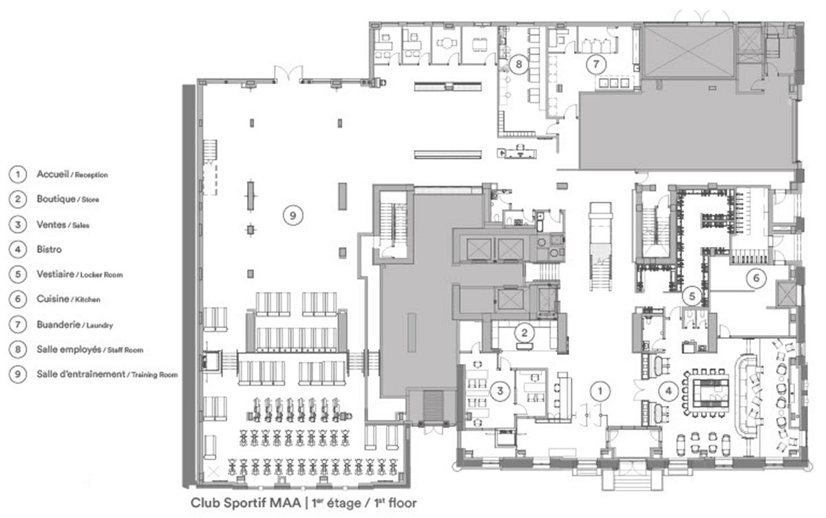
The bistro, which needed to be an independent space, is located on the first floor and features a custom-molded stone fireplace as its focal point, echoing the reception wall opposite. The restaurant is reinvented in a modern, warm and airy environment.
Separating the bistro from the entrance, display cases showcase trophies, a legacy of the club, and separate the two spaces. In keeping with the desire to integrate the club’s history into the new surroundings, the walls feature graphic murals composed of archival photos.




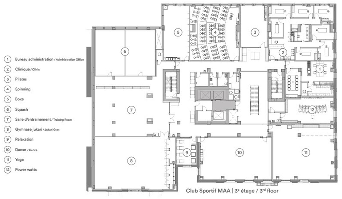
The main gym is spread over two floors, offering patrons an airy, light-filled environment. Seven studios, each with a distinct identity and signature, have been integrated into the new installations. These include a Pilates studio, spinning rooms, two Squash courts, a Jukari studio, a CrossFit room and more.
In addition to the training spaces, members have access to physiotherapy and massage therapy services, offered in a clinic with a streamlined design conducive to relaxation, in addition to a semi-Olympic pool, Finnish saunas and hammams. The new spaces have been designed to offer a complete, integrated, state-of-the-art training experience.

