Excerpt: CP Apartment Renovation, a home interiors project by David Olmos Arquitectos, aims to connect different spaces without creating a disproportionate or dull space. Curved furniture acts as a regulator of spaces in a seamless and fluid manner. The mink grey colour unifies the entire space, while the white colour of the walls dominates in contrast to the wooden shelves that open on both sides.
Project Description

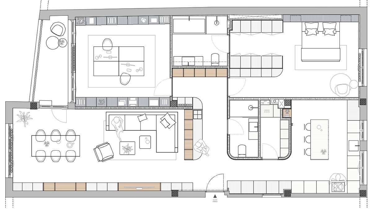
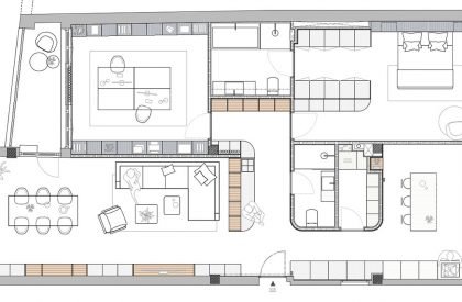
[Text as submitted by architect] In the Asturian town of Avilés the designers were commissioned to refurbish a 120m2 flat in a residential building of a certain size, very close to the historic centre. The flat has a horizontal proportion that goes from the main façade to the courtyard façade.



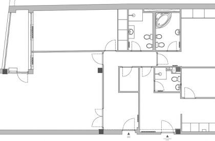
The rooms facing the main façade, facing south, open onto the living room and a large bedroom preceded by a covered terrace. The kitchen, a small dining room, a service room and the master bedroom were located towards the courtyard, with a service entrance. These two areas do not communicate directly. Between the two areas is the main entrance, toilets and bathrooms.


The owners proposed a post-pandemic programme, where they wanted there to be a good work area inside the house, independent, with good light and quiet; a bedroom with dressing room and private bathroom and a kitchen with plenty of storage and an informal dining area, all visually linked to the living room and games table.

In this intervention the aim is for the union between the different spaces to be as connected as possible but without falling into a disproportionate and dull space, which is why the use of curved furniture acts as a regulator of the spaces in a smooth and fluid way.



As the designers do on other occasions, all the furniture is preceded by a false upper beam that will serve as an element for the passage of installations without having to reduce the heights of the living spaces. Finally, the white colour of the walls predominates in contrast with the wooden shelves that are sometimes open on both sides and the mink grey colour that unifies the whole.