Excerpt: ED. DE USO MISTO by OSPA Arquitetura & Urbanismo fragments the conventional block into ten smaller volumes, rotated and adapted to the topography to minimize impact and create the feel of a mountain village. Interconnected by central circulation, the volumes house stacked residential units with varied typologies, including duplexes and flexible suites. Brick cladding in two tones reinforces identity, while a plaza and commercial space enhance urban life.
Project Description

[Text as submitted by architect] Located in Canela’s downtown, in Serra Gaúcha, the site is close to important tourist attractions and city focal points. The building seeks to establish an open relationship with its surroundings: its construction does not shy away from contemporaneity, and its identity transcribes the local’s shape grammar using a new language.
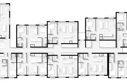
Based on the study of existing volumes in the region and the requirements of the Master Plan, the chosen geometry utilizes roof slopes and segmentation of housing modules to minimize its impact on the urban environment.


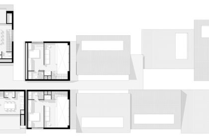
The conventional block is fragmented into ten smaller volumes, interconnected by a central circulation. To avoid disturbing the native vegetation, these volumes are rotated and adapted to the topography, breaking the compositional monotony and creating an ambiance reminiscent of a mountain village. Each volume houses a stack of apartments.
These design gestures create space for a plaza on the side of the site, serving as an extension of the pedestrian walkway and marking the entrance to the building. A staircase with benches leads to the communal area on the upper level, where a small spa overlooks the city’s cathedral.


On the ground floor, a commercial space interfaces with the street and opens laterally to the plaza, enhancing urban life and inviting pedestrians to linger in the shade of Araucaria trees.
The unit typologies vary according to their arrangement, catering to diverse audiences. Most units include a suite with independent access, allowing it to function as a separate rental unit. To optimize the use of under-roof spaces, the top-floor apartments in each stack are designed as duplexes.

The materiality reinforces the local identity: brick clads the walls and roofs of the building, acting like a protective shell. The use of two alternating tones further enhances the interplay of volumes.

