Excerpt: Gateway Theatre by ONG&ONG is an architecture project that breaks away from the traditional procession of formal and informal spaces and emphasises the composition of spatial relationships between the performance and community spaces. Every floor was made unique and non-repetitive, each individually encoded to provide experiences that encouraged interest and participation.
Project Description


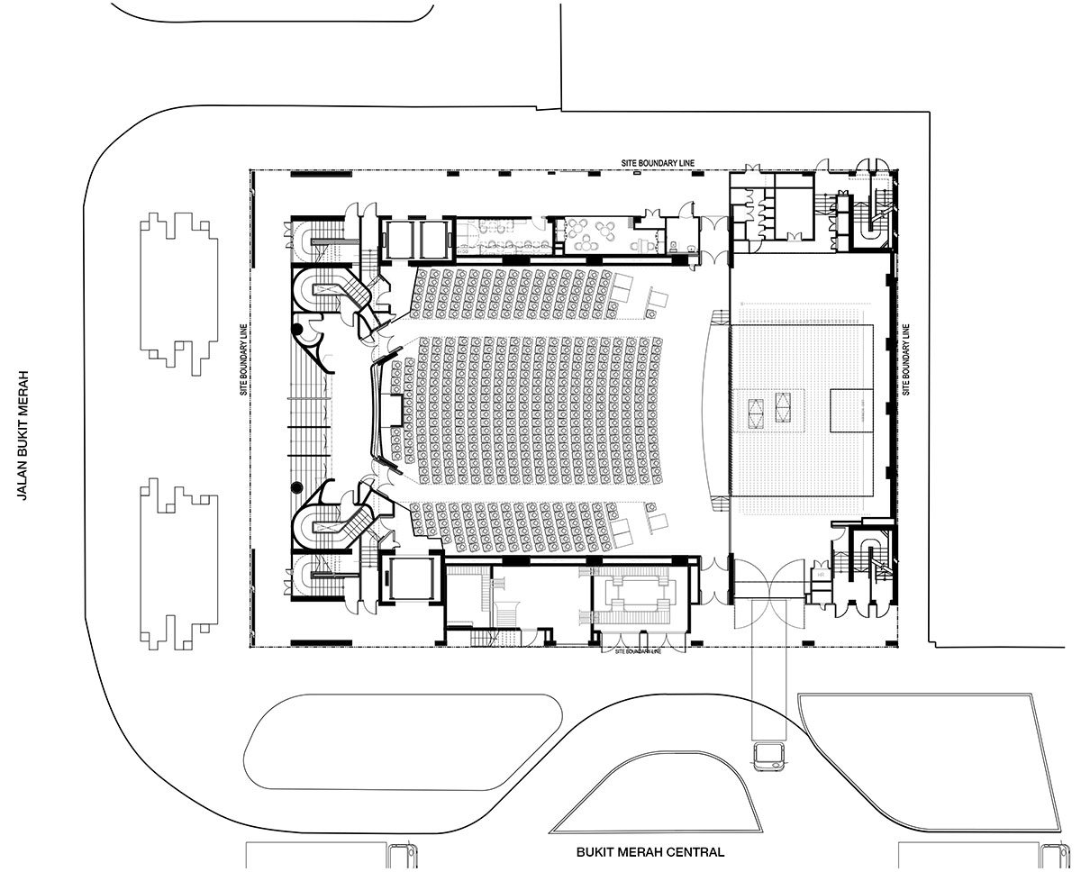
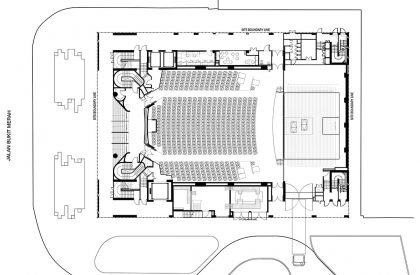
[Text as submitted by architect] Nested in the heart of Bukit Merah, Gateway Theatre is a multi-performance venue where user’ experience and social participation are priorities. The front façade of the theatre opens up to the streets of Bukit Merah allowing passers-by and residents to peer into the building, giving it a sense of porosity and openness.




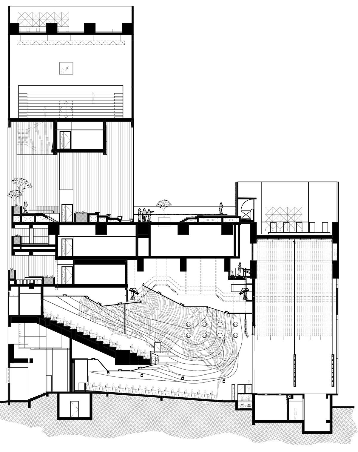
As the building houses several performance spaces, crowd and traffic control were both important considerations. Breaking away from the traditional procession of formal and informal spaces, emphasis for Gateway Theatre was placed on the composition of spatial relationships between the performance and community spaces. Every floor was made unique and non-repetitive, each individually encoded to provide experiences that encouraged interest and participation.



Pockets of interwoven landscaped sky gardens that cascade down to the ground level help to mitigate the large scale of the block. Gateway Theatre also features a garden on the sixth floor, where greenery further melds and integrates the building with the surrounding urban scape. Composed of varying planes, it is an extension of the performance arena and can house several performances simultaneously. Functionally, the landscaped sections act as seamless ‘breakout’ spaces, catering for moments of community interaction.