Excerpt: Gather House, designed by Story Architecture, has roof windows and a façade, having a pyramidal design to match the shape of the nearby church, creating a harmonious whole on the exterior. The roof space in the middle of the house is made of concrete slats combined with a glass roof to help bring in natural light and with the spirit of a Catholic family.
Project Description
[Text as submitted by architect] The way of communication, direct interaction between children, children and parents, the interaction is often connected, helping to build a solid emotional ecosystem for the extended family is the inspiration for the design of this project.


The Gather House project is a house in Trang Bom town, Dong Nai district, Vietnam. Total residents include parents and 3 children. The family is Catholic and the house is close to a catholic church.


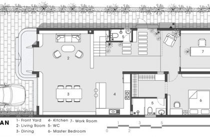
The ground floor in front is a car park with a roof made of lamellar to have ventilation and not to block the view of the interior spaces. Inside includes living room, kitchen, dining room, parents’ bedroom and office.


Up to the 2nd floor is the space for the children, including 3 bedrooms, these bedrooms face the lobby and common corridor, an area where the children can interact and connect regularly. The stair landing space is designed to be large to combine as a reading area, the wide corridor also incorporates a bar to relax together. And from the lobby, corridor, and stairs of the 2nd and 3rd floors, you can observe and connect the kitchen and living room areas thanks to the atrium. so that the children can watch the mother cook, and feel the taste of the food.


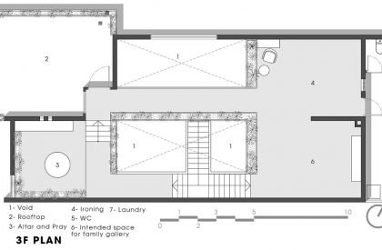
The front 3rd-floor area is a family prayer retreat area with a window overlooking the church and a terrace for trees and relaxation. Behind is the space planned to be developed as a gallery for family memorabilia, and a space for drying.


The roof space in the middle of the house is made of concrete slats combined with a glass roof to help bring in natural light, and with the spirit of a Catholic family When God created this world, created light. Therefore, natural light is very important, cutting many doorways in different positions combined with the glass roof in the middle of the house creates many alternating light rays on the wall to make the space interesting.

The roof windows and façade have a pyramidal design to match the shape of the nearby church, creating a harmonious whole on the exterior. In contrast, the interior is designed to be simple and straightforward. Using natural light as the highlight, the light will change every hour so we don’t get bored.

