Excerpt: HN08 House by TNT Architecture reinterprets traditional Vietnamese values through a contemporary architectural language, where design becomes a bridge between people and nature. Conceived as a calm retreat within dense, fast-paced Hanoi, the house opens to greenery, light, and air. Layered spaces and a central “lung” foster family connection, as architecture and landscape merge seamlessly across interconnected spaces.
Project Description
[Text as submitted by architect] HN08 House reinterprets traditional Vietnamese values through a contemporary architectural language—where design becomes a bridge between people and nature, fostering family connection amid the dense, fast-paced urban fabric of Hanoi.

In a city where green spaces are increasingly overtaken by concrete and dust, the clients—wishing for their children to grow up closer to nature—envisioned a humble yet meaningful home. HN08 House emerges as a calm retreat that opens itself generously to greenery, light, and air, while still accommodating the needs of a three-generation family.



Traditional spatial qualities are reimagined through a multilayered composition of verandas, courtyards, and voids that expand and interconnect spaces. These transitional layers—from exterior to interior, from ground to upper floors—create a fluid continuum where architecture and landscape merge seamlessly. At the heart of the house, a vertical core functions as a “lung,” drawing light and wind deep inside while visually and spatially connecting all levels.


The most distinctive feature of HN08 House is its elevated front garden—a green volume that slopes gently toward the playground below, forming a solid gateway that buffers the home from the surrounding noise and visual clutter. This garden not only serves as a threshold but also as the “heart” of the house, offering a tranquil space where family members can retreat, unwind, and reconnect with nature.



The first floor hosts the playground adjacent to the sloping garden and a timber veranda recalling the spirit of traditional Vietnamese living—an open, shared zone for children to play and for family activities. The second floor contains a tea and reception area directly connected to the garden and central void, allowing abundant daylight and ventilation while maintaining privacy through operable double-glazed panels.



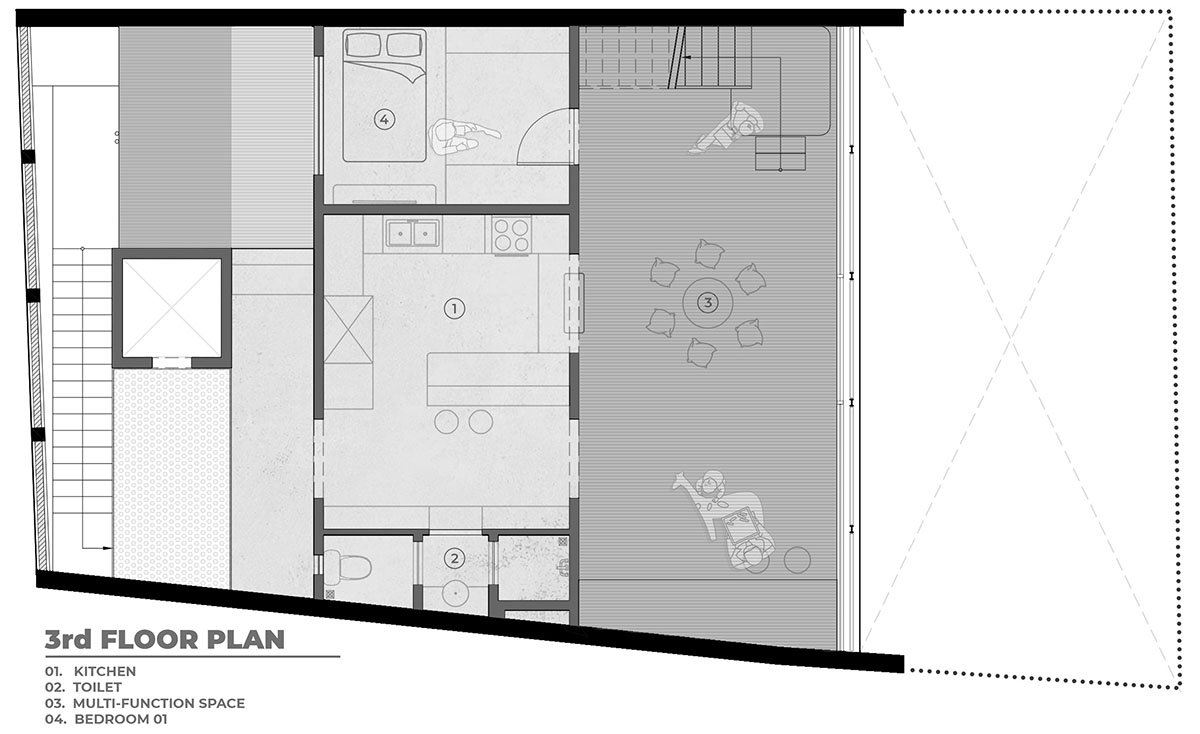
The third and fourth floors accommodate the main living functions, including the family lounge, kitchen, bedrooms, and shared bathrooms. These are arranged around the atrium to promote connection and visual continuity between levels. The façade employs a dual-layer system of glass and automated louvers that regulate sunlight, heat, and natural airflow.


The master suite on the fifth floor takes advantage of both the front façade and the central void, creating a quiet, comfortable retreat for the owners. The sixth floor is conceived as an open communal zone with an outdoor wooden deck and a large swimming pool surrounded by greenery for privacy, complemented by a smaller wading pool for children.

The seventh floor is dedicated to the family’s worship space, positioned prominently at the front with operable wooden screens and glass doors—balancing solemnity with harmony in the overall architectural expression. Above, the rooftop accommodates technical functions alongside a small vegetable garden. This elevated level opens wide views of the surrounding city and provides a peaceful, nature-filled escape for the family.

Through the integration of greenery, light, and ventilation within a layered spatial structure, HN08 House expresses the balance between modern urban living and local cultural spirit—offering a serene, nature-connected dwelling in the heart of the city.

