Excerpt: Home Spirit by TAA (Taillandier Architectes Associés) proposes a new form of collective housing that responds to urban densification while reinterpreting the single-family home. A clear contrast between a unifying built base and softened upper volumes is shaped by terraces and balconies, forming a highly greened facade. Landscape design and open-air circulation reinforce the dialogue between indoor and outdoor living, creating privacy, social interaction, and a strong residential identity.
Project Description

[Text as submitted by architect] The site for this project is located in the southeast of Toulouse, in the Montaudran district. This area is currently undergoing significant urban transformation, characterized by rapid densification driven both by Urban Development Zone projects and by more dispersed real estate developments. The parcel lies within the TOULOUSE AEROSPACE ZAC and uniquely borders the Piste des Géants to the south. In the near future, the arrival of the third metro line will provide direct access to the site, with a station planned nearby, close to the existing railway stop, forming a multimodal transportation hub.



The building’s volumetry establishes a clear contrast between its base and the upper floors. The base, with its orthogonal geometry, and the upper levels, featuring rounded lines that soften the architectural expression, give the structure a distinct identity. This identity is further enhanced by a system of terraces and balconies, which generate a dynamic, highly greened facade. The enhancement of outdoor spaces is a key element in the project’s overall urban, architectural, and landscape design.



Landscape design plays a fundamental role in the project, creating a genuine dialogue between indoor and outdoor green spaces. It accompanies residents throughout their experience and contributes to the quality of communal areas. The planted terraces play an essential role, ranging in size from 40 m2 for T5 units to 16 m2 for T2 units. These terraces are designed as real additional living spaces—true rooftop gardens that extend the surrounding natural environment.



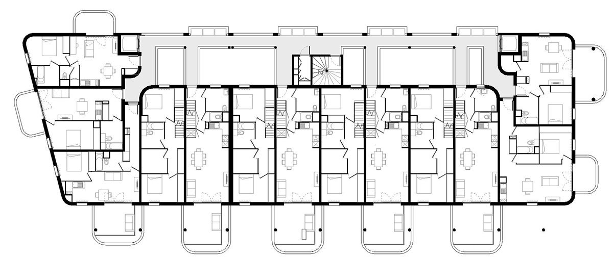
The built base, a unifying feature of the Toulouse Aerospace ZAC, extends to level R+2 in this project. Alternately transparent and active, it anchors the building in its immediate context while connecting it to neighboring structures, pedestrian pathways, and cycling lanes. The base incorporates shared spaces that will play a key role in the social life of both the residence and the neighborhood: a 60m2 fitness room, a 51 m2 children’s playroom, and a 120 m2 communal living space.
The upper-level apartments are accessed via an open-air walkway, a high-quality space where vegetation flourishes thanks to integrated planters and climbing plants on the north facade. The generous spatial quality, abundant natural light, and landscape design transform these passageways into genuine spaces for social interaction among residents.


The alternating layout of souplex and duplex apartments stacked within the main body of the building allowed us to reinterpret the single-family home archetype within a collective housing context. Each resident accesses their apartment via a private walkway from the circulation volume much like entering a private house from the street. This same souplex/duplex configuration provides the balconies and terraces with enhanced privacy, comparable to a garden in a detached home, and the sizes of these outdoor spaces are truly exceptional.

For the rooftop villas, the reference to detached housing becomes even more literal: residents can walk around their entire home, just as they would in a house surrounded by a garden. The project’s concept ensures that all apartments benefit from at least dual orientation, with most being cross ventilated. The building’s silhouette is clearly articulated by the interplay of terraces and balconies above the base, and by the rhythm of the duplex rooftop villas crowning the top.

