Project Description
[Text as submitted by the Architects] This house is structured on four pillars with a direct foundation on the rock bed at a depth of 1.5 meters. A pair of beams, inverted over the ceiling, structures the roof slab and tosses the floor slab, without beams.
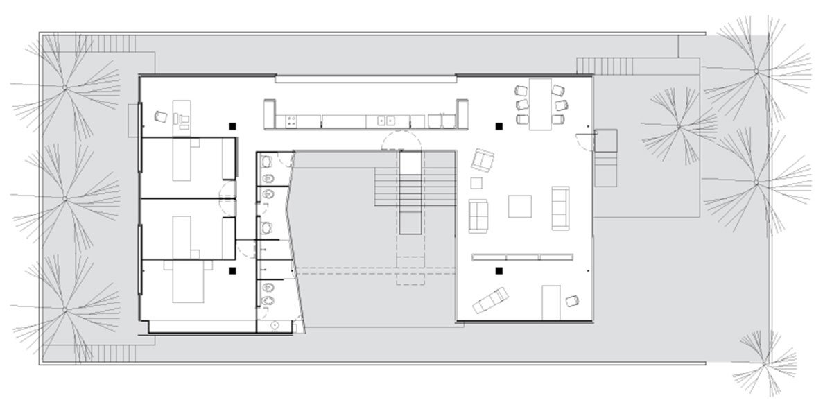
The natural profile of the land had been out of character. The pretext of this is that it was decided to move the volume of land on the plot to organize three garden levels in different levels, as if they were three stones, and a walk between them at street level.






The street garden (level 2.00) extends the raised room incorporating the front recoil, normally lost behind a wall. The garden of the bedrooms (level 1.80) shadows the north face and offers a more sheltered external area as an extension of the rest areas. The courtyard garden (level 1.20), at half level, makes the smooth passage between the two floors and enjoys the small vertical distances achieved by the structural solution.





