Excerpt: House in Tamatsukuri, designed by Reiichi Ikeda Design, is a renovation project of a 3-story steel frame single-family house in Tamatsukuri, Osaka. As it is on a corner plot facing northeast, we focused on external insulation to reduce room temperature fluctuations by adding layers of urethane to the external wall. Furthermore, the vertical structure of the building that is composed of 3 levels+rooftop allows the “layers” to naturally “partition” and “connect” the living spaces at the same time on a compact plot of land, essentially separating different life activities by vertical movement.
Project Description
[Text as submitted by architect] Renovation project of a 3-story steel frame single-family house in Tamatsukuri, Osaka. Situated in a convenient and relaxing location in the city, it is connected to a wide road and has sufficient amounts of natural light. While the renovations came with architectural limitations, we explored methods only achievable through renovation to reach the goals of the project.



While the building is 15 years old and is relatively new, it was not what we would call an insulated house. As it is on a corner plot facing northeast, we focused on external insulation to reduce room temperature fluctuations by adding layers of urethane to the external wall. Additionally, as the existing number of window sashes was excessive, we blocked off some and installed a new large double-glazing fixed window for more effective insulation and to allow warm light from the north side into the building.



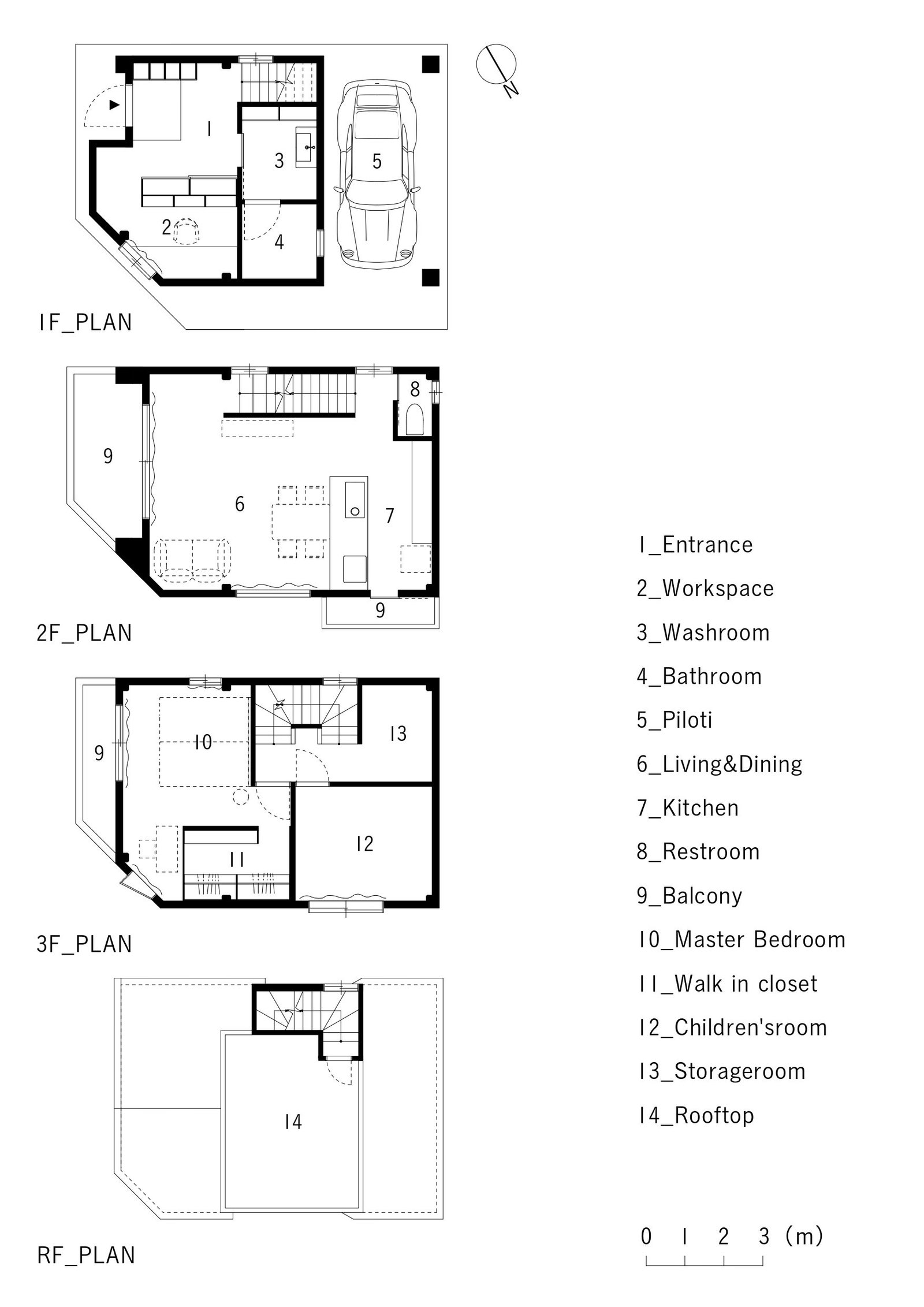
The 1st floor consists of the entrance and a home office while the 2nd floor constitutes the core area consisting of the living room/dining room/kitchen that has exposed ceiling joints constructed using deck sheets and earthen floors connected to the outside, which maintains harmony between the connected spaces.
Furthermore, the vertical structure of the building that is composed of 3 levels+rooftop allows the “layers” to naturally “partition” and “connect” the living spaces at the same time on a compact plot of land, essentially separating different life activities by vertical movement. In addition, the private area on the 3rd floor is carpeted, creating a sense of comfort when stepped in. Begin your new “layered” style of living, made possible due to urban residence where vertical mobility has become a necessity.


