Excerpt:‘House With Two Courts’ by Shuonya Nava Designs is a minimalistic, interactive residence that embodies the lush greenery of rural Karnataka. The house, designed with courts and multiple openings, maximizes air flow and indoor light filtering. The ground floor features a double-heighted courtyard, with bedrooms, kitchens, and dining areas centered around the courtyard. A projected seating area with a skylight and window allows diffused light.
Project Description

[Text as submitted by architect] The site is located in a quiet residential area close to Manyata Tech Park in Bangalore and is 250 m away from Rachenahalli Lake. The house sits on a corner site and abuts the main road on the South side which has two guest houses. Towards East, it opens out to a secondary road with residences.


The client’s requirement was fairly simple. They wanted a minimalistic, budget friendly house easy to maintain as they were an elderly couple whose kids have settled abroad. The designers focused on the fact that they are retired teachers and would be spending most of their time at home. Having spent most of their working years as teachers in the rural areas of Karnataka which were rich in greenery, they wanted a house which would reflect the same essence and would also be interactive.



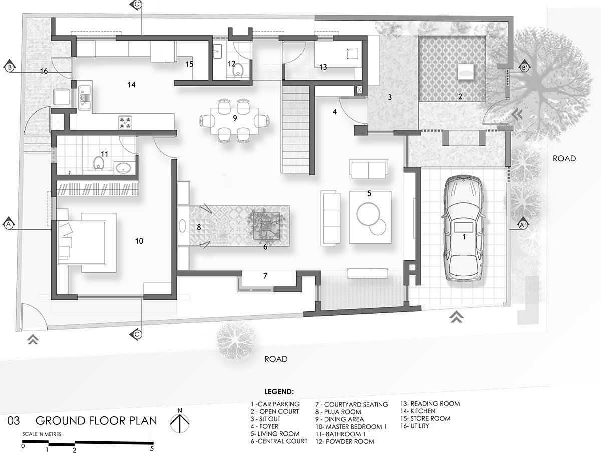
The designers started conceptualising the design with two courtyards- one in the front near the road and the other one inside. Planning was done with relevance to a huge peepal tree which is along the edge of the site towards east and they wanted to keep it untouched. The two storey house is approached by car parking space on the south side and by another framed pedestrian entrance on the east.
The open courtyard is combined with a shaded sit-out in front of the main door and is mainly for the visitors and opens out to the quiet street towards east enabling the residents to interact with the neighbours, while the courtyard inside is more private and is for the inhabitants of the house.


This is a translation of the ‘katte’ concept which is a point of community interaction and the courtyard inside the house in front of the puja room is for interaction within. A Plumeria tree is planted in the centre of the granite seating which adds an element of greenery.


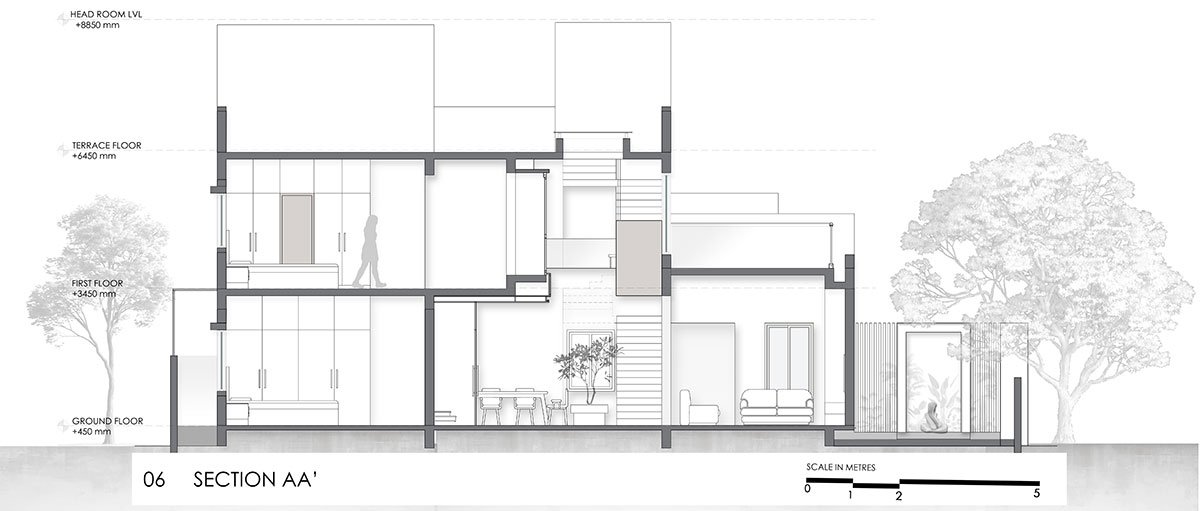
Along with the courts, the house is designed to enable interaction between the floors. It has a lot of openings to maximize the air flow and to let light filter into the indoors throughout the day. The ground floor has a living area opening into the courtyard which is double heighted. The bedroom, kitchen and dining areas on the ground floor are designed around the courtyard. Projected seating area with window and skylight covered with glass on top allows diffused light.
The skylight has been raised by a foot over the slab and the sides are covered with mesh panels which draw out hot air and control the microclimate. It basically facilitates stack effect and helps control the temperature inside the dwelling during the hot summer months.



The folded metal staircase is cladded with wood. The visual lightness of the stairs amplifies the openness of space in the central volume. It leads you to the first floor which has two bedrooms and an open terrace. Ample light and air in the house, the grey colour flooring and wood finishes add warmth to the interiors. Overlooking this courtyard is a projection from the master bedroom on the first floor. It is finished with wood and glass creating an element of interest. The wooden louvered window provides visual connectivity with other areas, ensures privacy of the users while also providing the space with unhindered natural light and ventilation.

The façade is rather simple with a combination of louvers and projections. The colour scheme used is plain whites with hints of pale blue. The surface of walls projected from the living area on two sides is highlighted in brown and has subtle grooves which adds to the character. The louvers draw your eyes upward creating a lengthening effect of the south elevation. They are also used for compound enclosure and the gates – continuing the same language throughout and simultaneously safeguarding privacy of the inhabitants.