Excerpt: KAVYAM Bathery, a residence by Bosky Studios, creates a harmonious living space that blends nature with architecture. Centered around a green courtyard, the design emphasizes seamless indoor-outdoor flow, natural light, and ventilation. Organized as a series of pavilions within a lush landscape, the home offers a tranquil, sustainable retreat that balances openness, privacy, and connection to the environment.
Project Description

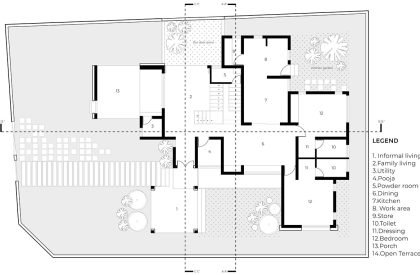
[Text as submitted by architect] The concept centers on crafting a home that seamlessly blends aesthetic appeal with practicality, creating a sanctuary for its inhabitants. Central to this vision is a lush green courtyard, which acts as the heart of the home, offering a serene and refreshing focal point. This verdant space, coupled with seamless indoor-outdoor living areas, fosters a harmonious connection between nature and the interior, inviting natural light and fresh air into the home.




Key architectural elements include perforated walls, which not only enhance the visual interest of the structure but also facilitate ventilation and the play of light and shadow, contributing to a tranquil and balanced atmosphere. Large openings throughout the home maximize views of the surrounding landscape, creating an expansive and interconnected living experience. These openings are strategically placed to frame picturesque scenes of the greenery outside, allowing the natural beauty to become an integral part of the interior decor.



Designed as a timeless dwelling, the home takes into account climatic, social, and contextual factors to ensure comfort and sustainability. The house is envisioned as a series of pavilions, each serving different aspects of daily life, nestled within a beautiful landscape. These pavilions are thoughtfully arranged to offer privacy and intimacy while maintaining a sense of openness and connectivity.


Each pavilion is oriented to capture a unique natural image, creating a dynamic and immersive living environment. The interplay of indoor and outdoor spaces, the strategic use of natural materials, and the incorporation of sustainable design principles all work together to create a home that is not only visually stunning but also deeply attuned to the well-being of its inhabitants. This design philosophy ensures a harmonious balance between nature and architecture, providing a tranquil retreat that is both elegant and functional.

