Excerpt: Leit House by S^A | Schwartz and Architecture references the resiliency of the site’s blackened rocks and the tradition of the Shou Sugi Ban, a practical strategy for fire protection. The design aims to create a sustainable, non-invasive residence that is adapted to the fragile landscape of fire-threatened areas. Beyond the code, it integrates sustainability measures with the goal of being resilient yet lightweight.
Project Description

[Text as submitted by architect] Millions of years ago, the volcanoes of Sonoma Valley spewed hot magma across the landscape. As the lava quickly cooled, the eruption’s gases became trapped, forming porous cavities instead of crystallizing into dense stone. These blackened rocks —rhyolite, basalt, andesite, and pumice—still dot the landscape today, surprising in their lightness despite all appearances.

The structure sits as another “dot” in the open landscape, and references the resiliency of the blackened rocks, using inherently fire-resistant materials, cementitious stucco, standing seam metal, and blackened cedar siding in the tradition of the Shou Sugi Ban. The latter is both a conceptual nod to the process of volcanic rock formation and a practical strategy for fire protection.



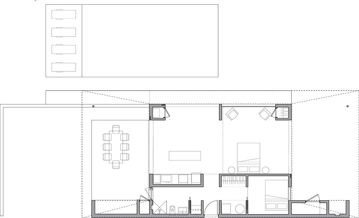
Within the diagram of a dense storage ‘spine’ anchoring an open living area towards the valley, we studied many possibilities for the size and function of the home. In the end, to meet budget goals, we reduced our permitted scheme by one third, simply removing a bay from the expandable diagram. The final version of the 816 SF plan maintained the essence of the diagram, but in a much-stripped down way.
The ‘guest house’ will in fact be a main house for the foreseeable future. Although the site is 40 acres, the clients see the long game in slowly developing the property. For now, this tiny structure serves all their weekend needs with their twin children.



Despite, or perhaps because of, the project’s small scale and basic functions, every detail counts. Here, the uncanny feeling of lightness in the dark massive roof is the critical leitmotif for the project. We treated the structure as a sculptural object reminiscent of the volcanic rocks strewn across the valley landscape.
The project proposes a lasting, non-invasive relationship of the house to this increasingly fire-threatened landscape –an architecture that treads lightly but with resilience on this fragile land. Beyond the code required measures of sustainability, this project embraces these goals at an even more fundamental level.


Most critically, this is a fully functional home for a small family with an 816 SF footprint on a 40-acre site; certainly, a prime measure of sustainable building is building as little as possible. One of the clients works in this field and consistently monitored the design and construction relative to these goals. Each material was selected for its low-environmental impact —whether bathroom tile and species of wood, or building systems, including solar power and an off-grid well and septic system.