Excerpt: In Lipno Lakeside Cabin designed by Les Archinautes the morphology of the house stands on several principles of Bohemian Forest architecture: rectangular floor plan, compact shape, orientation along the contour line, creation of a covered porch, and more pronounced articulation of the gable (overhang).
Project Description

[Text as submitted by architect] The building is located in the heart of the Bohemian Forest with a view of Lipno lake. This cabin was built in a place where an old wooden cabin used to be. It is designed to provide the perfect base for nearby mountain sports in all conditions.


The design follows the urbanism of the buildings in its neighborhood and respects the height conditions in the area. The land is screened by forest from the regional railway line, which passes through the territory to the northeast. A narrower part of the Lipno lake opens to the southeast behind the track, there lies the mouth of the Vltava River.


The morphology of the house stands on several principles of Bohemian Forest architecture: rectangular floor plan, compact shape, orientation along the contour line, creation of a covered porch, and more pronounced articulation of the gable (overhang). The building is a single-story with an attic. The height alignment of the eaves plane with the lintel of the windows and doors on one horizontal line is a contemporary interpretation of the cornice.



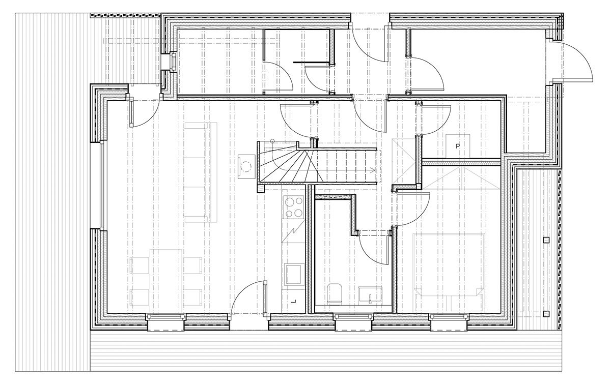
The view of Lipno lake, with two major peaks in the background, becomes the main point of the project. The living space of the house is centered around the dominant gabled square window facing toward the lake. The other windows have a direct view of the forest. The forest is present in the interior as a material, smell, and color. One small room, a bathroom, a laundry room, a small sauna, and a room for storing sports and technical equipment are located on the ground floor. The attic hides a bathroom, a pantry and two bedrooms with a circular window in the gable, framing other peaks in the area.


Three sides of the house are lined by a wooden terrace, which, depending on its variable width, creates, together with a significant overhang of the roof, a space for various uses (sitting in the sun and in the shade, a sauna rest room, storage of wood and bicycles).


The building is designed as a wooden structure made of CLT panels visible in the interior. The cladding of the facade consists of vertical larch profiles, the windows are complemented by integrated sliding shutters, and the roof is sheet metal. The building was realised by a family company 3AE which worked in close collaboration with the author. Besides the final quality of the building, they also ensured a high level of detailed execution. Shared values, a sense of detail and an appreciation of natural materials make the final result resonate.


