Excerpt: Mova, designed by Opus Arquitectura, is conceived as a meeting place, training, and development for the community of teachers. The strategy of loose volumes supported on piles and connected by bridges, dilutes the limits between the interior and the exterior to enjoy the climate and the landscape while taking advantage of the space of an existing parking lot on which it is built. Due to good design and construction practices, the building is LEED certified, gold category.
Project Description
[Text as submitted by Architect] Mova is a platform promoted by the Ministry of Education of Medellín to improve the quality of public education by strengthening the comprehensive training of teachers. The teacher’s innovation center, located in the innovation district, is the headquarters of the MOVA project, which is conceived as a meeting place, training and development of educational experiences for the community of teachers in the city. It is the result of a collaborative transdisciplinary design process that integrated public and private entities and the educational community. The strategy of loose volumes supported on piles and connected by bridges, dilutes the limits between the interior and the exterior to enjoy the climate and the landscape while taking advantage of the space of an existing parking lot on which it is built. The insertion of new vegetation is an indispensable part of the conformation of the space and contributes to the connection of a node of the ecological structure of the city. Due to good design and construction practices, the building is LEED certified, gold category.
Innovation District Engine
Location.
Mova is part of the Medellín Innovation District, a 160-hectare urban transformation space destined for scientific, technological and new knowledge business development. Being located in this environment promotes direct interaction with processes and organizations present in the district such as the University of Antioquia, Parque Explora, Ruta n, Botanical Garden, Parque Norte and other future actions that will be developed to consolidate a technological environment. , pedagogical and cultural.




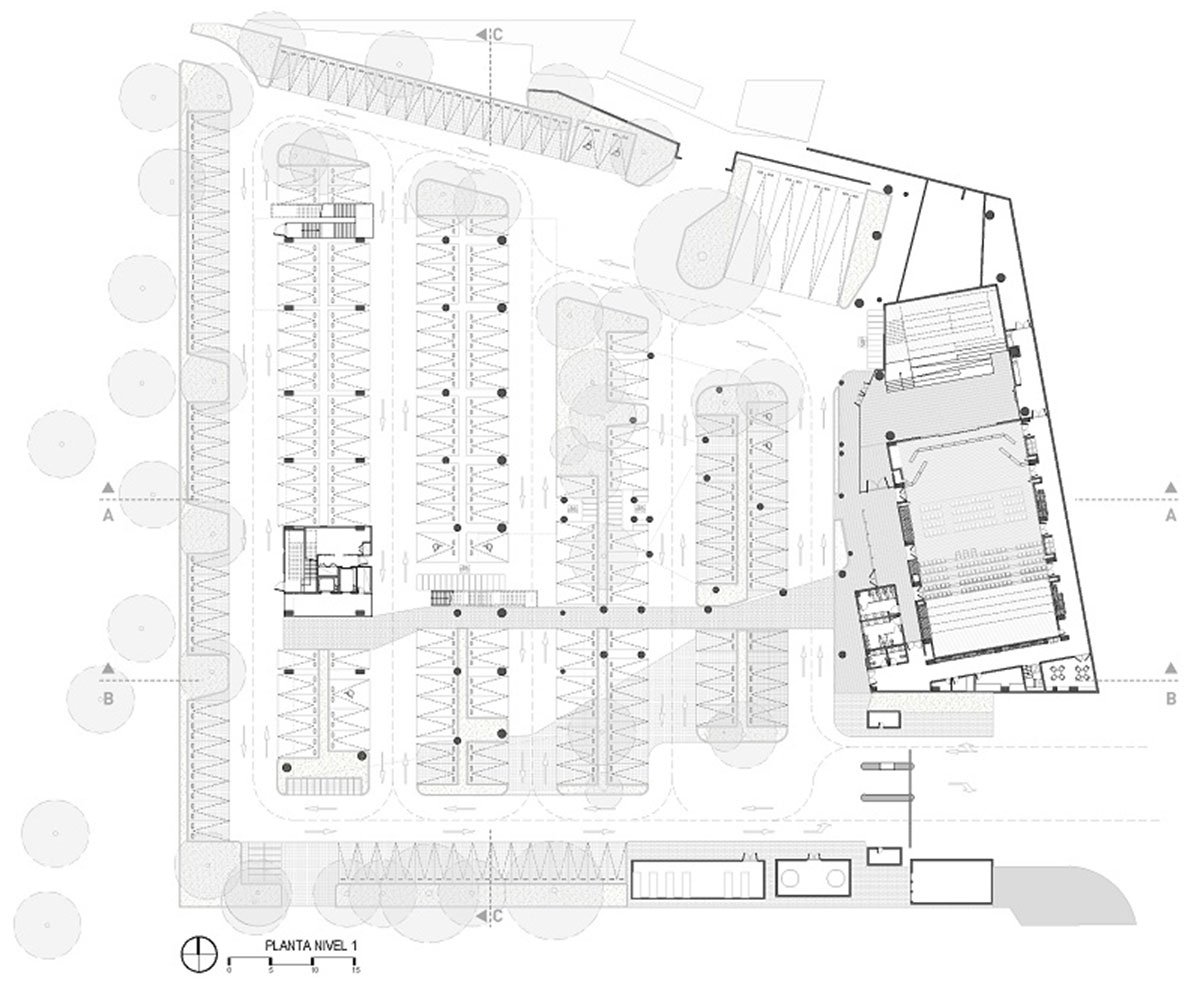
Site
On the existing parking lot that serves a public park, a high-rise building is built on stilts with scattered volumes linked by bridges, thus forming patios and cracks through which trees grow. This scheme, which interprets the spatial logic of the University of Antioquia campus, seeks with its form 5 objectives:
1. Take advantage of a privileged space for the city, previously used only as a parking lot
2. Dynamize the public space by providing the street with new activities, (a café and auditorium.)
3. Frame the landscape of the north park and the slopes of the Aburrá Valley, 4. Dilute the limits between the interior and the exterior through thresholds, lattices, bridges and terraces, 5. Mix architecture and vegetation as components of the same spatial system . A portion of the project is located near the street to activate it and shape its space, the other moves into the park to look at a lake and the mountains.
Meeting place.
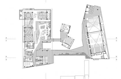
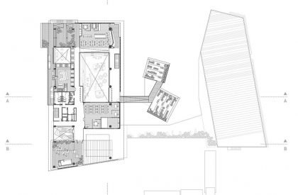
Since many of the best ideas arise in informal spaces, circulation, more than a functional matter, is presented as a connecting fabric. The building is traversed through a succession of spaces that begins on the access terrace and continues on an elevated walkway, which arises from the unevenness of the terrain, and which is an extension of the city’s public space. Bridges, terraces, patios and balconies with furniture, gardens and shade are crossed to promote meetings, conversation and create alternative places for individual and collective work.
In this connecting fabric, the intention to dilute the limits between the interior and the exterior is a constant, whose mediation is defined by vertical lattices in concrete and irregular planes that descend from the roof or change the inclination of the floor to frame the landscape with diverse frames.






