Excerpt: Naman Residence-Villa A by MIA Design Studio is an elegant, luxurious beach house featuring vast amounts of leisure spaces that integrate nature and the sea. The design of the residence is creative, effective, and well-organized, which not only meets maximum privacy needs but also benefits from natural voids and gardens, ensuring a high standard of living while integrating the sea.
Project Description

[Text as submitted by architect] This is a very high-quality project that inspires the architects a lot, requires the most elegant and luxurious design, and can adapt to a high standard of living but still retains the feeling of the beach. The idea is mainly focused on how to maximize privacy for every family but still create vast amounts of pleasure spaces with nature integrating the sea.


To maximize the project’s efficiency, the master-plan is well organized but the way is too narrow with high density. Within this condition, the team’s goal is to make a creative and effective design to not only satisfy maximum privacy but also create extra benefits from natural voids and gardens.



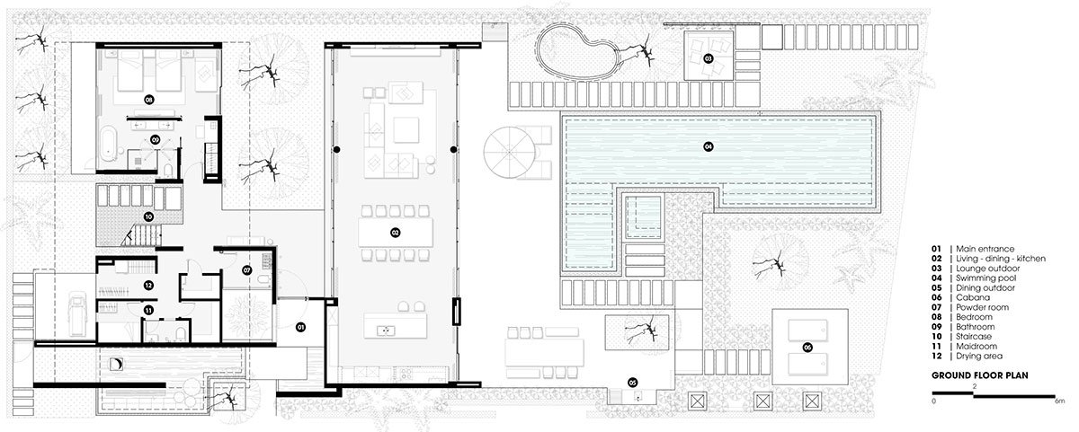
Each villa has a multi-dimensional landscape with overflow pools and tropical gardens. For every villa, the design also takes advantage of space by lifting-twisting the upper block for bedrooms with privacy and open views. The lower block with living-dining-kitchen-bedroom has a direct connection to the pool and landscape. Moreover, the architects put waterscapes onto the rooftop of the lower block in order to cool down the whole building and improve the rooftop landscape aesthetically.


Density is now not a big problem, every villa has its own garden filled up with skylights and surrounding green environment. The design philosophy is how to inside-out the initial using space, outside-in the natural gardens enhancing the luxury-home feeling.

The materials used in constructing the house are local materials to reduce the transportation fee and save the budget of Naman Villa. The design of the house is simple and sleek, so the cost for construction is not so high. The house is constructed with Hurricane protected structure but still retains natural ventilation.

