Excerpt: Nesta, a residential project by Hiraya Studio LLP, is a Vastu-compliant five-story apartment that offers a unique contemporary living experience. Its understated elegance and distinctive chamfered-edge balconies provide residents with a breathtaking view of the city skyline. Nesta offers both common spaces and the comfort of private spaces, ensuring a unique blend of communal living and luxury living.
Project Description

[Text as submitted by architect] Perched on the rugged and undulating landscape of Jubilee Hills, Hyderabad (India), this 4160 sqft plot houses ‘Nesta’, a Vastu-compliant five-story apartment. Crafted by Studio Hiraya, ‘Nesta’ stands out in the neighbourhood with its understated elegance, presenting a unique vision of contemporary apartment living. It offers residents the best of both worlds- the benefits of communal living and the comfort of their own luxurious private spaces. The architectural design of ‘Nesta’ with its distinctive chamfered edge balconies and its commanding position on high ground, providing each resident with a breathtaking view of the city skyline.
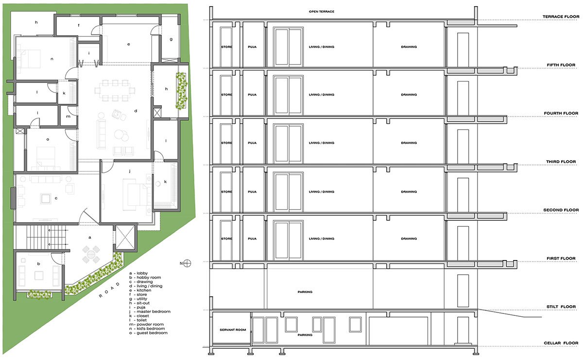
The basement level of the building includes five servant rooms, with one designated for each residence. Additionally, ample parking space is available on both the basement and stilt floor levels, ensuring that all vehicles the residents own can be accommodated conveniently. This design consideration reflects a thoughtful approach to providing both house helpers living and parking solutions for the residents, enhancing the overall functionality and comfort of the building.


Each floor is home to a single 3-bedroom unit, with a private entry on separate levels. The design of the units makes them face outward, with windows and openings strategically placed to maximise the influx of natural light and promote cross-ventilation. The vertical core, featuring a stair tower and an elevator on either side, provides private lobbies on each level for easy access to individual units.
The private lobby on each floor is more than just a passageway. It’s a verandah space with a green strip along the edge, creating a unique sit-out garden for each home on every level. Positioned in a semi-public area, it serves as a social hub, fostering interactions among residents as they traverse the staircase and engage in conversations, promoting communal living. As time goes by, the building will become a green oasis, with more and more greenery sprouting from its surfaces, eventually nullifying the need for screens.

Including a hobby room adjacent to the private lobby allows residents to utilise this area for various activities. Considering the growing trend of working from home, particularly post-pandemic, this space has been incorporated to serve as both a productive environment and a place for relaxation for the residents. Its secluded location within the home provides an opportunity for individuals to disconnect from their surroundings while still being in the comfort of their own home.


Stepping out of the elevator, one is immediately drawn to the grandeur of the traditional rich wooden door adorned with brass elements, typically seen in South Indian ancestral homes, creating a sense of homeliness and keeping it culturally rooted. In front is the private lobby, which doubles as a semi-public space fostering communal living. It seamlessly merges with the house and is defined by a verdant strip along the chamfered edge of the facade.
The main single door opens into a long hallway, creating unhindered visual access to the exquisitely crafted full-height double door made of wooden frame with checkered patterned openings of the pooja room.

As one enters the house, on the left is a spacious drawing room bathed in natural light streaming through two expansive windows adorned with sheer curtains. The room exudes a tranquil ambience, maintaining the privacy required for the residents. The furnishings, tastefully chosen in hues of grey and ochre, exude an aura of understated elegance.
Notably, twin lounge chairs positioned around a wooden round table steal the spotlight, their sleek design punctuating the space with sophistication.

A standout feature unifying the entire residence is the 12-foot high ceilings true to its height and volume without any false ceilings, finished with textured, grey-tinted paint, adding a touch of visual intrigue, creating a voluminous space and elevating the room’s overall appeal. Kota stone flooring is meticulously chosen for its low maintenance, ensuring it withstands the test of time and use. It flows seamlessly through the entire house and creates a pleasing look, complimenting the brown shades of teak wood used for the cabinets and furniture.
The living room has a huge glass sliding door that opens into a private sit-out adorned with customised planter boxes. When the doors are fully open, the space seamlessly transforms into a versatile party area for the residents to enjoy as needed.

A wood-panelled ceiling with straight, clean grooves runs along the axis and parallel to the living area that connects the drawing room to the pooja entrance. Every area of the house is strategically organised into zones, ensuring that each private bedroom connects seamlessly to the central spine of the living, dining, and kitchen areas, serving as the home’s heart. This thoughtful planning not only promotes accessibility and flow throughout the residence but also fosters a sense of togetherness and connectivity among its occupants. By anchoring the living spaces around this central core, the home facilitates interaction and socialisation while accommodating individual privacy within the bedrooms. This zoning arrangement creates a harmonious living environment that effectively brings the entire household together.


The aesthetics of the master bedroom placed right next to the living room are inspired equally by modern and traditional elements, thus retaining the austerity of the home’s interior language. The walk-in closet attached to this bedroom features full-height wardrobes with long teak wood panels and a row of drawers at the base. The washrooms are kept minimal with monochrome hues and sleek black sanitary fixtures, giving it an overall elegant look.
The children’s bedroom is designed along the same lines, with a lavish attached balcony that lets in natural light and promotes cross ventilation through the rest of the house. The attached private walk-in closet is strategically placed to provide privacy and allow for a more secluded dressing area.