Excerpt: One Mu Garden, designed by Atelier LI, emphasizes a garden-residence where the inner atmosphere takes priority over the surrounding environment. The layout reveals that the buildings are arranged along the edges, with gardens placed at the center. These gardens act as peaceful sanctuaries, promoting a connection with nature and nurturing a sense of community among residents.
Project Description

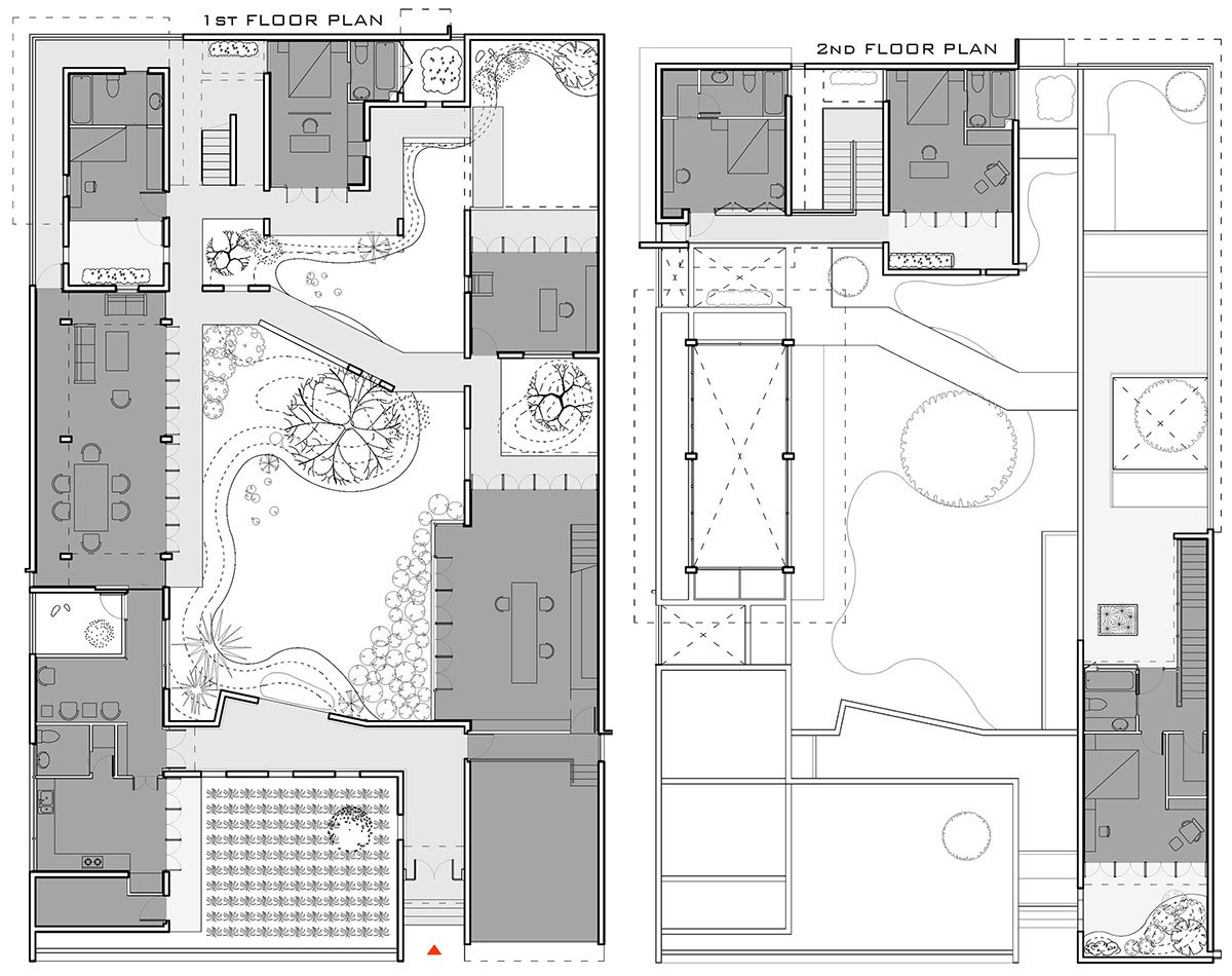
[Text as submitted by architect] In the summer of 2016, the design for One Mu Garden in Suzhou (one mu = 666.67m²) was created. The selected site is introverted, with a focus on creating a garden-residence where the inner atmosphere is much more important than the surrounding environment. The site plan shows that buildings are distributed along the periphery, forming gardens at the center. The entrance is located on the south side, with a vegetable yard on the left and a garage on the right.




Upon entering, the path emerges between two walls, evoking the memory of the rosebush in the classic Yipu garden. After turning a corner, a moon gate presents a preview of the main garden landscape. To access the garden, one must first go indoors on the west side, pass through the entrance hall, and reach the main salon. A corridor-bridge, shaped like a polyline, crosses over the central space, dividing it into two parts: the main garden to the south and the inner garden to the north.



The main garden as the public zone is more open, with the atelier on the east side facing the main salon in the west; the inner garden is more private, spaces expand circuitously to the north-east. The water of the garden is like Liu Garden, starting from the moon gate at the southernmost end of the main garden, passing under the corridor-bridge, meandering inwards and finally hiding its end in a courtyard in the northeast of the site.


These corridors as the circulation system form interesting paths for promenade; a series of courtyards set one by one, make the limit vague between interior and exterior spaces, meanwhile the privacy increases progressively. Among these courtyards, each room has different view, forming inner atmosphere of its own. The northwestern and southeastern parts of the buildings are designed as two-story volumes. A kind of three-dimensional appeal is added to this modern garden-villa by those terraces and rooms with courtyards on the upper floor.