Excerpt: Pott House by Kiron Cheerla Architecture Design is a project that blends traditional craftsmanship with modern design principles. A modular grid system significantly influenced the design, ensuring precise window and door placement, optimal room sizes, and visual harmony. The project uses wood as the primary building material, eliminating steel above ground level, aligning with sustainable practices, and enhancing the structure’s unique aesthetic.
Project Description

[Text as submitted by architect] In collaboration with a former architecture classmate, this residential project embraced design flexibility. The key challenge involved the loose black cotton soil, rendering traditional foundations impractical. To address this, pile foundations were implemented, transferring weight to deeper, stable soil layers. This reduced overall building load optimizing both structural efficiency and project cost. This project embraced wood as the primary building material, eliminating the use of steel above ground level. This choice not only aligns with sustainable building practices but also contributes to the unique aesthetic of the structure. The project allows innovation when traditional constraints are relaxed, highlighting the successful collaboration between an architect and a nonprofessional.

Embracing a modular grid system, it influenced everything from precise window and door placement to optimal room sizes. This meticulous approach ensures doors seamlessly align with columns, while multiplying grid units dictates specific room dimensions—a 3′-9″ module, for example, generates an ideal 11′-3″ bedroom and a 15′ living room. This modularity doesn’t just foster visual harmony and efficient space utilization, but also allows for future flexibility, readily accommodating potential expansions without compromising the design’s integrity.


The design adopted a lightweight construction approach to optimize structural efficiency and cost. MADDI Karra, indigenous to Andhra and Telangana, was chosen for its inherent strength, density, and natural termite resistance. This choice aligned with sustainability goals and reduced the need for chemical treatments or extensive finishing.
However, working with MADDI presented difficulties due to its density. Despite advancements in equipment, carpentry posed challenges due to the wood’s hardness and cutting requirements. Limited prior experience with the material also necessitated experimentation. An unforeseen issue emerged with the dimensional stability of MADDI. Its expansion and contraction exceeded that of regular wood, causing issues with door and window operation following seasonal temperature changes. This discovery necessitated replacing doors and windows with conventional wood after partial construction.




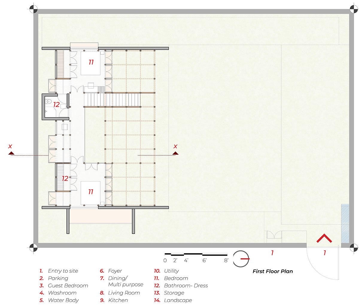
The initial design, as illustrated by the floor plan, featured a central courtyard with the main house on one side and a guest room and car parking on the other, connected by a peripheral circulation area. This layout was subsequently modified to a phased construction approach due to budgetary constraints. Phase one prioritized the construction of the main house on a designated 300 square yard portion of the site, leaving the remaining 300 square yards as open space. This decision was driven by both the client’s initial preference for concentrated development and the need to optimize costs. In the future, either expanding the built area by adding the guest room and car parking in phase two is a possibility or selling the other half of the plot.




Structural Details: The interior atmosphere prioritizes a sense of cohesion through material selection and design. A consistent color palette featuring earthy tones like red brick, orange wood, and cream flooring, which are compatible with each other, unifies the space. The exposed wood’s distinct pattern further enhances the visual connection between elements. This deliberate material harmony contributes significantly to the overall ambiance of the building. Drawing inspiration from traditional Japanese joinery techniques, the design team explored various methods for seamless connections.
Collaborative efforts with the carpenter and structural engineers ensured the implementation of appropriate joinery methods that aligned with both aesthetic intent and structural integrity. This approach emphasizes on blending traditional craftsmanship with modern design principles.


Window Details: The building incorporates a unique design element for optimizing natural ventilation and mosquito control. These vertically projecting elements, visible in night-time images, serve a specific functional purpose beyond aesthetics. Users can easily open and close them from ground level using the rope, and when released, gravity tilts the wood shutter outward for efficient air circulation while preventing mosquitoes. This angled closure ensures a tight seal when closed, maximizing both ventilation and mosquito protection. Furthermore, the design facilitates hot air removal through natural convection and complements strategic window placement for effective cross ventilation and indirect north facing light, minimizing heat gain.

The window design tackles the challenge of balancing expansive views with security, mosquito control, and ventilation. Large glass panels maximize the scenic view, while a unique feature allows the window to open to a limited angle (30°) whenever mosquito protection is required and secures it with a horizontal wooden member. Embedded mosquito mesh on the sides, top, and bottom ensures airflow while preventing insects from entering. This innovative solution provides a three-way ventilation system and maintains unobstructed views, demonstrating a thoughtful approach to integrating multiple functionalities

