Excerpt: The Red Box Exhibition Center by MIX Architecture reflects the historical site’s “Red Color,” or the solid form of industrial buildings, embodying the site’s heritage and spirit. Its architecture bridges history and the future, creating a spatial atmosphere enriched by intricate perceptions. The interplay of red-hued spaces, reflections of the exterior, and shadows from skylights and translucent openings crafts a unique experience.
Project Description
[Text as submitted by architect] The Red Box is located at the foot of Red mountain, Naning, which is also in the Hongchuang park designed by Mix Architecture. With the forest surrounding Red mountain, the sculptural volume of the Red Box makes it unique.


The Red Box is made up from the red concrete. “Red” responds to the environment, which has three different meanings. First, the Red Box responds to the “red” of chronological memory. Hongchuang PARK, which is formerly known as Nanjing Combat Machinery Factory. Nanjing Combat Machinery Factory was founded in the 1950s, which has experienced the vigorous development of the founding of New China. The “red” memory has accompanied the growth of several generations. Secondly, in response to the “red” of the original red brick building of the Hongchuang PARK factory area, Mix Architecture decided to make the Red Box be a unique building with the same rhythm of the factory. Red concrete is poured using wooden templates, and the size of the wood texture is similar to that of existing red bricks. Finally, the building also responds to the “red” of Red Mountain.

Red mountain was not its original name. Around 1,500 years ago, in the Six Dynasties era, people called it “Great Spectacular Mountain”, where Emperor Chen Xuan once inspected the water training of Xuanwu Lake. During the Republic of China period, people noticed the redness of the mountain soil, and then discovered hematite in Red mountain, so the “Great Spectacular Mountain” was gradually called “Red Mountain”. In 1948, “Red Mountain” had become its official name and appeared in the “Detailed Map of Nanjing Streets”. The main component of hematite is iron oxide, which is exactly what red concrete does to become the main additive of “red”.



The building is located on the south side of the entrance plaza of the park, it is like a red stone lying quietly at the foot of the lush Red mountain. Entering deeper, people quickly become aware of the unfolding of a red spatial experience different from their daily routine. The entrance to the building resembles a small angle cut from the bottom of a reclining stone. It’s not prominent, dominated with darkness, ups and downs, twists and turns, as if entering a dimly red cave. A wooden door, along with the wood texture and the vertical corrugated texture on the surface, next to the curved wall into the deep space, smoothly adds a touch of softness to the cave. With subtle light from a circular hole at the top of the cave, the gentle light penetrated through the circular hole on the wooden door, indicating that people could enter. Reaching into the circular hole of the red and dimly lit space, grasping the black metal handle standing in the soft light, pushing open the wooden door, soft light spills out, captivating those who enter.




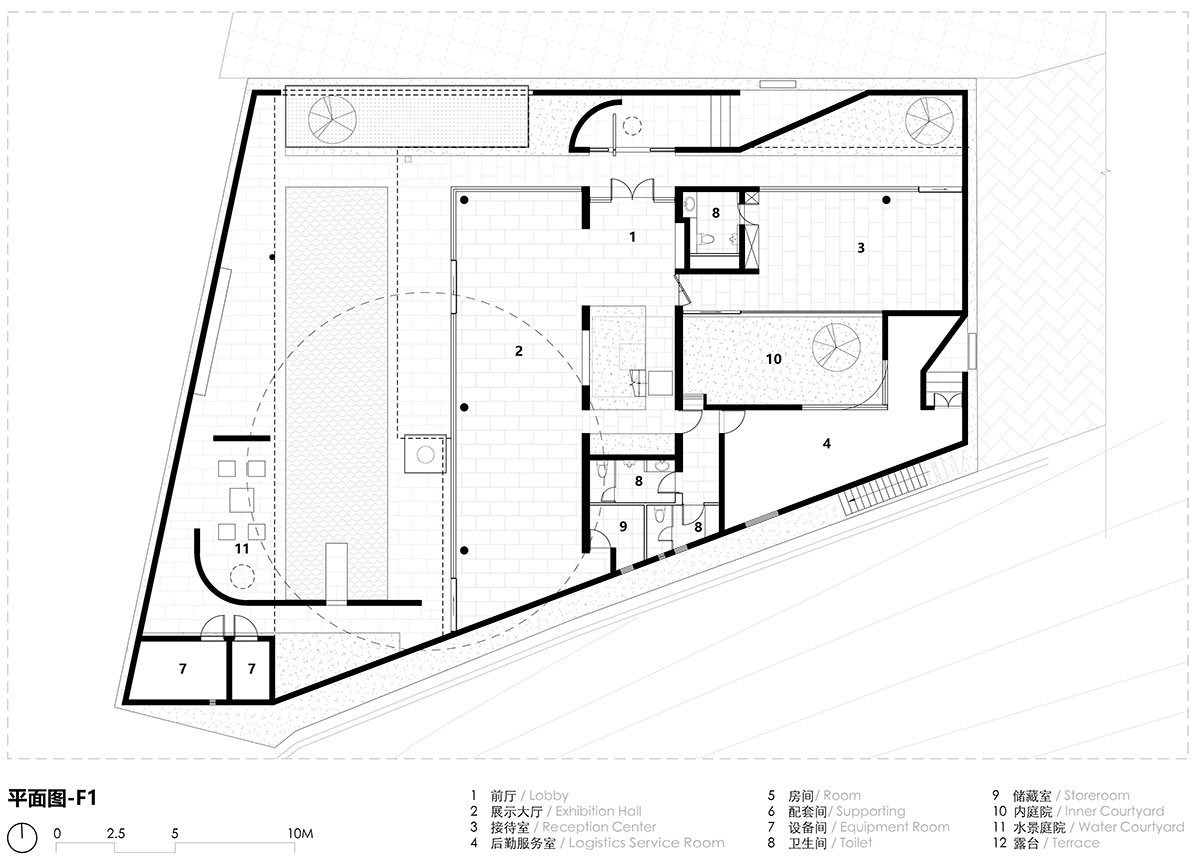
From the exterior to the interior, people may experience almost another world inside the red stone. With flowing space, red concrete interface and red terrazzo floor tiles, the interior world of the red stone appears as if carved from a complete stone. The space is permeated with red light and air, varying with the passage of time. The entrance hall is double-height, flowing to the public spaces on both the east and west sides. The glass in public spaces is clear, integrating seamlessly with the courtyard inside and out. The western space connects to the largest courtyard, where a large tree is preserved, covering almost half of the courtyard. Through the seasons, with leaves falling and regenerating, the tree alternates between yellow and green, standing prominently against the trees on Red mountain. A surrounding corridor encircles a mirror-like water that is reflecting the tree, the sky and the ripples, bringing the greenery of the Red mountain into the courtyard.



On the eastern space, both north and south sides are courtyards, the boundaries are blurred between interior and exterior spaces. A pine is in the southern courtyard that remains evergreen throughout the seasons. Ascending the stairs, a corridor-like bridge connects the two spaces on the second floor. Among the north and south sides of the lounge bridge, the large glass panels dissolve the architectural boundaries. Standing on the bridge, people capture a scenic view of the park in the north direction and experience the greenery of Red mountain in the opposite direction. The second-floor spaces use circular or brick-shaped semi-transparent acrylic materials seemingly randomly embedded in the red concrete walls which allow light to filter into the interior and scatter in the air. From the interior to the large terrace, the red mountain rushes into the view, which makes the building become the framing frame while the red mountain melts into the red box.

As night falls, the building subtly emits warm light to the outside. As if the brightness in the interior world of the stone is penetrating through a few cracks and pushing outward. It also shines through semi-transparent acrylic and creates scattered star-like patterns that blend into the night sky.


The Red Box, as the only newly constructed building in the renovation of the “Nanjing Combat Machinery Factory (Hongchuang PARK)” , either responds to the “Red Color” of the historical place or resembles the solid and internally coherent volume of industrial buildings. The Red Box expresses a new building’s inheritance of the site’s history and spirit. The architecture simultaneously presents a sense of future, forms a spatial atmosphere that builds up from various intricate perceptions. The interplay of the red-infused space, the reflected external environment of the interior, the shadow of skylights and translucent openings weave a distinctive experience together. This is both a continuation and evolution after the interpretation of the site, and it also provides another way to feel a sense of the future within the massive historical experiences.

