Excerpt: Rumah Tresna, a residence by Ida Bagus Oka and Alexis Dornier, combines traditional Indonesian architectural styles with contemporary design. The residence incorporates reclaimed timber from historical structures, promoting the utilisation of sustainable resources and enhancing its aesthetic appeal. The design of the house provides a seamless blend of indoor and outdoor living, creating a fluid living environment.
Project Description



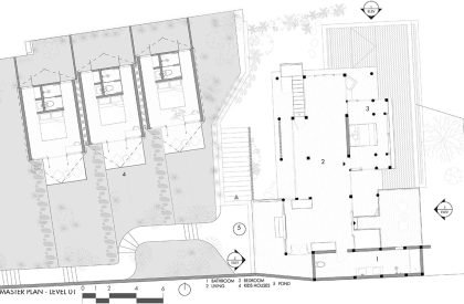
[Text as submitted by architect] In 2020, Alexis Dornier Makings completed “Rumah Tresna,” a private residence inn located in Bali. The residence, designed by Alexis Dornier, features reclaimed timber sourced from historical structures such as old railroad tracks, bridges, and sunken ships. This choice of materials is part of an effort to utilize sustainable resources, adding a unique historical element to the structure’s aesthetic.




“Rumah Tresna” combines traditional Indonesian architectural styles with modern design principles. The residence includes a large covered outdoor area within the main house, blending indoor and outdoor environments. The design incorporates a pool that integrates with the living space, creating a fluid living environment. Large trees around the property provide shade, contributing to natural cooling both indoors and out.




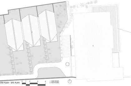
The ensemble includes a main house and three guest houses. Inspired by Sumatran architecture, the guest houses feature pointed roofs and arched windows that balance these dynamic forms. Strategic use of glass and wide overhangs help manage the indoor climate, protecting against rain and sun while maintaining natural light.