Excerpt: Samam, a residence by ma+rs, aims to create shared spaces for humans and animals, seamlessly transitioning between indoor and outdoor spaces. The design features a simple and clean structure and material palette, including exposed concrete slabs and clean white walls. With ample private, public, and green spaces, the design enhances spatial quality and fosters a harmonious coexistence with nature.
Project Description


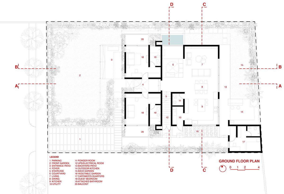
[Text as submitted by architect] The house is planned on a typical 60’ x 90’ parcel of land located in the northern peri urban extents of Devanahalli, Bangalore. Designed for a family of four along with their three four legged companions, the project attempts at creating shared spaces for humans & animals alike while also seamlessly transitioning between indoor & outdoor. A major chunk of the site in the front & rear has been left open as gardens for the dogs to run around. The remainder has been divided into three linear blocks in the north south direction as private, green + circulation & public.




As one enters into the house through a shaded walkway with an entrance patio, the house has a clear central axis in the E-W direction which divides the first private block into two bedrooms on either side, opening out into private sit outs on both floors. The second block has a green courtyard and the staircase with services like the powder room, utility, electrical room tucked in.



The E-W axis culminates into the third block which houses the public functions of the living, dining & kitchen in a large, almost double height volume. This opens out to the backyard blurring the boundaries of inside-outside and enhancing the spatial fluidity.


Since the project was done on a tight budget, the structure & material palette has been kept extremely simple and clean. Exposed concrete slabs which reduce future maintenance in terms of painting, clean white walls, indoor flooring in vitrified tiles and local Sadarahalli granite stone for outdoor flooring. Keeping the palette humble not only helped reduce the overall budget, but it also helped enhance the spatial quality and enable simple materials to shine through.