Excerpt: SPARK 761 by llLab rethinks AI infrastructure as an evolving architectural organism rather than a closed black box. Drawing from the transition from agricultural, industrial, and digital eras to the age of human–AI coexistence, the design opens computing power to society through integration of black box and glass box. Invisible information, physical space, and human activity coexist, allowing the building to co-evolve with its urban environment.
Project Description

[Text as submitted by architect] Human civilization began with the agricultural era, underwent the mechanical innovations of the Industrial Revolution, and then leaped into the digital environment of the information age. Today, we have entered an era of coexistence between humans and artificial intelligence. Throughout this long historical process, humanity has continuously created the foundational infrastructure of the world, and through the outcomes of infrastructure from different eras, we have discovered new possibilities for the future.
As time evolves, since humanity entered the digital information age, infrastructure has gradually coexisted with us in an invisible manner. However, humans have gradually begun to feel a disconnect from this subtle coexistence, as if seeking new ways to reintegrate the changes brought by this “black box” into our way of life. From a one-way input and passive acceptance relationship, to altering variables to attempt achieving reasonable results, and further developing into a physical human-machine integration of input and invisible output, perhaps the next step—or what we are currently trying to understand—is how to adapt to this “black box” environment that has already become part of our lives.

Our goal is not to resist, because we respect humanity and hope that the unknown products of evolution can allow humans to continue coexisting with their environment. Therefore, in the process of exploring and creating this new artificial intelligence infrastructure, we aim to reveal the unknown role of the “black box,” transforming what was once inaccessible into something we can understand and communicate with. We even attempt to co-evolve and integrate with it.
From complete isolation, to one-way expression and passive reception, to the emergence of wearable interactive modes that integrate with our bodies, we have begun to imagine: could they one day become our environment? Will they exist invisibly in our lives, allowing us to communicate and converse with them at any time?



Located in the core area of Jiuxianqiao, Chaoyang District, Beijing, it is the only artificial intelligence computing power park within the central urban area of Beijing.
The architectural concept overturns the traditional, enclosed data and information center systems, enabling society, people, and activities to coexist with the building, its contents, and the invisible world of intelligent information. Beyond the intelligent computing rooms, energy-related support, and functional hardware requirements, the building manifests as a physical grid system under sunlight. At night, its physical form visually fades away, replaced by a new architectural body formed by virtual information, which continuously evolves and grows, existing within the city.
Additionally, within the building space, the driving force of the architecture is computing power, while the driving force behind content development is the Computing Power Theater. The space introduces coexisting human activities, using the “black box” and the “glass box” as carriers for human spaces, accommodating diverse functions such as offices, exhibition halls, and multi-purpose rooms.



The “black box” is positioned by rotating within the conventional grid. The changing environments inside and outside the site serve as integrated reflections of the evolving era and its constantly developing thematic content focused on contemplation, leading humans into the “Computing Power Theater”—a place of inspiration for discussing topics related to humans, artificial intelligence, and societal evolution.
The “glass box” exposes all previously closed-off and inaccessible content to the human touch, fully revealing it within the architectural space. It aims to encourage proactive interaction, allowing humans to spontaneously connect what was once untouchable to levels that are now visible and accessible.
As ecological partners within space, humans coexist with invisible information, influencing and communicating with it. This allows the building’s virtual composition and physical entity to coexist and evolve symbiotically to varying extents, transforming the park into a computing power science park that integrates technology and humanities. Humans and the carriers become mutually parasitic, evolving together in symbiosis.


This is actually a logic that integrates the traditionally separate construction of equipment platforms with the building itself, considering them as one entity. It’s a way of thinking that has faced comprehensive criticism within the inertia of social thought. However, we believe this is the true starting point for making AI human-centric. The action of “opening up” requires a complete rethinking and overturning of the overall logic.
The prerequisite for the overall logic to hold is that it must first achieve functionality. Once the basic requirements of the equipment are clarified—as guided by fundamental clues—the frequency and scale of the language the equipment provides have led us to adopt this integrative approach.

At the same time, this building is also an artificial intelligence organism. Therefore, the intuitive biological dynamic sensations related to the biological life fundamentals of breathing and blood vessels have led to a form where one can perceive the internal dynamics of the tubular structure under the condition of airflow transmission within it. This is a basic requirement for maintaining vital signs.
Although we had also hoped to give it a chance to truly speak and produce sound, environmental constraints prevented this from being realized, so we could only use image language as a substitute. This should be an intuitive architectural manifestation of biological ecological vital signs, and it is definitely in its preliminary, immature form right now. It will only be after it has grown to a certain stage that looking back, one can understand the meaning behind the embryonic form of today’s language.



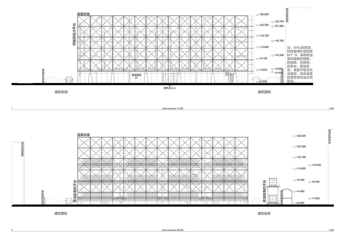
Main Facade System of the Public Plaza: The building’s facade, under natural light during the day, presents exposed functional hardware, highlighting the functional operation of biological mechanisms—the breathing and heartbeat—representing the ecological embodiment of the intelligent entity. Indirect evaporative cooling equipment connecting each floor to the internal computer room spaces extracts the recirculated air and channels it upward through ductwork to the roof height, thus forming a vertically running-through language of ductwork.
However, at night, the building’s biological form disappears visually, expressed instead through the intersections of the spatial system and hidden modes of thought. The illuminated intersections of the facade’s grid framework and the lights at the intersections of the ground grid form a virtual space that overlaps with the real physical space of the day. The real-time language of the building’s intelligent entity is then visually transmitted to the outside world through an unknown form of imagery via an internal flexible screen.
We have established a framework, but its language will also evolve in different ways due to its accumulation of information and changes in the environment; this evolution is unknown. Users change, the environment changes, and this intelligent entity learns, adapts, and expresses accordingly.

Main Architectural Spaces: The building achieves complete transparency from courtyards to interior spaces, fully embracing human activity and introducing public sightlines and social connections into its interior.
Parts of the building’s ground floor on the north and south sides are designed as versatile, open spaces for both work and life, aiming to stimulate creativity and ecological exchange within related industries, and to advance the development process for cutting-edge industry research. This positions it as the urban office center of the computing power era—a comprehensive platform integrating industry science popularization, sharing, and co-creation.



On the north side of the ground floor, a variety of functions are integrated, including the Computing Power Theater, offices, a coffee shop, casual dining, relaxation spaces, a conference center, and multi-purpose halls. Depending on different usage needs, one can freely choose a workplace and working environment. Among these, the Computing Power Exhibition Hall is open to the public and will showcase the historical progress of human development, starting from the agricultural era up to the arrival of the computing power era, driven by the advancement of infrastructure and the upgrading of energy sources. It ultimately looks towards the future—a technological landscape where computing power serves as the productive force.
The Computing Power Theater, serving as a multi-purpose hall, will act as the main base for the future Jiaoxianqiao Forum, where cutting-edge technologies and professionals from the technology industry will exchange ideas and dialogue, thereby accelerating the progress of domestic AI computing power in China.

Simultaneously, the Data Center’s ECC (Enterprise Command Center) and a dedicated space for showcasing domestically produced chips are located here, allowing visitors to more directly experience the operational principles and equipment standards of state-of-the-art data rooms. Adjacent meeting areas provide spaces for exchange after visiting the exhibition hall. The coffee and casual dining area, along with flexible office settings facing the lifestyle plaza, allow people to discuss and chat in a natural environment, enhancing the shared and collaborative industry atmosphere.
The ground floor on the south side also encompasses various types of office settings, serving as a base for industrial incubation. The north and south sides are connected by the lifestyle plaza, allowing green vitality to flow into the interior, enabling people working here to enjoy an open, garden-like environment.


AI ecosystem and operations personnel will also occupy the vertical office spaces on floors 2 through 5 of the building. However, determining what type of office model is truly suitable for this new industry, the building space also attempts to integrate generative space concepts with a furniture laboratory, exploring workspaces genuinely suited for the AI community.
The hallmark of the intelligent era is constant evolution and advancement.
The Beijing Digital Economy Computing Power Center is not merely a static collection of physical spaces or hardware equipment; it is more an active “intelligent entity” capable of autonomously completing “metabolism” and achieving self-evolution and growth.

Facing the intelligent era’s rapidly growing and diverse demands for computing power, the Beijing Digital Economy Computing Power Center, through full-stack synergy of computing power, algorithms, and data, can not only achieve the supply of intelligent computing power but also schedule according to demand changes and intelligently adjust strategies based on load variations.
The dynamic facade communicates with the city, visualizing the building’s real-time computing power, attempting for the first time to interpret the unknown aspects of AI’s self-awakening and iterative evolution.

More than just a Computing Power Center, it is a “Tech Park” Connecting Humanity
AI has long moved beyond science fiction imagination and is now an accessible and usable universal technology for people. In the future, everyone will be able to master AI skills and leverage AI to create value. The Beijing Digital Economy Computing Power Center is not just a “computing power center”; it is also a computing power tech park integrating modern technology and humanities. While supplying computing power, it also aims to enhance public awareness and connect the industrial ecosystem, serving as a link between technology and humanity.

The open-ended intelligent computing evolution model, embodied in both the architecture and its content, hopes to allow everyone to directly perceive it and even communicate, interact, and coexist with it.
AI cannot exist without humans. The synergy between AI and humans should be the reason for our creation and exploration. We do not wish to remain stuck in superficial discussions about good and evil; rather, we hope to integrate this ceaseless evolution with our physical existence and the multi-layered modes of life—physical and digital virtual—and ultimately merge them into one.

