Excerpt:Taboadella Winery, designed by Carlos Castanheira Architects, is characterised by two large Naves where the production and ageing of the wine take place. The project reconfigures the existing building, transforming the run-down construction into a 2,500 m2 winery, the Adega da Taboadella. Attention was given to every activity and process to ensure environmental sustainability, safeguard the present, but above all with the concern that the future should be even better.
Project Description
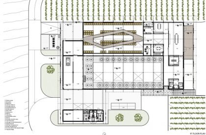
[Text as submitted by architect] The view on arrival at the Estate is amazing. The soft undulation of the vineyards lets you to take in almost the whole property at once. In the distance, the Big House overlooks the fifty hectares of landscape, embracing it and dominating it. A small river, a tributary of the Dão, snakes along, defining the property boundary to the Southwest. The story is told, as are other stories, that monks and friars, and also, Romans, were here at one time. All in search of the good quality of the vines and of the wine. At the far end of the estate, to the south, there was an existing storage shed that the clients wanted to transform into a winery. The project reconfigures the existing building, transforming the run-down construction into a 2,500 m2 winery, the Adega da Taboadella.




Guided by the Technical Team responsible for production and wine making, the project is characterised by two large Naves where the production and ageing of the wine take place. On the North side an arrivals Quay allows the commotion of the harvest to be carried out in a methodical and precise way. Carried by gravity, the grapes pass through a production system and a series of critical processes, to event ually be transformed into wine. Yet, these are industrial methods and processes where the timeless and essential factors of human skill and care are not neglected for a moment. The Vat Hall, as it is known, houses a row of 15 truncated, stainless steel vats for the red wine, 8 truncated stainless steel vats for white wine and another row of 10 micro-cement vats.




A mezzanine gives access to the vats from above to allow for gravity filling, which simplifies the processes and ensures proper execution and therefore the desired quality. On the mezzanine above the entrance to the Hall, there is a Laboratory and other areas for wine making experimentation. The Vat Hall, will in the first phase accommodate 400 barrels. This generous space will eventually allow for storage of 800 barrels of wine. Above the entrance, a large area will be reserved for welcoming visitors, for wine tasting and assessment. Like a belvedere, overlooking the Estate and the Big House, a large veranda will be a place to enjoy of the leisure of sipping a good wine, embraced by the view of a beautiful vineyard, a beautiful view. Meanwhile, the visitor’s route through the winery, for both specialists and wine lovers, does not cross or conflict with the routes or circuits of production of the wine.



Technical equipment and storage areas are located to the rear of the building, relating directly to function and production. Attention was given to every activity and process so as to ensure environmental sustainability, to safeguard the present, but above all with the concern that the future should be even better. The resulting Light and Shadow are a constant concern. As in wine, balance and equilibrium are essential. The presence of Light is only allowed just as much as necessary, so that Shadow will create the environment and temperature that the winery requires. The building’s connection with the ground, the Estate and the Landscape, the golden glow of its structure, something unusual, and the cork cladding, which will soon turn silver, will confer personality to the Adega da Taboadella, defining it as a unique place, where a unique nectar is produced. A place once acknowledged by the ancients, and that will once again be acknowledged and appreciated by us and by those yet to come. The Quinta da Taboadella, like a phoenix, is born again, rejuvenated, but above all, brought up to date so that the quality of production is combined with aesthetics and good tastes.



The Winery will result in the production of that which is the culmination of the environment, the landscape and the transformation that Man exerts over these: excellent Wines from Dão.

